Brompton Avenue, Guisborough

Guide Price
£465,000
SSTC
This property listing is now SSTC

4 Bedroom Detached House for sale in North Yorkshire

4 4 3
  • Executive detached family home Four bedrooms Vaulted open plan kitchen family room Family room with freestanding log burner Landscaped garden with office pod Laundry and cloakroom Jack and Jill e...

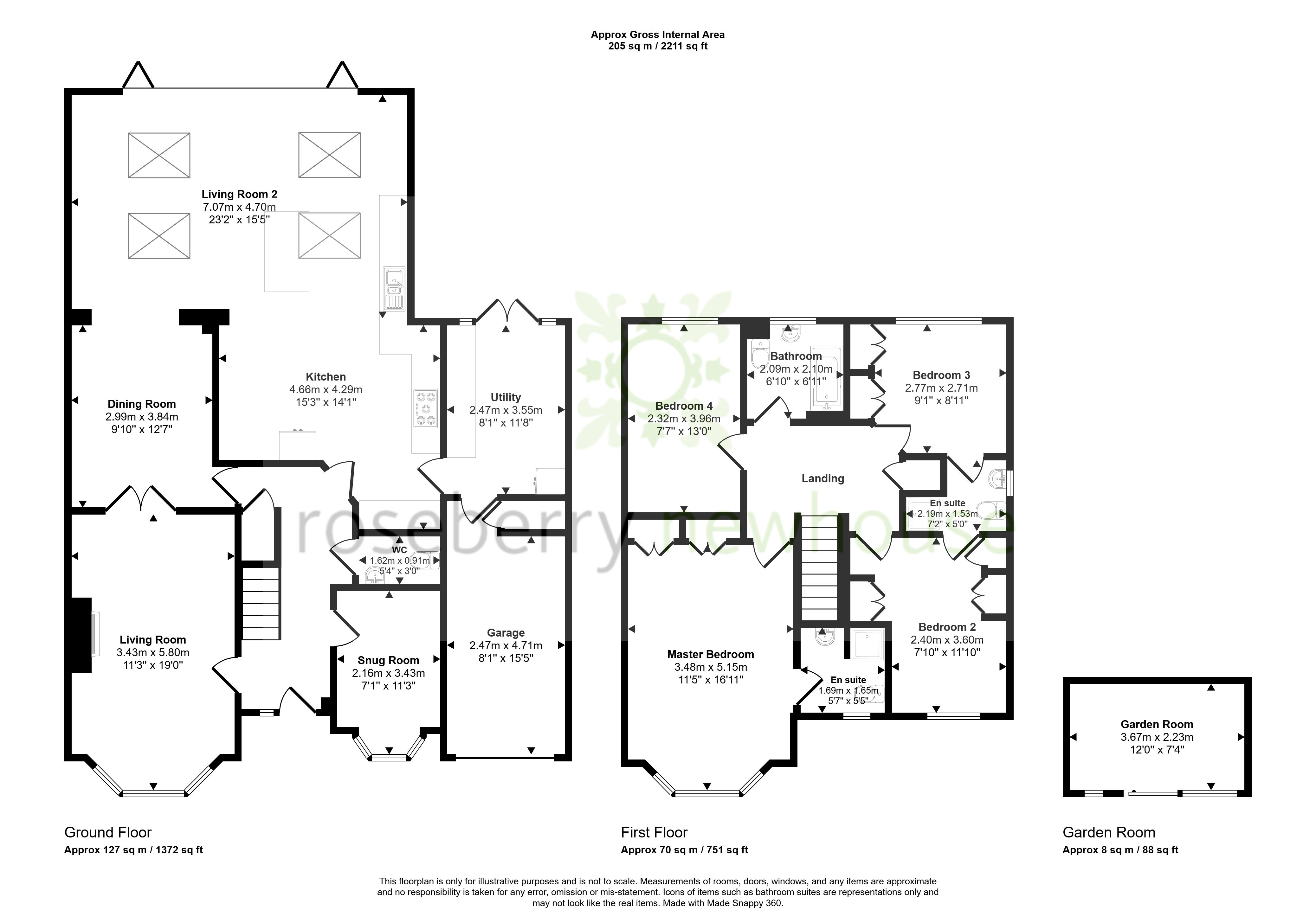
Beautifully presented throughout, this stylish and contemporary family home has been thoughtfully extended and remodelled to create a superb balance of modern living, character features and exceptional outdoor space. Finished to a high standard, the property combines clean architectural lines with warm natural materials, resulting in a home that feels both elegant and welcoming.

The accommodation opens into a welcoming entrance hall with oak flooring, setting the tone for the quality and attention to detail found throughout. A cloakroom and study provide practical spaces for everyday family life and home working. The main living room is a comfortable retreat, centred around a feature fireplace with inset log burner, perfect for relaxed evenings.

Crittall-style internal double doors lead through to the heart of the home — an impressive extended dining and family space with a vaulted ceiling and freestanding log burner, creating a dramatic yet inviting setting for both family living and entertaining. This space flows seamlessly into the modern kitchen, complete with a central island, integrated appliances and a separate laundry area, all finished with contemporary cabinetry and quality work surfaces. Extensive glazing floods the room with natural light and connects the interior effortlessly with the garden beyond.

To the first floor, the principal bedroom suite enjoys a large bay window, fitted wardrobes and a modern en suite shower room. Bedrooms two and three are linked by a well-appointed Jack and Jill shower room, while bedroom four is served by a stylish family bathroom, completing the upper floor accommodation.

Externally, a double driveway provides off-road parking and access to the integral garage. To the rear, the property truly excels. The garden has been professionally landscaped to create a superb outdoor entertaining environment, featuring terraced seating areas, a lawn, covered terrace, and an outdoor kitchen space—ideal for hosting friends and family. A standout feature is the garden office pod, complete with electricity and WiFi, making it perfectly suited for home working, a studio, gym or entertaining space.

A standout family home in one of Guisborough’s most desirable residential locations, offering contemporary style, flexible living space and exceptional outdoor facilities. Early viewing is highly recommended to fully appreciate the quality and lifestyle on offer.

Freehold

Important Information

  • This is a Freehold property.
  • This Council Tax band for this property is: F
  • EPC Rating is C

Property Ref: STO260102

Share:

Similar Properties

Woodale Close, Guisborough

5 Bedroom Detached House | Guide Price £465,000

Set within a quiet Guisborough cul-de-sac, 10 Woodale Close is an executive five-bedroom home that has been thoughtfully...

Rosehill, Great Ayton

4 Bedroom Detached Bungalow | Guide Price £450,000

Impressive four bedroom detached property offered with immediate vacant possession.

Alum Garth, Carlton In Cleveland

3 Bedroom Semi-Detached House | Guide Price £450,000

Welcome to Alum Garth, a delightful family home nestled in the tranquil village of Carlton in Cleveland. This charming p...

Sessay Grange, Nunthorpe

6 Bedroom Detached House | Offers Over £475,000

*** 360 TOUR AVAILABLE ***Welcome to Sessay Grange, a stunning and spacious six bedroom detached family home located in...

Garbutt Lane, Swainby

3 Bedroom Detached Bungalow | Guide Price £475,000

Set on a generous plot in the heart of the highly regarded village of Swainby, this attractive three-bedroom detached bu...

Cooper Close, Potto

3 Bedroom Detached Bungalow | Offers Over £475,000

Chime Cottage occupies a discreet corner plot in the heart of Potto, its white-rendered elevations and south-facing gard...

Roseberry Newhouse (Stokesley)

Stokesley, North Yorkshire, TS9 5DU

01642 711 111

How much is your home worth?

Use our short form to request a valuation of your property.

Request a Valuation

Mortgage Calculator

Amount Borrowed: £
Total Amount Repayable: £
Total Monthly Payment: £
©2026 The Guild of Property Professionals. All rights reserved. Terms and Conditions | Privacy Policy | Cookie Policy | Complaints Policy | Members Login
The Guild of Property Professionals Trading Address: 121 Park Lane, London W1K 7AG. GPEA Limited. Registered in England & Wales.  Company No: 02819824.  Registered Office Address: 2 St. Stephen's Court, St. Stephen's Road, Bournemouth, Dorset, England, BH2 6LA.  VAT Registration No: 576 8795 61
Book a Property Valuation Update Cookies Preferences