Stainton Road, Seamer

Guide Price
£350,000
SSTC
This property listing is now SSTC

3 Bedroom Detached Bungalow for sale in North Yorkshire

2 3 2
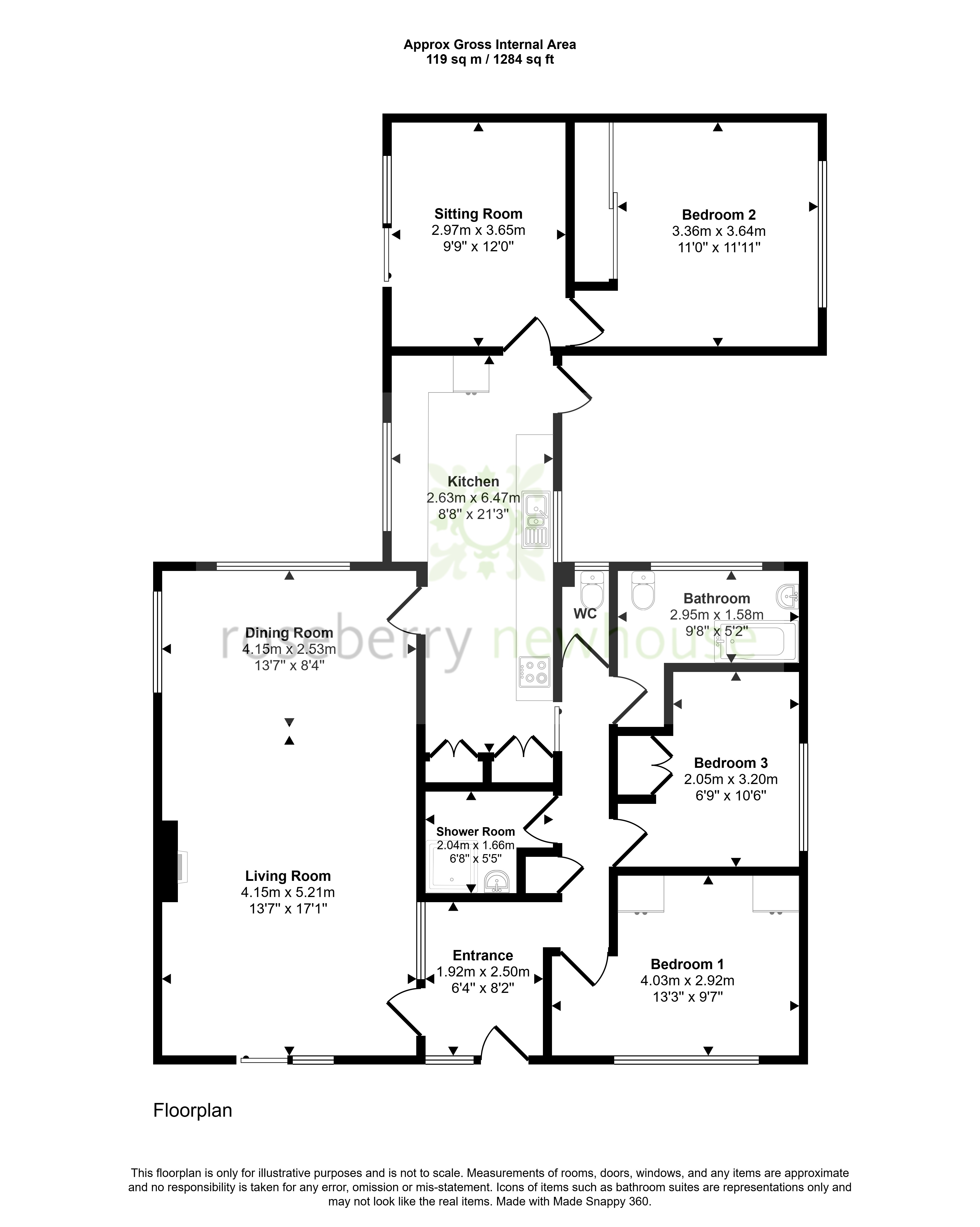
  • Detached bungalow Three bedrooms No onward chain Oil central heating Open plan living/dining room Modern kitchen Sitting room Bathroom and shower room South and Westery gardens Double garage and w...

Tucked away along a private road serving just four properties, this three bedroom detached bungalow offers a rare opportunity to acquire a home with exceptional potential, set within generous grounds and enjoying a desirable south and westerly aspect to the rear. Offered with no onward chain, the property presents an exciting prospect for those looking to modernise and create a bespoke home in a well-regarded location.

Approached via a gated entrance, the property opens onto a substantial block paved driveway, providing ample parking and leading to a detached double garage with adjoining workshop—ideal for a range of uses.

Internally, the bungalow offers light and airy accommodation with a flexible layout. An entrance hallway leads through to a spacious open-plan living and dining room, creating a sociable and versatile space for everyday living. The kitchen, fitted with a range of units and appliances, connects through to a further sitting room with patio doors opening onto the garden, allowing for a seamless indoor-outdoor lifestyle.

There are three bedrooms, along with a bathroom, separate shower room and additional WC, offering practicality for family living or visiting guests.

Externally, the property is set within well-established gardens, predominantly laid to lawn and complemented by mature planting, shrubs and borders, all enjoying a favourable south and westerly orientation—perfect for capturing the afternoon and evening sun.

With its private setting, generous plot, extensive parking and clear scope for improvement, this is a fantastic opportunity to create a truly special home.

Freehold with unregistered title

Important Information

  • This is a Freehold property.
  • This Council Tax band for this property is: F
  • EPC Rating is E

Property Ref: STO260241

Share:

Similar Properties

North Road, Stokesley

4 Bedroom Terraced House | Guide Price £350,000

Tucked into the heart of Stokesley, just moments from the charm and convenience of the High Street, Rider House is a bea...

Low Green, Great Ayton

3 Bedroom End of Terrace House | Guide Price £350,000

Character home overlooking the River Leven and within walking distance of Great Ayton shops and cafes.Beautifully presen...

Okehampton Drive, Marton-in-Cleveland

3 Bedroom Detached Bungalow | Guide Price £350,000

Three-bedroom detached bungalow on the popular Okehampton Drive in Marton, offered with no onward chain. Requiring some...

Doctors Lane, Hutton Rudby

3 Bedroom Semi-Detached House | Guide Price £365,000

Set within the heart of the ever-popular village of Hutton Rudby, this beautifully extended three bedroom semi-detached...

The Paddock, Stokesley

5 Bedroom Detached House | Guide Price £374,500

A modern detached family home on this ever-popular Stokesley address, The Paddock is offered with no onward chain and pr...

Roseberry Avenue, Stokesley

3 Bedroom Detached Bungalow | Guide Price £375,000

Tucked within a quietly situated avenue just a short, level walk from Stokesley High Street, this detached bungalow has...

Roseberry Newhouse (Stokesley)

Stokesley, North Yorkshire, TS9 5DU

01642 711 111

How much is your home worth?

Use our short form to request a valuation of your property.

Request a Valuation

Mortgage Calculator

Amount Borrowed: £
Total Amount Repayable: £
Total Monthly Payment: £
©2026 The Guild of Property Professionals. All rights reserved. Terms and Conditions | Privacy Policy | Cookie Policy | Complaints Policy | Members Login
The Guild of Property Professionals Trading Address: 121 Park Lane, London W1K 7AG. GPEA Limited. Registered in England & Wales.  Company No: 02819824.  Registered Office Address: 2 St. Stephen's Court, St. Stephen's Road, Bournemouth, Dorset, England, BH2 6LA.  VAT Registration No: 576 8795 61
Book a Property Valuation Update Cookies Preferences