High Street, Swainby

Guide Price
£295,000
SSTC
This property listing is now SSTC

2 Bedroom Terraced House for sale in Northallerton

2 2 1
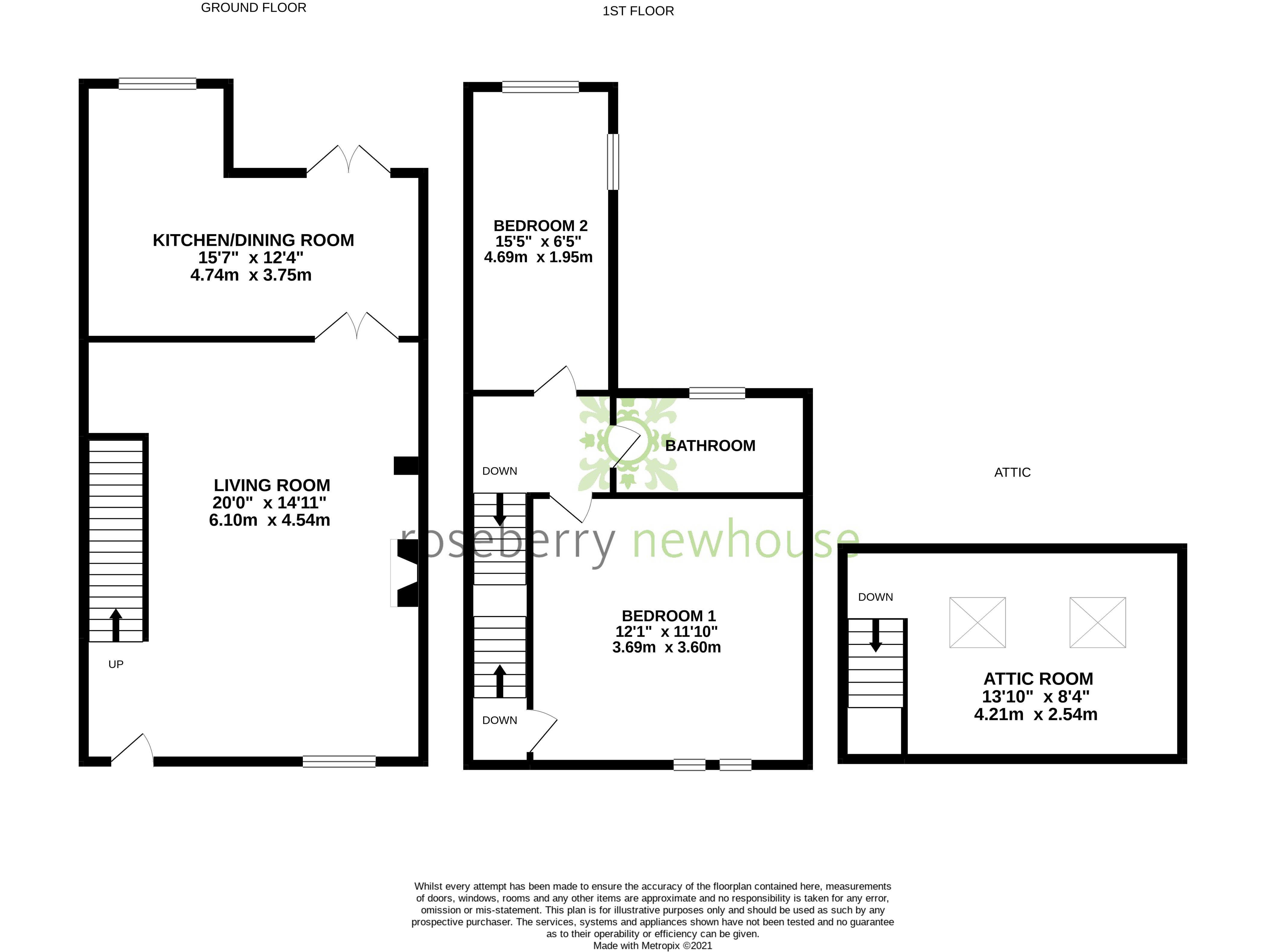
  • Character stone cottage Two bedrooms Double glazing Oil central heating Open plan living and dining with log burner Rear garden with access Modern kitchen diner Modern bathroom with separate showe...

This two bedroom stone cottage is located in the idyllic village of Swainby offering village shop, cafes, pubs and access to walks and cycle routes.

This charming mid terraced cottage has been renovated to offer double glazing, oil central heating and a spacious interior of approx 1,000 sq ft.

On entering the property you are welcomed into an open plan living room with beams and a multi fuel stove. The living area is open plan to the dining area with doors to a modern kitchen breakfast with vaulted ceiling, integrated appliances and French doors to the garden.

On the first floor there are two double bedrooms and a modern bathroom with separate shower.

A staircase leads from the master bedroom to the attic space with beams offering an ideal study or dressing room space with velux windows enjoying views across the hills.

Externally there is a rear garden with lawn and terrace, garden shed and rear access.

Freehold

Important Information

  • This is a Freehold property.
  • This Council Tax band for this property is: D
  • EPC Rating is E

Property Ref: STO190135

Share:

Similar Properties

Station Road, Great Ayton

2 Bedroom Terraced House | Guide Price £295,000

At the heart of historic Great Ayton—moments from the High Street, the river and footpaths to Captain Cook’s Monument an...

No Onward Chain

4 Bedroom Semi-Detached House | Guide Price £285,000

Situated within a popular residential cul-de-sac just a short distance from Stokesley’s vibrant High Street and everyday...

The Endeavour, Nunthorpe

4 Bedroom Detached House | Guide Price £285,000

Tucked away in a small cul-de-sac close to open green space, this four-bedroom detached family home sits on a generous p...

Ontario Drive, Whitby

4 Bedroom Detached House | Offers Over £300,000

Tucked away in a quiet cul-de-sac on this modern development, Ontario Drive is a four-bedroom detached family home offer...

St. Cuthbert Avenue, Marton-in-Cleveland

4 Bedroom Detached House | Guide Price £315,000

Set within a sought-after residential area in Marton, this modern four-bedroom detached family home offers generous, wel...

Leven Pastures, Stokesley

4 Bedroom Semi-Detached House | Guide Price £325,000

REDUCED RESERVATION FEE £99. Stamp Duty Contribution available on reservations. T&C's ApplyLeven Pastures is a stunning...

Roseberry Newhouse (Stokesley)

Stokesley, North Yorkshire, TS9 5DU

01642 711 111

How much is your home worth?

Use our short form to request a valuation of your property.

Request a Valuation

Mortgage Calculator

Amount Borrowed: £
Total Amount Repayable: £
Total Monthly Payment: £
©2026 The Guild of Property Professionals. All rights reserved. Terms and Conditions | Privacy Policy | Cookie Policy | Complaints Policy | Members Login
The Guild of Property Professionals Trading Address: 121 Park Lane, London W1K 7AG. GPEA Limited. Registered in England & Wales.  Company No: 02819824.  Registered Office Address: 2 St. Stephen's Court, St. Stephen's Road, Bournemouth, Dorset, England, BH2 6LA.  VAT Registration No: 576 8795 61
Book a Property Valuation Update Cookies Preferences