Rother Valley, East Sussex TN31

Guide Price
£175,000

2 Bedroom Mobile Home for sale in Northiam

2 2
  • Escape to the Country
  • Lovely Semi Rural Location
  • Brand New Furnished Home
  • 2 Bedrooms
  • 2 Bathrooms- 1 En-Suite
  • Edge of Village Location and Close to local amenities
  • Close to the Steam Railway and River Rother
  • No Legal Costs-No Conveyancing Process
  • Built To Exceed British Standard 3632 And Protected By A 10 Year Structural Warranty
  • Close to the Coast

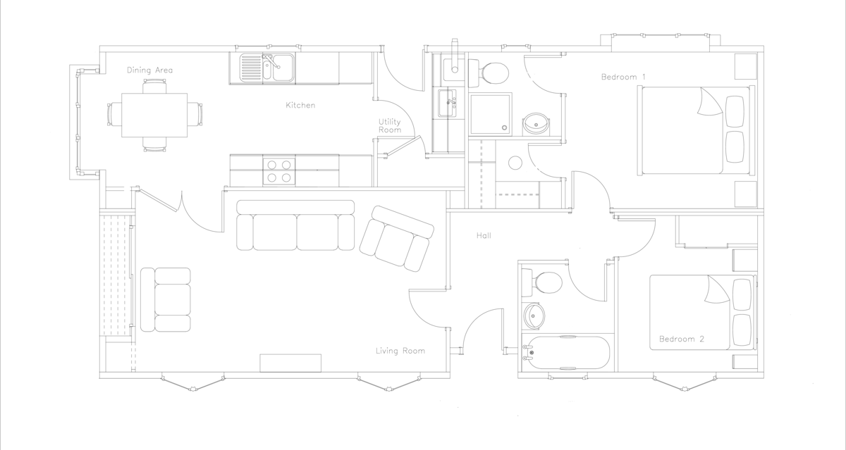
Ready to move into! A spacious and well-appointed 2 bedroom, 2 bathroom home with stylish interiors including an exceptionally well-equipped kitchen, fitted with the latest appliances along with a separate utility room. The sitting room has doors out to a decked terrace and feature log effect fire. The master bedroom with hardwood furniture, a spacious walk-in wardrobe and luxurious en-suite shower room maximises available space with second double bedroom also enjoying coordinating furniture and an adjacent beautifully fitted bathroom. Outside is an elevated decked terrace along with an area of garden and private parking. Built to exceed British Standard 3632 for economical living and with a 10 year structural guarantee.

Accommodation List: Entrance hall, sitting room, kitchen/dining room, utility room. Master bedroom with walk-in dressing room and en-suite shower room, second double bedroom, bathroom. Raised decked terrace, garden, private parking. Gas central heating.


• Ready To Move Into
• Fully Furnished
• All Flooring & Window Dressing Included
• Fully Equipped Kitchen & Utility Room
• Master bedroom with Dressing Room & En-Suite
• Low maintenance garden area
• Edge of village location and close to local amenities
• Close to the coast
• Council tax exempt
• 50 Week PA Licence
• Private Parking
• Built To Exceed British Standard 3632 And Protected By A 10 Year Structural Warranty
• No onward chain
 

Property Ref: 577920_103096002669

Share:

Similar Properties

Iden Lock, Nr. Rye, East Sussex TN31

Land | Offers in region of £40,000

A rare opportunity to acquire a freehold, riverside holiday plot (single) with mooring and fishing rights, a short dista...

Boughton Monchelsea, Kent, ME17

5 Bedroom Manor House | £3,600pcm

A stunning, beautifully proportioned Georgian residence, luxuriously refurbished throughout with no expense spared. Thre...

Rural Peasmarsh, East Sussex TN31

3 Bedroom Detached House | £3,000pcm

A spacious detached 3 bed family house sitting in large level gardens. superb kitchen/breakfast room, utility room.2 rec...

Central Tenterden, Kent TN30

1 Bedroom Apartment | Guide Price £177,000

An attractive one bed ground floor, over 65s retirement apartment, forming part of a purpose built, established developm...

Northiam, East Sussex TN31

2 Bedroom Detached Bungalow | Guide Price £179,950

Stunning Brand New Home - Spacious and well-appointed 2 bedroom, 2 bathroom home with stylish interiors including an exc...

Eastbourne Seafront, East Sussex BN20

1 Bedroom Apartment | Guide Price £180,000

A spacious, well appointed, one bed 12th floor apartment, enjoying uninterrupted coastal views & across the town to the...

Moloney Country Property (Northiam)

The Village Green, Northiam, East Sussex, TN31 6ND

01580 212828

How much is your home worth?

Use our short form to request a valuation of your property.

Request a Valuation

Mortgage Calculator

Amount Borrowed: £
Total Amount Repayable: £
Total Monthly Payment: £
©2026 The Guild of Property Professionals. All rights reserved. Terms and Conditions | Privacy Policy | Cookie Policy | Complaints Policy | Members Login
The Guild of Property Professionals Trading Address: 121 Park Lane, London W1K 7AG. GPEA Limited. Registered in England & Wales.  Company No: 02819824.  Registered Office Address: 2 St. Stephen's Court, St. Stephen's Road, Bournemouth, Dorset, England, BH2 6LA.  VAT Registration No: 576 8795 61
Book a Property Valuation Update Cookies Preferences