Rabournmead Drive, Northolt, UB5

Guide Price
£345,000

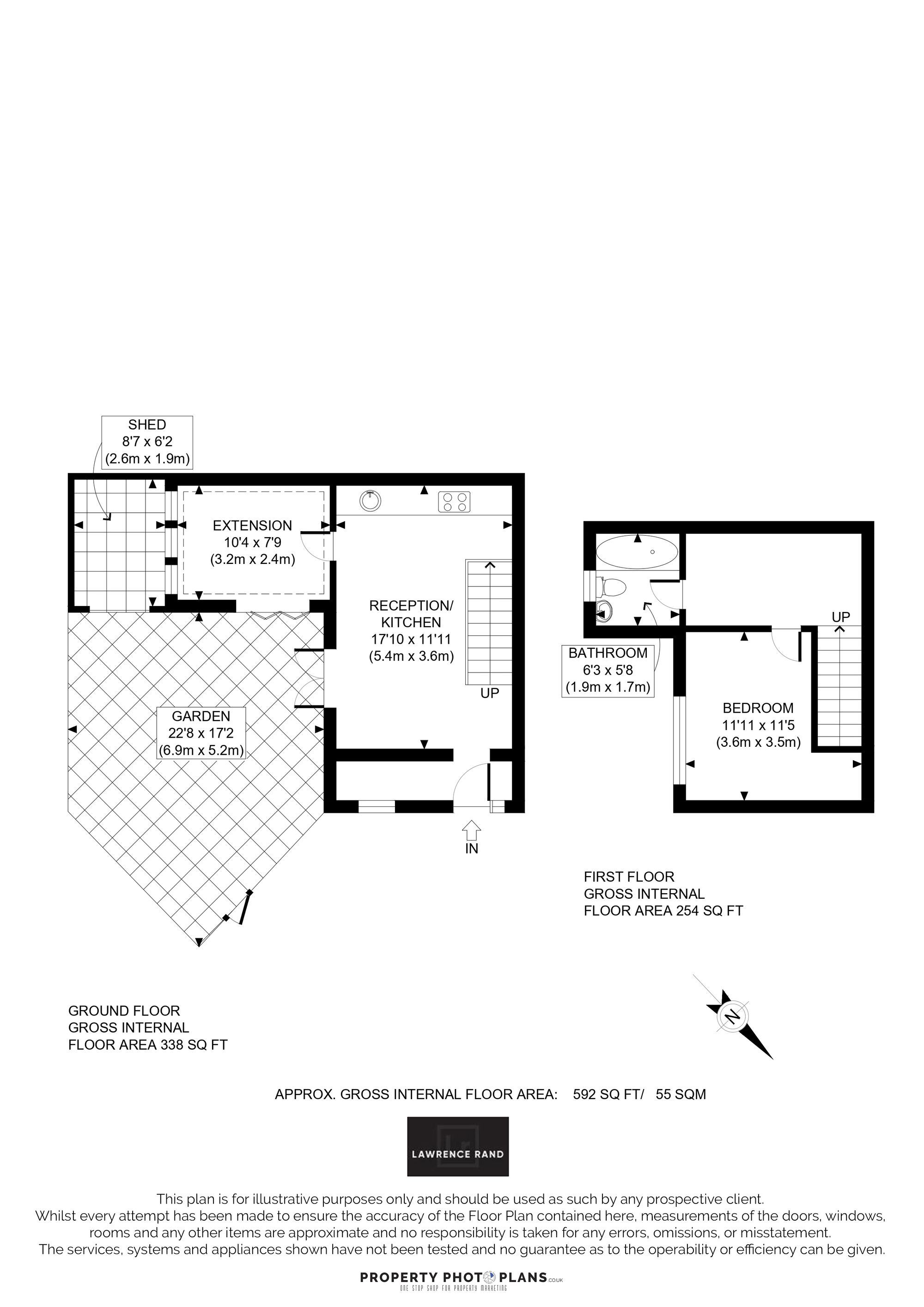
1 Bedroom Semi-Detached House for sale in Northolt

2 1 1
  • One Bedroom House
  • Private Rear Garden
  • Open Plan Kitchen Living
  • Close To Northolt And South Ruislip
  • Driveway
  • Conservatory

A beautifully presented one-bedroom freehold house located within a popular residential development on the borders of Northolt and South Ruislip, with a conservatory, private garden and allocated parking.

The property offers bright and well-appointed accommodation throughout. On the ground floor, an entrance porch leads into an attractive open-plan living space. The lounge area is light and welcoming with patio doors to the garden, with stairs rising to the first floor, and flows seamlessly into a modern fitted kitchen featuring sleek units and integrated cooking appliances. There is a conservatory with bi-folding doors into the private garden, creating an ideal space for relaxing or entertaining. The ground floor is finished with stylish wood flooring, adding to the modern feel of the home.

Upstairs, the property offers a spacious and comfortable double bedroom along with a contemporary bathroom, fitted with a bath, WC and vanity wash hand basin.

Externally, the property benefits from its own private garden as well as off-street parking.

Rabournmead Drive forms part of a modern development conveniently located close to both South Ruislip and Northolt, offering easy access to local amenities, transport links and green spaces.

Presented with care by Lawrence Rand – helping you find the place you’ll love to call home.

Verified Material Information:

Council Tax band: C

EPC Energy Efficiency Rating: E

Suppliers:

Electricity supply: Mains, Water supply: Mains water, Sewerage: Mains

Heating: Electric

Broadband & mobile coverage:

Broadband: FTTP (Fibre to the Premises)

Mobile coverage: O2 - Excellent, Vodafone - Excellent, Three - Excellent, EE - Excellent

Important Information

  • This is a Freehold property.
  • This Council Tax band for this property is: C
  • EPC Rating is D

Property Ref: 992613ff-9c07-49e6-b56f-1df3ce1b22d0

Share:

Similar Properties

Baldwins Lane, Croxley Green, WD3

2 Bedroom Flat | £340,000

This spacious duplex two double-bedroom maisonette is conveniently located close to 'The Green'.

Harrow View, North Harrow, HA2

2 Bedroom Flat | Guide Price £340,000

Ideally situated for access to transport links into central London is this well-presented two double bedroom flat.

Sheepcote Gardens, Denham

2 Bedroom Maisonette | Asking Price £335,000

Two bedroom first floor maisonette with 140' private rear garden with garage, large kitchen, chain free and a 122 year l...

Berkeley Close, Ruislip

2 Bedroom Maisonette | Asking Price £350,000

Two double-bedroom ground-floor maisonette with private entrance and own garden situated in close proximity to Ruislip G...

Bournemead Avenue, Northolt

2 Bedroom Maisonette | Offers in excess of £350,000

Large-style two double bedroom maisonette with off street parking and large rear garden.

Beechwood Avenue, Ruislip

2 Bedroom Ground Floor Flat | Asking Price £350,000

In an ultra-convenient location this well presented two double bedroom ground floor maisonette has been tastefully decor...

Lawrence Rand (Ruislip Manor)

Ruislip Manor, Middlesex, HA4 9BH

01895 632211

How much is your home worth?

Use our short form to request a valuation of your property.

Request a Valuation

Mortgage Calculator

Amount Borrowed: £
Total Amount Repayable: £
Total Monthly Payment: £
©2026 The Guild of Property Professionals. All rights reserved. Terms and Conditions | Privacy Policy | Cookie Policy | Complaints Policy | Members Login
The Guild of Property Professionals Trading Address: 121 Park Lane, London W1K 7AG. GPEA Limited. Registered in England & Wales.  Company No: 02819824.  Registered Office Address: 2 St. Stephen's Court, St. Stephen's Road, Bournemouth, Dorset, England, BH2 6LA.  VAT Registration No: 576 8795 61
Book a Property Valuation Update Cookies Preferences