Tabernacle Lane, Forncett St Peter (flexible home with enormous potential). NR16 1LE

Offers in region of
£620,000

4 Bedroom Detached House for sale in Norwich

3 4 2
  • An opportunity to own a historic former public house in a sought after Village
  • Offering approximately 3000 sq ft including outbuildings and garage / workshop
  • Set in the heart of Forncett St Peter, close to the village’s remaining public house
  • Sitting on a generous 0.25 acre plot with a fully enclosed garden 70ft x 50ft
  • Reconfiguration would be required for the property to fulfil it's full potential
  • With thoughtful redesign, the property could provide a self contained annexe or holiday let
  • Two further bedrooms with ensuites one or both with a walk in dressing room
  • A guest bedroom with use of a downstairs bathroom and a stunning Kitchen with access to enclosed garden
  • With no forward chain, it is a unique and flexible home with enormous potential, ready for its next chapter.
  • See our full online listing for further details including flood risk, broadband speed and other material information

 

Rich in heritage and character, the Old Trowel & Hammer offers a rare opportunity to own a historic former public house dating back to the late 18th century. Deeds trace the site to 1783, with the building itself believed to have been constructed around 1830 by local bricklayer James Humphreys. Formerly a well-known beer house operating from the mid-1830s until its closure in 1955, the property still retains charming architectural nods to its past, including bricks inscribed with family initials and dates such as JH 1876 and HH 1876. Once a thriving village hub hosting auctions, gatherings, and traditional games, the pub later came under the ownership of regional brewers Steward & Patteson before eventually becoming the distinctive private residence it is today.

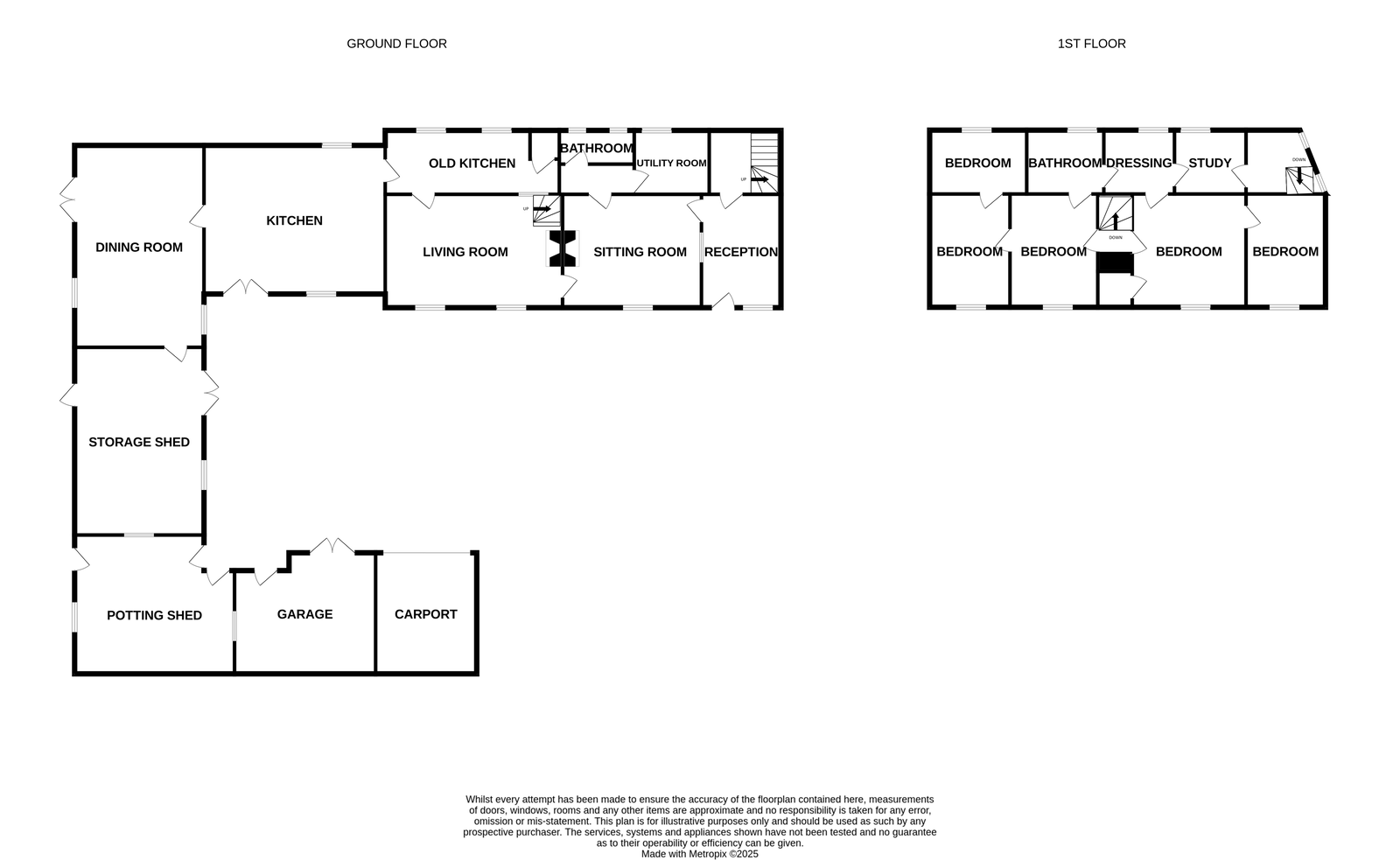
Set in the heart of Forncett St Peter, close to the village’s remaining public house, The Jolly Farmers, this impressive home now offers approximately 3,000 sq ft of accommodation including outbuildings and a garage. Positioned on a generous 0.25-acre plot, the property features a wealth of versatile living space. The ground floor includes a cosy living room and separate sitting room divided by an inglenook fireplace, a superb 20ft vaulted kitchen, and a 22ft dining room ideal for entertaining. Upstairs, there are four bedrooms which could potentially be six depending on requirements, currently arranged in a traditional layout where rooms lead from one into another, offering exciting scope for reconfiguration.

With thoughtful redesign, the property could provide:

•Two spacious bedrooms with en-suites

•A self-contained annexe or holiday let with one bedroom, en-suite, living room and kitchen

•A separate guest bedroom with access to the downstairs bathroom

•A stunning 34ft vaulted kitchen opening onto a private 50ft rear garden

With no forward chain, the Old Trowel & Hammer presents a unique and flexible home with enormous potential, ready for its next chapter.

Reception Room - 3.81m x 2.44m (12'6" x 8'0")

Stairway with under stairs cupboard - 2.41m x 2.03m (7'11" x 6'8")

Utility Room - 2.26m x 2.16m (7'5" x 7'1")

Bathroom - 2.46m x 1.19m (8'1" x 3'11")

Inner Hallway - 2.46m x 0.64m (8'1" x 2'1")

Sitting Room with inglenook fireplace - 4.67m x 3.81m (15'4" x 12'6")

Living Room with inglenook fireplace - 5.97m x 3.81m (19'7" x 12'6")

Old Kitchen - 5.44m x 2.16m (17'10" x 7'1")

New kitchen with vaulted ceiling - 6.1m x 5m (20'0" x 16'5")

Dining Room with patio doors into garden - 6.78m x 4.34m (22'3" x 14'3")

Enclosed Garden - 21.34m x 15.24m (70'0" x 50'0")

Second Staircase leading to first floor - 1.52m x 1.19m (5'0" x 3'11")

Bedroom One - 3.81m x 3.81m (12'6" x 12'6")

Study / Bedroom - 2.41m x 2.18m (7'11" x 7'2")

Bedroom Two - 3.81m x 2.69m (12'6" x 8'10")

Dressing Room - 2.41m x 2.18m (7'11" x 7'2")

Bedroom Three - 3.81m x 2.97m (12'6" x 9'9")

Bathroom Two - 2.59m x 2.18m (8'6" x 7'2")

Bedroom Five - 3.81m x 2.69m (12'6" x 8'10")

Study / Bedroom Six  - 2.72m x 2.18m (8'11" x 7'2")

 

Outside

Plot Size - 42.67m x 21.34m (140'0" x 70'0")

Storage Room - 6.32m x 4.34m (20'9" x 14'3")

Potting Shed - 5.36m x 4.67m (17'7" x 15'4")

Garage / Workshop - 4.78m x 4.06m (15'8" x 13'4")

Car Port - 4.67m x 3.4m (15'4" x 11'2")

Courtyard - 19.81m x 12.19m (65'0" x 40'0")

Parking for 4/6 cars with the potential for additional parking to be made

Important Information

  • This is a Freehold property.
  • This Council Tax band for this property is: E

Property Ref: 1250554

Share:

Similar Properties

Hale Road, Ashill, IP25

5 Bedroom Detached House | Guide Price £585,000

Moneyproperties are thrilled to present this brand new five-bedroom detached house set in the beautiful Norfolk countrys...

Hackford Road, Wicklewood, NR18

4 Bedroom Bungalow | Offers in region of £575,000

Moneyproperties are delighted to be marketing this generous family home occupying a large plot in the popular village of...

Carrs Hill Close, Costessey, Norwich NR8 5DW

4 Bedroom Detached House | Offers in region of £575,000

A rare opportunity to acquire a spacious four-bedroom detached bungalow offered with no forward chain, allowing for a sw...

Church Road, Deopham, Wymondham, Norfolk, NR18 9DT

5 Bedroom Barn Conversion | Offers in region of £645,000

Unique Five-Bedroom Barn Conversion – Deopham. A rare opportunity to acquire this stunning five-bedroom barn conversion,...

Oak Lodge, Norwich Road, Ashwellthorpe

4 Bedroom Detached House | Fixed Price £665,000

Moneyproperties welcome you to Oak Lodge in the picturesque village of Ashwellthorpe, a truly magnificent family home se...

The Willows, Wramplingham. Beautiful Family Home with Landscaped Gardens, Annexe and Potential Building Plot (SSTP)

6 Bedroom Detached House | Guide Price £945,000

GUIDE PRICE £945,000An outstanding opportunity for large or extended families, this unique property offers up to 6 bedro...

Money Properties (Wymondham)

17/18 Market Place, Wymondham, Norfolk, NR18 0AX

01953 423 006

How much is your home worth?

Use our short form to request a valuation of your property.

Request a Valuation

Mortgage Calculator

Amount Borrowed: £
Total Amount Repayable: £
Total Monthly Payment: £
©2026 The Guild of Property Professionals. All rights reserved. Terms and Conditions | Privacy Policy | Cookie Policy | Complaints Policy | Members Login
The Guild of Property Professionals Trading Address: 121 Park Lane, London W1K 7AG. GPEA Limited. Registered in England & Wales.  Company No: 02819824.  Registered Office Address: 2 St. Stephen's Court, St. Stephen's Road, Bournemouth, Dorset, England, BH2 6LA.  VAT Registration No: 576 8795 61
Book a Property Valuation Update Cookies Preferences