Little Barningham, Nr Holt

£300,000

2 Bedroom Semi-Detached House for sale in Norwich

2 2
  • NO ONWARD CHAIN
  • Backing Meadow with Farmland Views
  • Spacious Sitting Room
  • Separate Dining Room/Bedroom 3
  • Kitchen/Breakfast Room
  • Inner Hall/Study
  • Utility & Cloak Room
  • Two Double Bedrooms with En-Suite
  • Garage
  • Low Maintenance Gardens

Location 'The Deepings' enjoys a prime position at the heart of the charming village of Little Barningham, a peaceful rural setting ideally located just 6.5 miles from both Holt and the market town of Aylsham. These nearby towns offer a wide range of excellent shopping and everyday amenities, while the city of Norwich lies approximately 19 miles to the south, providing extensive retail, educational, business and leisure facilities.

This picturesque village is perfectly placed for exploring the stunning North Norfolk Heritage Coast, with its renowned beaches and nature reserves. Everyday conveniences are close at hand, including a garage in the neighbouring village of Edgefield, and a shop/post office in Corpusty. Dining options are plentiful, with The Pigs a highly regarded restaurant and pub just a short drive away, and The Walpole Arms gastro pub in nearby Itteringham, which also features a community-run shop and café.

For lovers of history and heritage, two National Trust properties – Blickling Hall and Felbrigg Hall – are within easy reach. Transport links are excellent, with rail stations at Sheringham, Gunton, Cromer and North Walsham, and a direct mainline service from Norwich to London Liverpool Street in approximately 100 minutes. Norwich Airport, just 17 miles away, offers a gateway to international travel. 

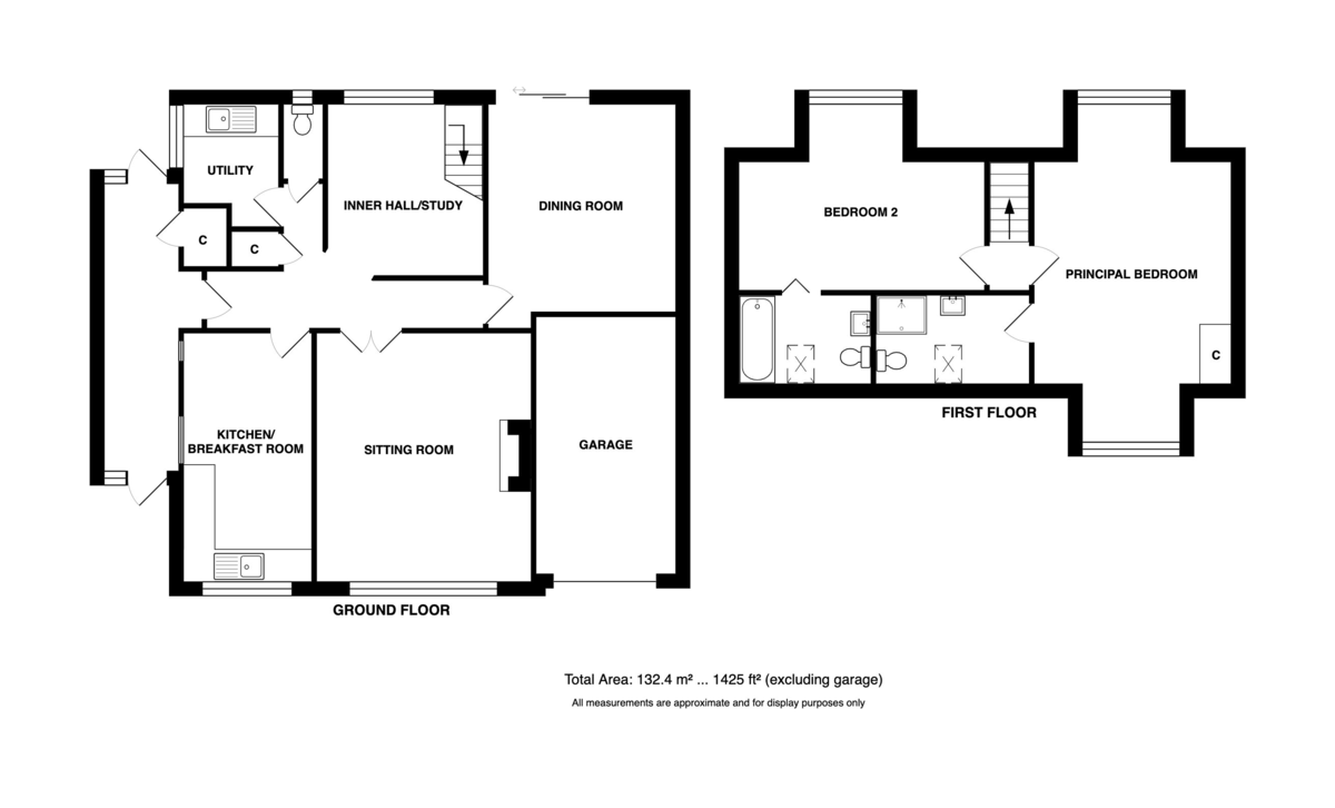
Description Tucked away in the charming and traditional village of Little Barningham, The Deepings is a deceptively spacious semi-detached chalet-style house offering over 1600 sq ft of bright, flexible accommodation arranged across two floors. The property benefits from double-glazed windows and external doors and a recently installed electric boiler connected to the existing wet radiator system ensures efficient heating.

The south-facing sitting room and adjoining kitchen/breakfast room are flooded with natural light throughout the afternoon, creating a warm and inviting atmosphere. A separate dining room, previously used as a studio, opens onto the rear garden via patio doors and permanent or guest bedroom. Additional ground floor features include a cloakroom and a compact utility area and an inner hall with plenty of space to accommodate a dining table or create a study area. Upstairs, two generous double bedrooms each enjoy en-suite facilities, the principal with a shower room and the second with a full bathroom. The main bedroom also benefits from tranquil views across the meadow and surrounding countryside.

Outside, the low-maintenance gardens are a real asset. A driveway leads to a garage, with scope to extend the ground floor space if desired. The rear garden is attractively paved and shingled, enclosed by screen fencing for privacy, and backs onto a meadow-offering a peaceful backdrop and a blank canvas for further landscaping.
:
uPVC part glazed entrance door and side window to:
 

Entrance Porch 18' 6" x 4' 9" (5.64m x 1.45m) With uPVC part glazed door and side window leading to the rear garden, built-in shelved storage cupboard, wall light, ceramic tiled floor, uPVC part glazed entrance door to:
 

Reception Hall 17' 9" x 3' 2" min (5.41m x 0.97m) Built-in cupboard housing the Heatrae Sadia electric boiler which serves the central heating and domestic hot water, telephone point, radiator, ceiling rose, ceiling coving. 

Cloakroom 4' 11" x 2' 11" (1.5m x 0.89m) (Rear Aspect) With white suite comprising of low-level WC, ceramic tile floor, ceiling coving. 

Sitting Room 15' 11" x 13' 9" (4.85m x 4.19m) (Front aspect) A bright and airy room with feature fireplace, double radiator, telephone point, TV point, carpet, ceiling coving. 

Dining Room/Bedroom 3 13' 4" min x 12' 0" (4.06m x 3.66m) (rear aspect) Four wall lights, double radiator, double glazed patio doors to the rear garden, ceiling coving. 

Kitchen/Breakfast Room 15' 11" x 7' 11" (4.85m x 2.41m) (Front Aspect) Inset single drainer stainless steel sink unit with mixer tap, cupboards and drawer under, further base cupboard and drawer units with work surface over, part-tiled walls, cooker point, double radiator, ceramic tiled floor. 

Utility Room 6' 4" min x 5' 4" (1.93m x 1.63m) (side Aspect) Single drainer stainless steel sink unit with mixer tap with space and plumbing under for an automatic washing machine, radiator, part-tiled walls, ceramic tiled floor, ceiling coving. 

Inner Hall/Study 10' 11" x 9' 11" (3.33m x 3.02m) (Rear Aspect) To include the staircase to the first floor, radiator, TV point, ceiling rose, ceiling coving.

On The First Floor 

Landing  

Principal Bedroom 21' 10" x 12' (6.65m x 3.66m) (Front & Rear Aspect) Fitted cupboard, double radiator, TV point, carpet, most attractive views over meadows to the rear and farmland beyond. 

En-Suite Shower Room 8' 9" x 5' 6" (2.67m x 1.68m) With white suite comprising of fully tiled corner shower cubicle, pedestal hand basin, low level WC, double radiator, shaver and light point, part-tiled walls, ceramic tiled floor, extractor fan, Velux window. 

Bedroom 2 15' 9" x 8' 3" (4.8m x 2.51m) plus alcove to window 6' x 3' 10" TV point, double radiator, carpet, most attractive views to the rear over meadows and farmland beyond, folding door to: 

En-Suite Bathroom 8' 6" x 5' 6" (2.59m x 1.68m) White suite comprising of twin grip panel bath with independent shower over rail and curtain, pedestal hand basin, low level WC, light and shaver point, extensively tiled walls, radiator, ceramic tiled floor, extractor fan, Velux window. 

Outside To the front of the property the garden is largely hard landscaped with a gravel driveway, gravel borders with a variety of shrubs, bushes and young trees and a further area of brick sets providing further parking. The rear garden is once again hard landscape being laid to paving and gravel for ease of maintenance with screen fencing to all boundaries with a meadow directly behind the garden. 

Services Mains water and electricity. Private foul water treatment plant. 

Local Authority/Council Tax North Norfolk District Council, Holt Road, Cromer NR27 9EN Telephone: 01263 513811
Council Tax Band C.
 

EPC Rating The EPC rating for the property is E. A full energy performance certificate is available on request. 

Agents Note Intending purchasers will be asked to provide original identity documentation and proof of address before solicitors are instructed. 

We Are Here To Help If your interest in this property is dependent on anything about the property or its surroundings which are not referred to in these sale particulars, please contact us before viewing and we will do our best to answer any questions you may have. 

Property Ref: 57482_101301039189

Share:

Similar Properties

Overstrand

2 Bedroom Detached Bungalow | £300,000

An extremely well presented detached bungalow tucked away in a small close of similar style properties with a pretty, es...

Roughton, Nr Cromer

3 Bedroom Semi-Detached House | Guide Price £300,000

Guide Price £300,000 to £325,000. An attractive three bedroom semi-detached character cottage with gardens parking and r...

West Runton, Cromer

2 Bedroom Terraced House | Guide Price £300,000

A delightful two bedroom mid terrace character cottage with 27' long open plan living space, in a gem of a location faci...

Sheringham

2 Bedroom Detached Bungalow | Guide Price £320,000

A well presented, detached bungalow, situated within a short stroll of the local shop, bus stop and beautiful woodland o...

Saracen Road, Hellesdon

3 Bedroom Detached Bungalow | Guide Price £325,000

An attractive three bedroom detached bungalow, newly redecorated and with a new bathroom, situated on a corner plot with...

Sheringham

3 Bedroom Semi-Detached House | Guide Price £325,000

Situated within a short stroll of the East beach and coastal path, this lovely house is an ideal home for a couple or fa...

Watsons (Sheringham)

Sheringham, Norfolk, NR26 8RG

01263 823201

How much is your home worth?

Use our short form to request a valuation of your property.

Request a Valuation

Mortgage Calculator

Amount Borrowed: £
Total Amount Repayable: £
Total Monthly Payment: £
©2026 The Guild of Property Professionals. All rights reserved. Terms and Conditions | Privacy Policy | Cookie Policy | Complaints Policy | Members Login
The Guild of Property Professionals Trading Address: 121 Park Lane, London W1K 7AG. GPEA Limited. Registered in England & Wales.  Company No: 02819824.  Registered Office Address: 2 St. Stephen's Court, St. Stephen's Road, Bournemouth, Dorset, England, BH2 6LA.  VAT Registration No: 576 8795 61
Book a Property Valuation Update Cookies Preferences