Loddon, Norwich

£400,000
SSTC
This property listing is now SSTC

4 Bedroom Barn Conversion for sale in Norwich

2 4 3
  • Charming Barn Conversion
  • Four Bedrooms
  • Exposed Timbers
  • Vaulted Sitting Room
  • En-Suite to Master Bedroom
  • Three Bay Cart Lodge
  • Central Courtyard
  • Partially Walled Gardens
  • Half an Acre of Land (sts).
  • Viewing Advised

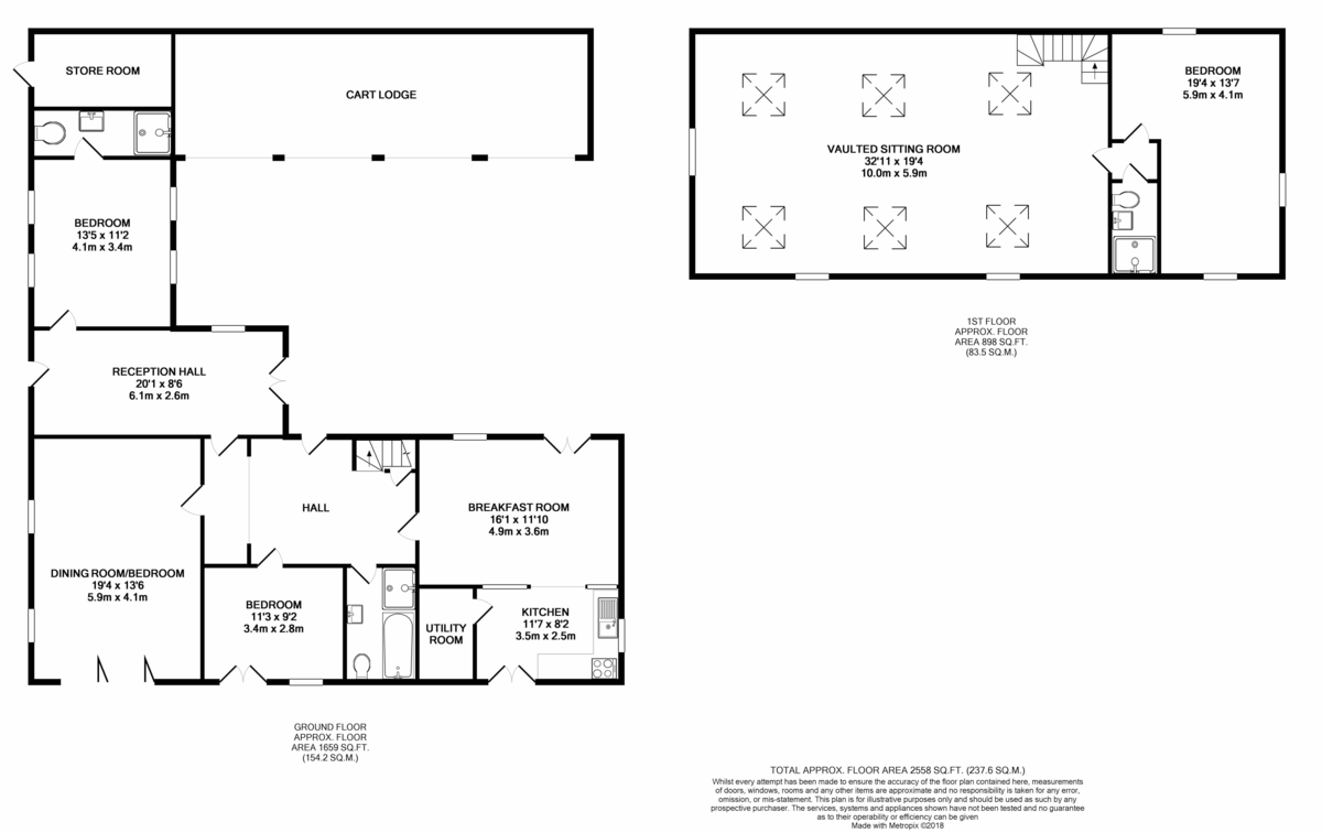
The Coach House is a charming and innovative barn conversion located in the curtilage of a Grade II listed building. The Coach House offers a wide range of period features including a fabulous vaulted first floor sitting room, exposed brick walls and ceiling timbers. The versatile accommodation is set over two floors. The ground floor offers a kitchen breakfast room, three bedrooms, bathroom, garden room and utility room. The first floor serves a fine vaulted sitting room, a master bedroom and shower room. Outside there is a central courtyard with a three bay open cart lodge. To the rear there is a partially walled garden and orchard. The grounds extend to approximately half an acre (stms). 

LODDON INGLOSS Loddon Ingloss is a small hamlet neighbouring the bustling market town of Loddon where a wide range of day to day shopping facilities can be found including banking facilities, renowned butchers, supermarket, chemist and a wide variety of clubs and societies. To the north, the cathedral city of Norwich can be found. Norwich offers an array of shopping facilities, departmental stores, two shopping centres and many cultural and leisure facilities. There is a mainline railway station serving London Liverpool Street and Cambridge. To the north of the city there is an international airport. 

ENERGY EFFICIENCY RATING D. The reference number or full certificate can be obtained from Sowerbys upon request.
To retrieve the Energy Performance Certificate for this property please visit https://www.epcregister.com/ and enter in the reference number. 

Important Information

  • This is a Freehold property.

Property Ref: 2-58578_100439026950

Share:

Similar Properties

Lenwade, Norwich

3 Bedroom Semi-Detached House | Guide Price £400,000

Mill House is part of the award winning development of Lenwade Water Mill. The property, formerly home to the old miller...

Weston Longville, Norwich

3 Bedroom Detached House | Guide Price £400,000

The Firs is situated on the edge of the Weston Hall estate and does require some updating. Two/three bedrooms, sitting r...

Wayford

2 Bedroom Semi-Detached House | Offers in excess of £350,000

Lovely holiday home nestled in the Norfolk Broads in a private marina. The property boasts light and sunny rooms, includ...

Bunwell, Norwich

4 Bedroom Detached House | Guide Price £425,000

Guide Price £425,000 - £450,000. Beautiful character cottage with an abundance of period features. Dining ro...

Hickling, Norwich

4 Bedroom Detached House | Guide Price £425,000

A charming and well proportioned south facing Victorian property offering impressive countryside views and easy access t...

Edingthorpe, Norfolk

5 Bedroom Detached House | £440,000

Idyllic five bedroom property comprising, sitting room, study, kitchen/breakfast room, impressive garden room, utility,...

Sowerbys Norwich (Norwich)

Queen Street, Norwich, Norfolk, NR2 4SX

01603 761441

How much is your home worth?

Use our short form to request a valuation of your property.

Request a Valuation

Mortgage Calculator

Amount Borrowed: £
Total Amount Repayable: £
Total Monthly Payment: £
©2026 The Guild of Property Professionals. All rights reserved. Terms and Conditions | Privacy Policy | Cookie Policy | Complaints Policy | Members Login
The Guild of Property Professionals Trading Address: 121 Park Lane, London W1K 7AG. GPEA Limited. Registered in England & Wales.  Company No: 02819824.  Registered Office Address: 2 St. Stephen's Court, St. Stephen's Road, Bournemouth, Dorset, England, BH2 6LA.  VAT Registration No: 576 8795 61
Book a Property Valuation Update Cookies Preferences