Norwich Road, New Costessey, Norwich

Asking Price
£200,000

Land for sale in Norwich

  • Rare Opportunity For A Self Build property
  • Full Planning Permission Agreed
  • Over 2000 square feet Of Accommodation
  • Desirable Location
  • Ideal For Self Build Project
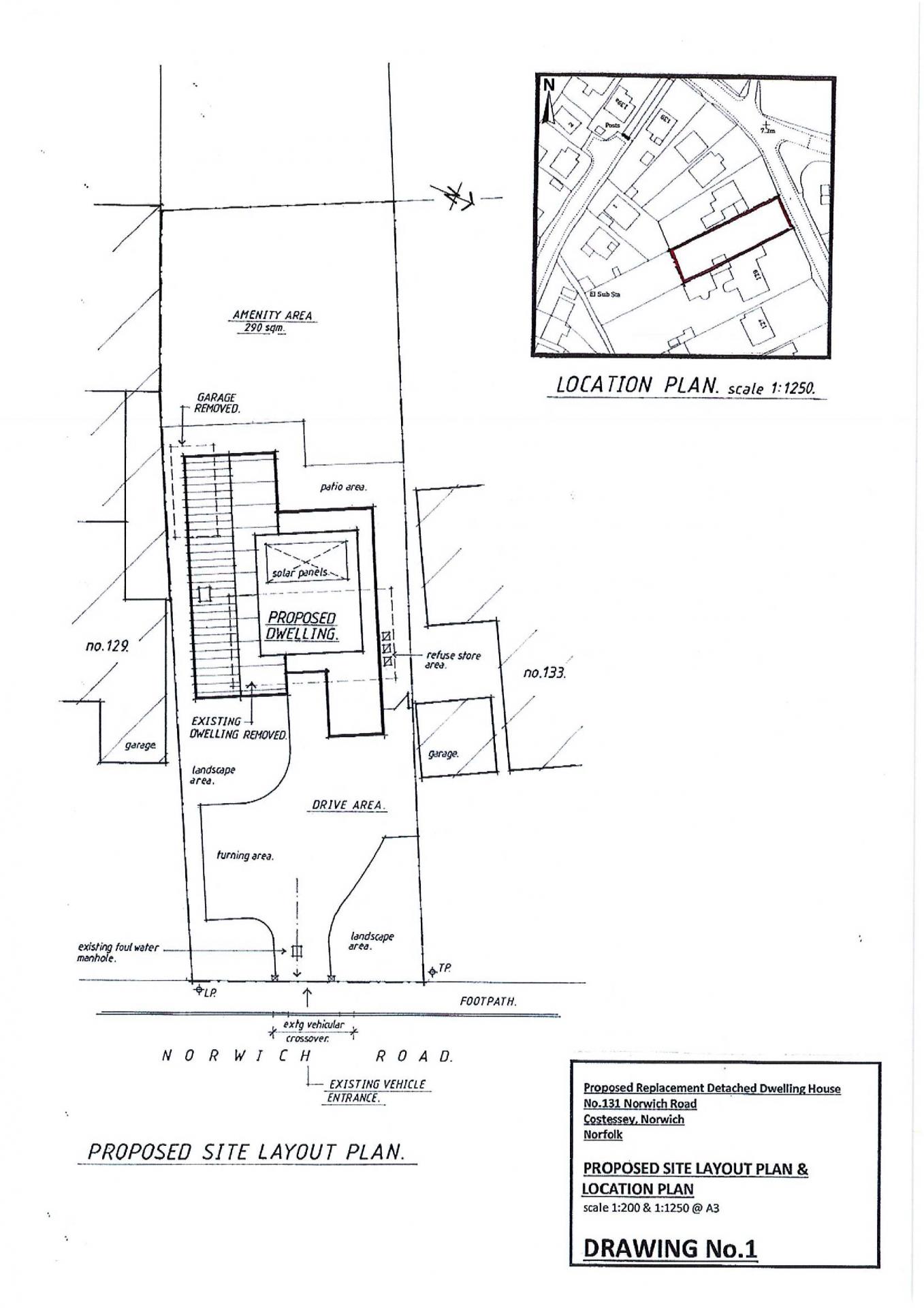
  • Planning Reference Number 2025/0719
  • Call Now For Further Details

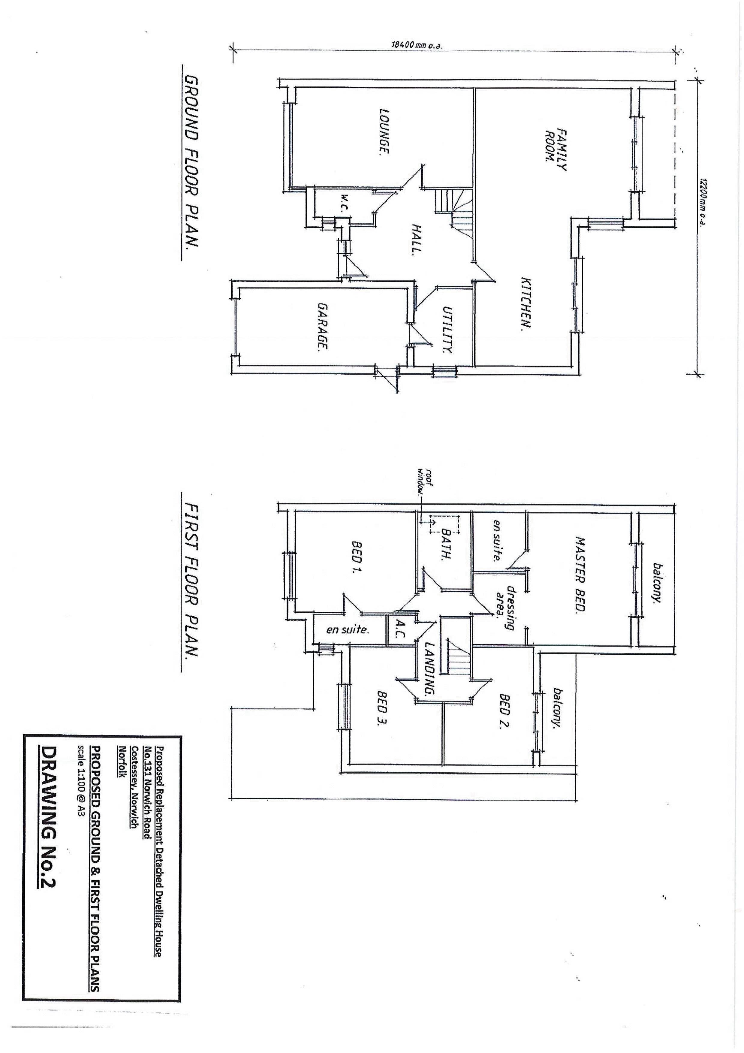
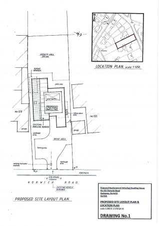
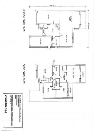
***RARE OPPORTUNITY*** Located in this highly desirable suburb of Norwich, Iconic estate agents are delighted to bring to the market this spacious building plot with full planning permission granted for a four-bedroom detached family home with over 2000 square feet of accommodation. The plot which extended to just over a third of an acre and benefits from rear pedestrian access. The property will boast accommodation that comprises; a hall entrance, spacious lounge, utility room a spacious open plan kitchen/dining/family room which overlooks the garden to the rear. Upstairs there are four generous bedrooms with two en-suite bathrooms, a family bathroom and two balconies’ overlooking the garden. This represents a fantastic opportunity for a self-build project or small developer to build this amazing family home.  The full planning application number on the Broadland planning site is 2025/0719. If you have any further questions or wish to arrange a time to view, please call iconic today.



Important Information

  • This is a Freehold property.

Property Ref: EAXML11851_12776192

Share:

Similar Properties

Old Warren, Taverham, Norwich

2 Bedroom House | Offers in excess of £200,000

***OFFERED WITH NO ONWARD CHAIN*** Iconic estate agents are delighted to offer for sale this stylish and contemporary tw...

Reepham Road, Hellesdon, Norwich

2 Bedroom House | Offers in excess of £200,000

***INVESTMENT OPPORTUNITY *** Located in the sought-after suburb of Hellesdon, this attractive 1930's semi-detached home...

Arthurton Road, Spixworth, Norwich

3 Bedroom House | Asking Price £199,995

***GREAT STARTER HOME*** Iconic are pleased to bring to the market this attractive three bedroom semi-detached home. Sit...

Old Warren, Taverham, Norwich

2 Bedroom End of Terrace House | Offers in excess of £210,000

**NO ONWARD CHAIN**.  Iconic estate agents are pleased to bring to the market, this end of terrace house with accommodat...

Grace Edwards Close, Drayton, Norwich

2 Bedroom House | Offers in excess of £210,000

***SOUGHT AFTER DRAYTON POSITION*** Iconic estate agents are delighted to offer for sale this two bedroom, mid terrace p...

St. Peters Road, Sheringham

2 Bedroom Ground Floor Flat | Guide Price £210,000

***Charming Ground Floor Apartment with Private Garden*** Located just moments from Sheringham’s vibrant town centre and...

Iconic (Norwich)

Taverham, Norwich, Norfolk, NR8 6LE

01603 261104

How much is your home worth?

Use our short form to request a valuation of your property.

Request a Valuation

Mortgage Calculator

Amount Borrowed: £
Total Amount Repayable: £
Total Monthly Payment: £
©2025 The Guild of Property Professionals. All rights reserved. Terms and Conditions | Privacy Policy | Cookie Policy | Complaints Policy | Members Login
The Guild of Property Professionals Trading Address: 121 Park Lane, London W1K 7AG. GPEA Limited. Registered in England & Wales.  Company No: 02819824.  Registered Office Address: 2 St. Stephen's Court, St. Stephen's Road, Bournemouth, Dorset, England, BH2 6LA.  VAT Registration No: 576 8795 61
Book a Property Valuation Update Cookies Preferences