Newton Park Homes, Norwich

Asking Price
£50,000
SSTC
This property listing is now SSTC

1 Bedroom Park Home for sale in Norwich

1 1 1
  • One Bedroom Park Home
  • Popular Local Dvelopment
  • Rear and Side Garden Spaces
  • Driveway Providing Parking
  • Pitch Fees £161.08 PCM with review in April 2026
  • Offered With No Onward Chain
  • Council Tax Band A
  • No Pets Allowed

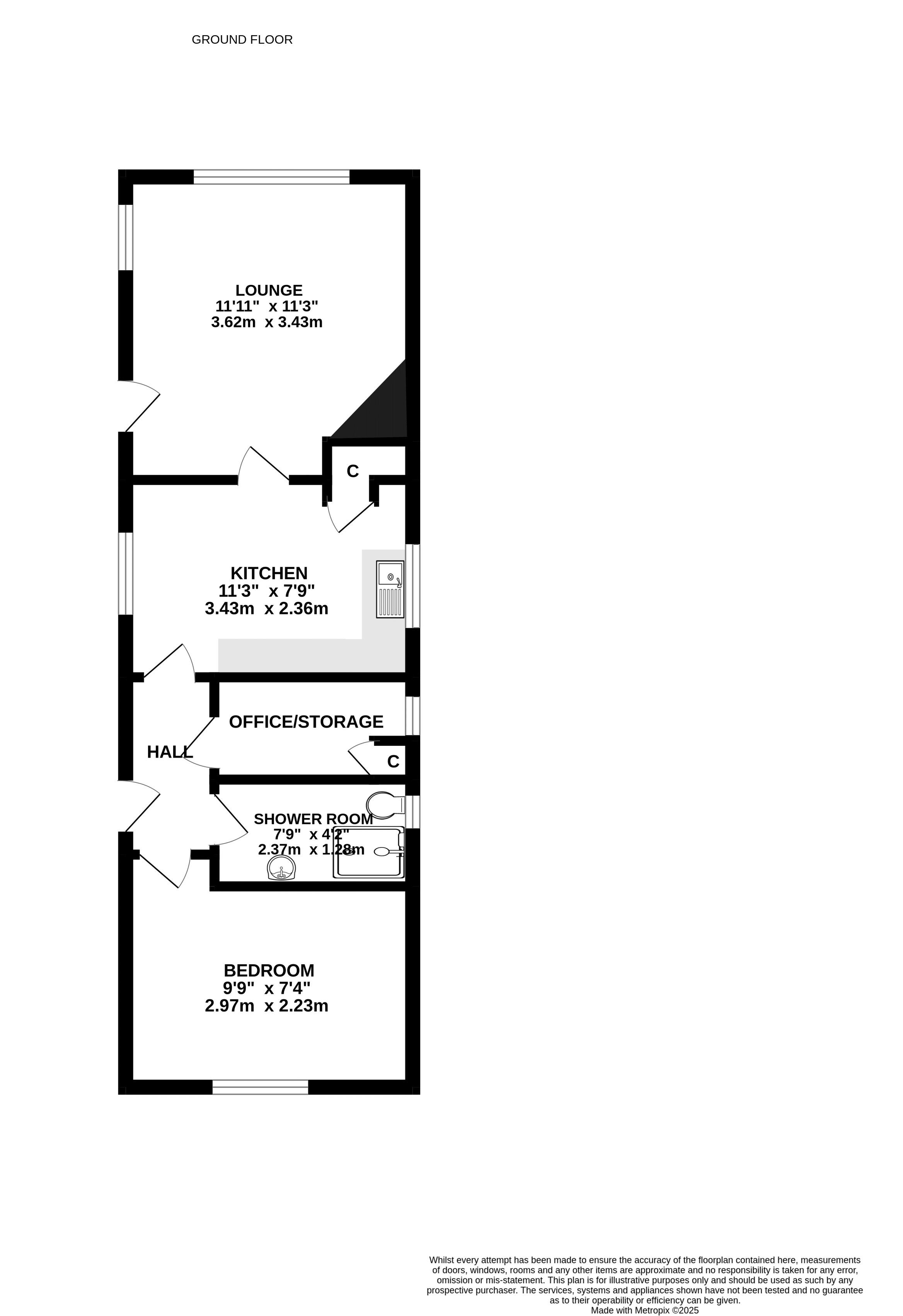
PRICED TO SELL – NO ONWARD CHAIN. Offered with no onward chain, this one bedroom park home is located on a popular and well-established development in the desirable village of Newton St Faith. Requiring modernisation throughout, the property represents a fantastic opportunity for buyers looking to put their own stamp on a home, whether as a main residence or a peaceful retreat.
The accommodation comprises an entrance hallway with access to all rooms. To the rear of the property is a well-proportioned double bedroom with a range of fitted wardrobes providing ample storage. Adjacent to the bedroom is a shower room featuring a three piece suite including a shower cubicle, low level WC, and hand wash basin. There is also a useful office or storage room with an additional built-in cupboard.
The kitchen is fitted with a selection of wall and base units and leads through to a bright sitting room located at the front aspect of the home – an ideal space to relax and unwind.
Externally, the property benefits from a brick-paved pathway with steps leading to the front door, a garden area to the side and rear, and a driveway offering off-road parking.
Please note that probate has been applied for but is not yet granted. No pets allowed. Current pitch fees are £161.08 PCM and will be reviewed in April 2026.

Important Information

  • This is a Share of Freehold property.

Property Ref: EAXML11851_12712009

Share:

Similar Properties

Taverham Park Avenue, Norwich

4 Bedroom House | £1,895pcm

***IMMEDIATE AVAILABILITY*** Iconic estate agents are delighted to bring to the rental market, this well presented and d...

Marriott Chase, Taverham, Norwich

4 Bedroom House | £1,800pcm

***BEAUTIFUL FAMILY HOME BACKING ONTO MARRIOTT'S WAY*** AVAILABLE FROM JANUARY 2023. We are pleased to market this wonde...

Sidney Bunn Way, Drayton, Norwich

4 Bedroom House | £1,800pcm

***EXECUTIVE DETACHED FAMILY HOME BUILT IN 2021*** Iconic estate agents are delighted to bring to the market, this decep...

Drayton Hall Park, Drayton, Norwich

1 Bedroom Park Home | Offers in excess of £65,000

An attractive one bedroom park home situated in Drayton just West of Norwich. Offered with no onward chain this great ov...

Newton Park Homes, Norwich

2 Bedroom Park Home | Asking Price £79,995

We are delighted to bring to the market this immaculate two bedroom park home situated in Newton St. Faith. Occupying a...

Drayton Hall Park, Drayton, Norwich

2 Bedroom Park Home | Offers in excess of £80,000

***ATTRACTIVE PARK HOME*** Iconic are pleased to bring to the market this attractive two bedroom park home situated in D...

Iconic (Norwich)

Taverham, Norwich, Norfolk, NR8 6LE

01603 261104

How much is your home worth?

Use our short form to request a valuation of your property.

Request a Valuation

Mortgage Calculator

Amount Borrowed: £
Total Amount Repayable: £
Total Monthly Payment: £
©2025 The Guild of Property Professionals. All rights reserved. Terms and Conditions | Privacy Policy | Cookie Policy | Complaints Policy | Members Login
The Guild of Property Professionals Trading Address: 121 Park Lane, London W1K 7AG. GPEA Limited. Registered in England & Wales.  Company No: 02819824.  Registered Office Address: 2 St. Stephen's Court, St. Stephen's Road, Bournemouth, Dorset, England, BH2 6LA.  VAT Registration No: 576 8795 61
Book a Property Valuation Update Cookies Preferences