Old Warren, Taverham, Norwich

Asking Price
£220,000
SSTC
This property listing is now SSTC

2 Bedroom House for sale in Norwich

1 2 1
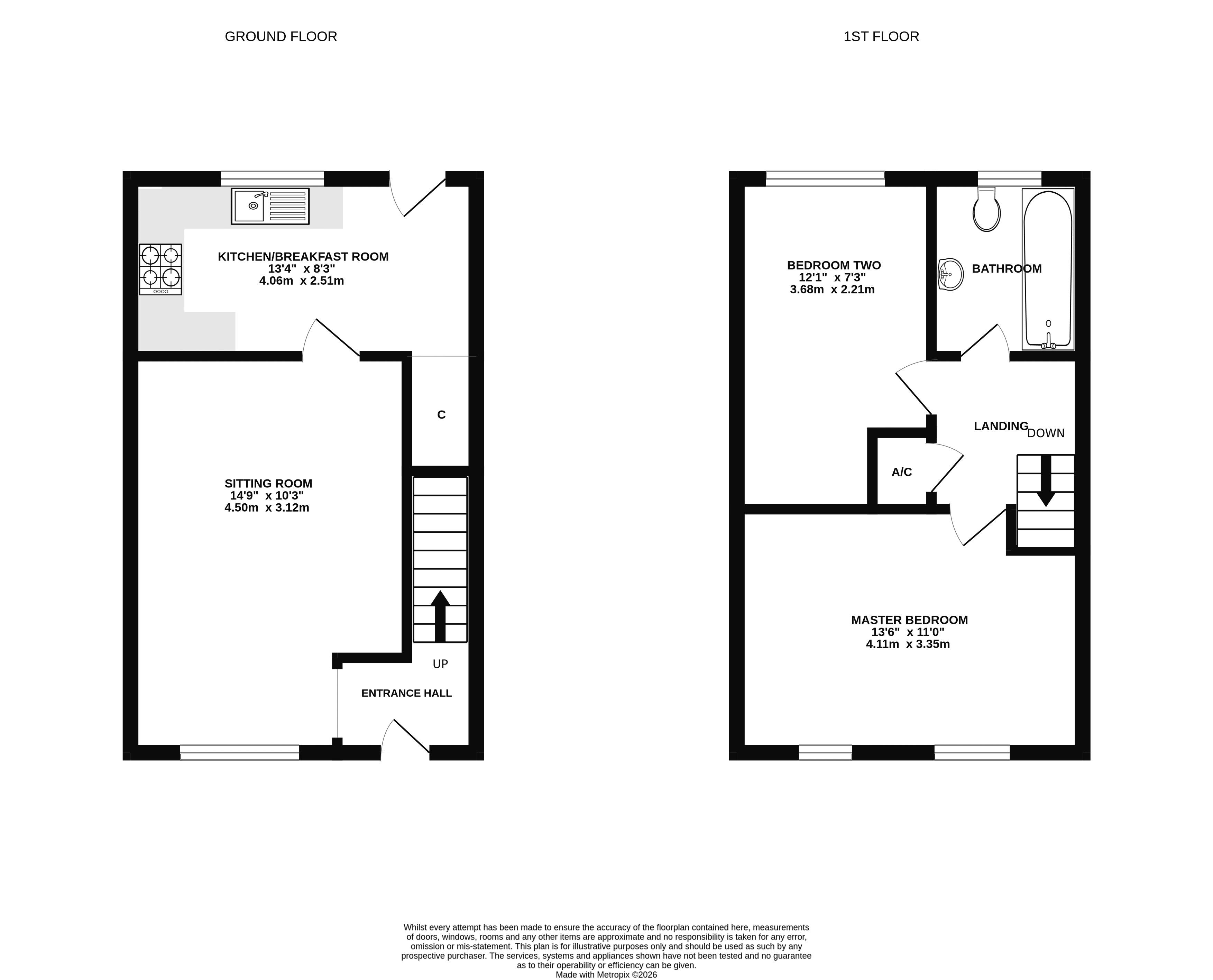
  • Modern Mid Terrace House
  • Two Double Bedrooms
  • Entrance Hall
  • Kitchen/Breakfast Room
  • Lounge
  • Enclosed Garden with Patio & Shed
  • Garage & Driveway
  • Sought After Location
  • Early Viewings Advised
  • EPC Rating C / Council Tax Band B

MODERN MID-TERRACE HOME WITH GARAGE & DRIVEWAY. Situated in a desirable location within the popular village of Taverham, this modern two-bedroom mid-terrace home offers well-presented accommodation, ideal for first-time buyers, downsizers or investors alike. The accommodation begins with an entrance hall featuring stairs rising to the first floor. The spacious lounge provides a comfortable living space, while the kitchen/breakfast room offers a range of wall and base units with work surfaces over, useful understairs storage, and ample space for a breakfast table. Upstairs, there are two well-proportioned double bedrooms off the landing, both served by a modern three-piece family bathroom suite. Externally, the property benefits from a small garden to the front. To the rear is an enclosed lawned garden with patio area, ideal for outdoor dining and relaxation, along with rear pedestrian access leading to the single garage and driveway, providing off-road parking. The property further boasts a modern boiler and electrical consumer unit for added peace of mind. The property is conveniently located within easy reach of local schools, shops and amenities that Taverham has to offer, as well as good transport links to Norwich and surrounding areas. Early viewing is strongly recommended to avoid disappointment.

Important Information

  • This is a Freehold property.

Property Ref: EAXML11851_12821568

Share:

Similar Properties

Nursery Close, Hellesdon, Norwich

3 Bedroom Semi-Detached House | Offers in excess of £220,000

Situated within a desirable cul-de-sac in the popular area of Hellesdon, this three-bedroom semi-detached home is offere...

Nutwood Close, Taverham, Norwich

2 Bedroom Semi-Detached House | Offers in excess of £220,000

An attractive two-bedroom end-of-terrace home, offered to the market with no onward chain, making it an ideal purchase f...

Lushington Close, Norwich

3 Bedroom Semi-Detached House | Asking Price £220,000

Situated in a quiet cul-de-sac within the popular NR5 area, this attractive three-bedroom semi-detached home is offered...

Gurney Road, New Costessey, Norwich

3 Bedroom Chalet | Asking Price £225,000

FANTASTIC INVESTMENT OPPORTUNITYWe are delighted to present this three-bedroom chalet bungalow situated in the sought-af...

Phoenix Way, Hampden View, Norwich

2 Bedroom Semi-Detached House | Offers in excess of £230,000

Iconic are delighted to present this modern two-bedroom home, situated on the popular Hampden View development. Built in...

Firethorn Close, Taverham, Norwich

3 Bedroom House | Guide Price £230,000

**GUIDE PRICE £230,000 - £240,000**. Iconic are pleased to present this well-appointed three-bedroom semi-detached home,...

Iconic (Norwich)

Taverham, Norwich, Norfolk, NR8 6LE

01603 261104

How much is your home worth?

Use our short form to request a valuation of your property.

Request a Valuation

Mortgage Calculator

Amount Borrowed: £
Total Amount Repayable: £
Total Monthly Payment: £
©2026 The Guild of Property Professionals. All rights reserved. Terms and Conditions | Privacy Policy | Cookie Policy | Complaints Policy | Members Login
The Guild of Property Professionals Trading Address: 121 Park Lane, London W1K 7AG. GPEA Limited. Registered in England & Wales.  Company No: 02819824.  Registered Office Address: 2 St. Stephen's Court, St. Stephen's Road, Bournemouth, Dorset, England, BH2 6LA.  VAT Registration No: 576 8795 61
Book a Property Valuation Update Cookies Preferences