Laburnum Avenue, Taverham, Norwich

Guide Price
£300,000
SSTC
This property listing is now SSTC

3 Bedroom Bungalow for sale in Norwich

2 3 1
  • Well Presented Detached Bungalow
  • Three Generous Bedrooms
  • Modern Kitchen With Pantry & Side Access
  • Spacious Sitting Room With Fireplace
  • Bright Conservatory With Access To Garden
  • Modern Shower Room
  • Generous Sunny Rear Garden
  • Garage & Driveway
  • Offered With No Onward Chain
  • EPC Rating D / Council Tax Band C

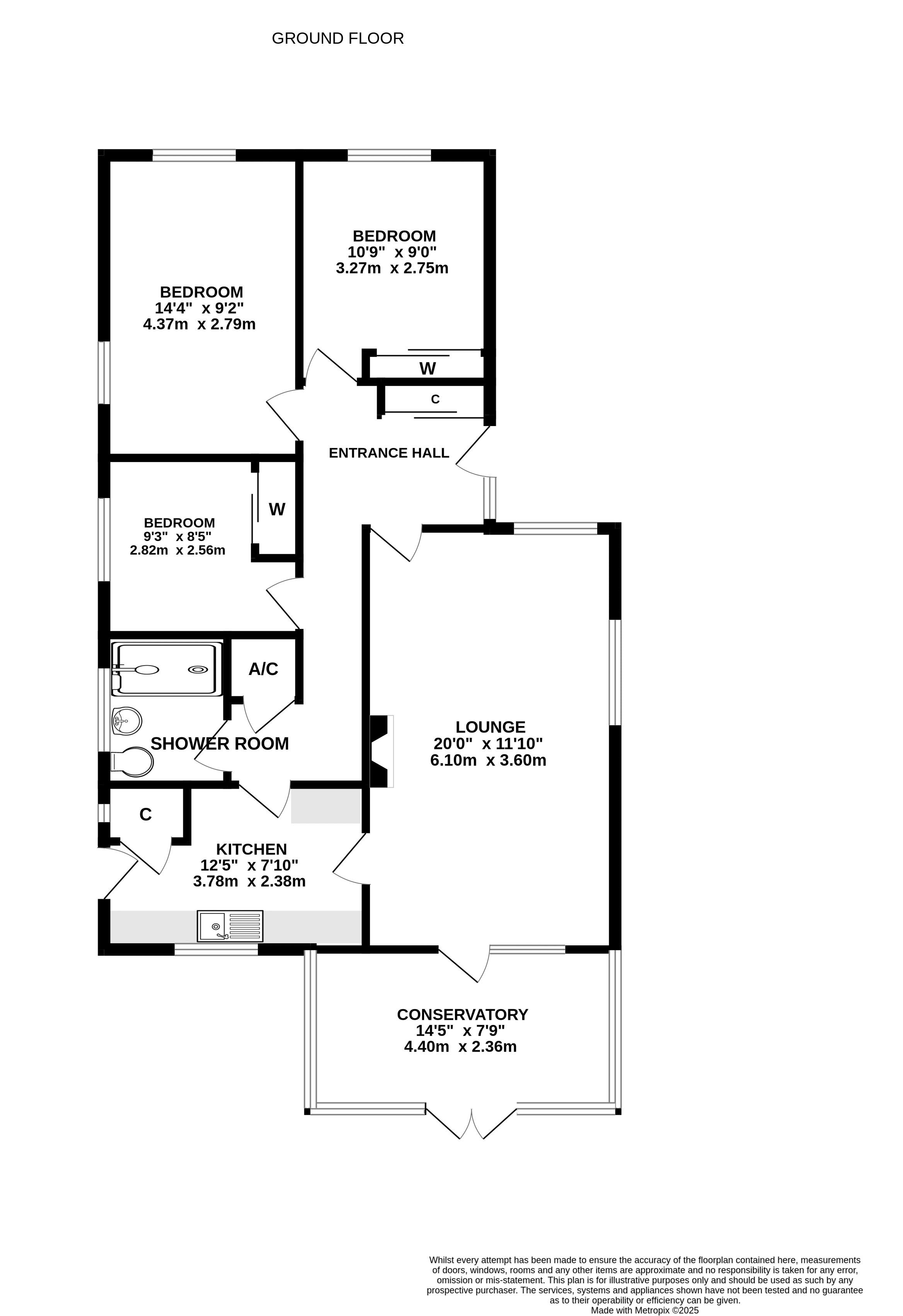
**NO ONWARD CHAIN**. Iconic are delighted to present this well-presented three-bedroom detached bungalow in the sought-after area of Taverham, offered with no onward chain. Ideally situated on a popular road close to local amenities, this well maintained home offers comfortable and spacious living accommodation with a delightful private garden to the rear. The welcoming entrance hallway provides access to all principle rooms and includes a useful storage cupboard and airing cupboard. The generous sitting room has a feature fireplace and leads seamlessly into a bright conservatory with laminate flooring and French doors opening onto the rear garden. The kitchen, positioned at the rear of the property, is fitted with a range of units offering ample storage and workspace, with room for appliances, a convenient pantry, and a side access door. All three bedrooms are well-proportioned and benefit from built-in wardrobes, while the modern shower room is finished with a contemporary three-piece white suite. Outside, the property enjoys a neatly lawned front garden with a driveway offering ample off-road parking and access to a single garage. The private south-facing rear garden is fully enclosed by timber fencing and mature shrub borders, mainly laid to lawn with a patio area ideal for outdoor seating and a shingled side return. This attractive bungalow combines practicality, comfort, and a peaceful setting, making it an excellent opportunity for those seeking a well-cared-for home in a desirable location. Please note, probate has been applied for.



Important Information

  • This is a Freehold property.

Property Ref: EAXML11851_12766545

Share:

Similar Properties

Lloyd Road, Taverham, Norwich

2 Bedroom Bungalow | Asking Price £300,000

**Beautifully Presented Bungalow in Sought-After Taverham Location** Iconic Estate Agents are delighted to present this...

Lloyd Road, Taverham, Norwich

2 Bedroom Detached House | Asking Price £300,000

***SPACIOUS DETACHED CHALET BACKING ONTO WOODLAND***Iconic Estate Agents are pleased to bring to the market this decepti...

Holt Road, Horsford, Norwich

3 Bedroom Semi-Detached House | Asking Price £300,000

EXTENDED THREE-BEDROOM SEMI DETACHED HOME IN HORSFORD.  Situated in the highly sought-after village of Horsford, this ex...

Gowing Road, Hellesdon, Norwich.

3 Bedroom Bungalow | Asking Price £310,000

***EXTENDED MODERN BUNGALOW*** Iconic are pleased to market this attractive three bedroom semi-detached bungalow in the...

Gowing Road, Hellesdon, Norwich

3 Bedroom Detached Bungalow | Offers in excess of £315,000

An attractive three-bedroom detached bungalow situated in the popular village of Hellesdon. Offered with no onward chain...

Warren Avenue, Hellesdon, Norwich

3 Bedroom Detached House | Guide Price £315,000

***STYLISH MODERN CHALET*** GUIDE PRICE £315,000 - £325,000**. Iconic estate agents are pleased to bring to the market t...

Iconic (Norwich)

Taverham, Norwich, Norfolk, NR8 6LE

01603 261104

How much is your home worth?

Use our short form to request a valuation of your property.

Request a Valuation

Mortgage Calculator

Amount Borrowed: £
Total Amount Repayable: £
Total Monthly Payment: £
©2026 The Guild of Property Professionals. All rights reserved. Terms and Conditions | Privacy Policy | Cookie Policy | Complaints Policy | Members Login
The Guild of Property Professionals Trading Address: 121 Park Lane, London W1K 7AG. GPEA Limited. Registered in England & Wales.  Company No: 02819824.  Registered Office Address: 2 St. Stephen's Court, St. Stephen's Road, Bournemouth, Dorset, England, BH2 6LA.  VAT Registration No: 576 8795 61
Book a Property Valuation Update Cookies Preferences