Norwich

Guide Price
£265,000

3 Bedroom Apartment for sale in Norwich

3 2
  • Close to city centre
  • Convenient for rail station
  • Shops and leisure amenities nearby
  • Large living area + separate kitchen
  • 3 generous bedrooms
  • Gas central heating
  • Freshly decorated
  • Sealed unit double glazing
  • Secure undercroft parking
  • No onward chain

Location This attractive duplex apartment enjoys a prime position within a modern development on the north bank of the River Wensum, just a short distance from Norwich city centre, the railway station, and a wide range of leisure and retail amenities.

The area remains highly sought after thanks to its excellent connectivity. Norwich Railway Station offers frequent services to local destinations, the Midlands, and London Liverpool Street in under two hours, while the nearby Norwich Southern Bypass provides superb links to routes throughout Norfolk and beyond.

Norwich itself is a historic yet vibrant city, celebrated for its remarkable collection of listed buildings, beautiful green open spaces, and outstanding shopping-regularly rated among the best in the country. Residents can enjoy an established café culture, an excellent choice of restaurants, and a rich cultural offering including cinemas, theatres, galleries, and live music venues. 

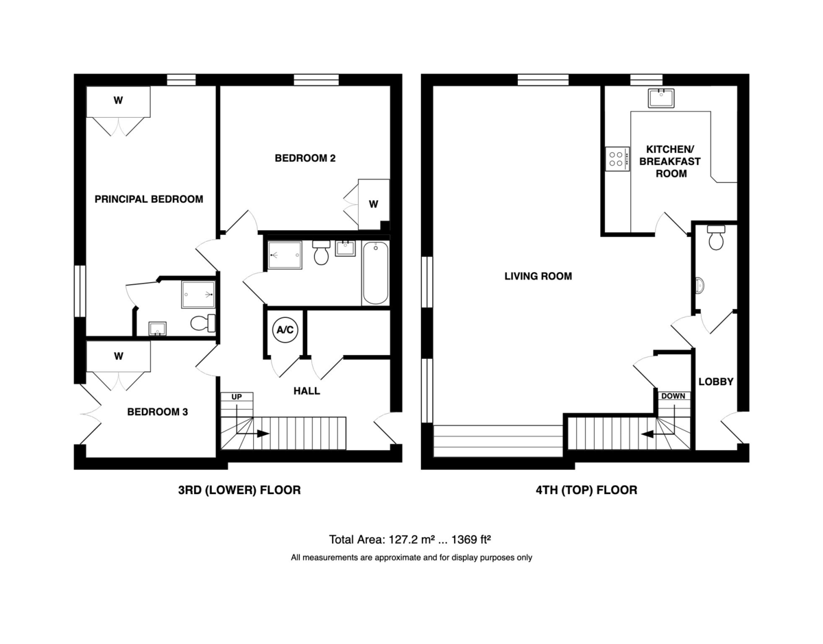
Description Offering the floor area typically associated with a family home, this spacious duplex apartment provides generous living accommodation in a highly convenient central location.

Beautifully presented and freshly decorated throughout, the property features a particularly impressive fourth-floor lounge/dining room, which enjoys an attractive oblique view of the River Wensum. This space is complemented by an inner cloakroom and a well-appointed fitted kitchen.

The lower level comprises a wide and welcoming hallway leading to a good-sized main bathroom and three well-proportioned bedrooms, including a generous principal bedroom with its own en-suite shower room.

This well-designed layout offers both comfort and flexibility, making the apartment an appealing option for a broad range of buyers. 

Communal Entrance Hall Security intercom from the entrance to the apartment, along with lift access from the communal entrance to the 3rd floor (lower apartment level) 

Hall Open plan turning stairs to the fourth floor, security intercom to the main entrance, entrance door from the communal landing, telephone point, coved ceiling, walk-in storage cupboard, built in boiler cupboard. 

L Shaped Lounge/Dining Room 29' 1" x 19' 10" (8.86m x 6.05m) narrowing to 12'9" Sealed unit double glazed windows on 2 sides enjoying oblique river views, coved ceiling, access hatch to loft space, TV point, door to stairwell with stairs leading to the 3rd floor accommodation. 

Kitchen 10' 5" x 10' 4" (3.18m x 3.15m) widening to 12'5" Stainless steel sink inset to laminate worktop with mixer tap, a range of light timber effect laminate fronted units with brushed steel handles comprising base units, drawer chests and wall mounted cupboards, built-in stainless steel finish electric oven and four ring ceramic hob with chimney style hood over, further built-in appliances comprising fridge freezer, dishwasher, washer/dryer and stainless steel finish AEG microwave, radiator, light timber effect flooring, coved ceiling and sealed unit double glazed window.
 

Entrance Hall Open plan turning stairs to the fourth floor, security intercom to the main entrance, entrance door from the communal landing, telephone point, coved ceiling, walk-in storage cupboard, built in boiler cupboard. 

Principal Bedroom 14' 6" x 10' 1" (4.42m x 3.07m) Radiator, sealed unit double glazed window, built in double wardrobe, coved ceiling, oblique river views, TV point, telephone point, door to:- 

En-Suite Shower Room White three piece suite comprising tiled corner shower cubicle with glazed screen and mixer shower, low level WC and pedestal wash basin, shaver point, coved ceiling, extractor fan, vinyl flooring. 

Bedroom 2 12' 10" x 11' 3" (3.91m x 3.43m) including built-in double wardrobe Radiator, coved ceiling, sealed unit double glazed window, TV point, telephone point, carpet. 

Bedroom 3 9' 11" x 9' 2" (3.02m x 2.79m) Radiator, coved ceiling, TV point, sealed unit double glazed doors with glazed balustrade, fitted carpet. 

Bathroom 9' 3" x 5' 6" (2.82m x 1.68m) Four piece suite comprising twin grip panelled bath with mixer tap, shower attachment and concertina glazed screen, pedestal wash basin with mixer tap and pop-up waste, low level WC, tiled corner shower cubicle with glazed screen, radiator, shaver point, coved ceiling, extractor fan, vinyl flooring.

 

Outside Secure undercroft parking space for one car. 

Tenure Leasehold
Term : 18 July 2002 until 31 December 2127 (102 years remaining)
Ground Rent £250pa
Maintenance/Service Charge £3115pa
Figures correct as at January 2026 

Local Authority/Council Tax Norwich City Council
Council Tax Band E 

EPC Rating The Energy Rating for this property is B. A full Energy Performance Certificate available on request. 

Services Mains Gas Water Electricity and Drainage are available

Water: Query payment 

Leasehold Properties Long residential leases often contain clauses which regulate the activities within individual properties for the benefit of all owners. Such regulated activities often (but not always) include keeping pets, subletting and running a business from home. If you have any specific questions about the lease of this property please ask a member of staff.  

Important Agent Note Intending purchasers will be asked to provide original Identity Documentation and Proof of Address before solicitors are instructed. 

We Are Here To Help If your interest in this property is dependent on anything about the property or its surroundings which are not referred to in these sales particulars, please contact us before viewing and we will do our best to answer any questions you may have.

The price quoted for the property does not include Stamp Duty or Title Registration fees, which purchasers will normally pay as part of the conveyancing process. Please ask us if you would like assistance calculating these charges. 

Property Ref: 101301039385

Share:

Similar Properties

Sheringham

3 Bedroom Apartment | £265,000

Located in a sought after, well maintained purpose-built development, within a level walk of the town centre, with lovel...

Kelling, Holt

3 Bedroom End of Terrace House | Guide Price £250,000

A neat and tidy, end terraced house requiring some updating and including a garage en-block, a mature wildlife friendly...

Holt

3 Bedroom Link Detached House | Guide Price £250,000

A link detached house with garage, requiring some refurbishment, nicely situated within walking distance of the town cen...

Cromer Road, Sheringham

3 Bedroom Semi-Detached House | Guide Price £269,500

A well appointed 3 bedroom semi-detached cottage with garage and parking in a convenient location within easy reach of l...

Sheringham

3 Bedroom Semi-Detached House | Guide Price £270,000

Situated in a cul-de-sac close to Beeston Common, this semi-detached house, requiring some updating, offers good sized a...

Sheringham

2 Bedroom End of Terrace House | Guide Price £270,000

A charming, two bedroom Victorian cottage with the benefit of off-road parking,(which is rarely available this close to...

Watsons (Sheringham)

Sheringham, Norfolk, NR26 8RG

01263 823201

How much is your home worth?

Use our short form to request a valuation of your property.

Request a Valuation

Mortgage Calculator

Amount Borrowed: £
Total Amount Repayable: £
Total Monthly Payment: £
©2026 The Guild of Property Professionals. All rights reserved. Terms and Conditions | Privacy Policy | Cookie Policy | Complaints Policy | Members Login
The Guild of Property Professionals Trading Address: 121 Park Lane, London W1K 7AG. GPEA Limited. Registered in England & Wales.  Company No: 02819824.  Registered Office Address: 2 St. Stephen's Court, St. Stephen's Road, Bournemouth, Dorset, England, BH2 6LA.  VAT Registration No: 576 8795 61
Book a Property Valuation Update Cookies Preferences