Penn Grove, Norwich, NR3

Offers in region of
£230,000
SSTC
This property listing is now SSTC

3 Bedroom Terraced House for sale in Norwich

2 3 1
  • Spacious three-bedroom terraced house
  • Three well-proportioned bedrooms with built in wardrobes to bedroom one
  • Spacious kitchen with an open plan living room/diner
  • Versatile storage room which could be converted to meet buyers requirements
  • Ideal purchase for first time buyers, small families or investors
  • Good-sized rear garden with ample on-street parking
  • Located within walking distance to Norwich City Centre and local amenities
  • Within ease of access to the NDR and A47 for commuting
  • Must be viewed to fully appreciate
  • See our full online listing for further details including flood risk, broadband speed and other material information


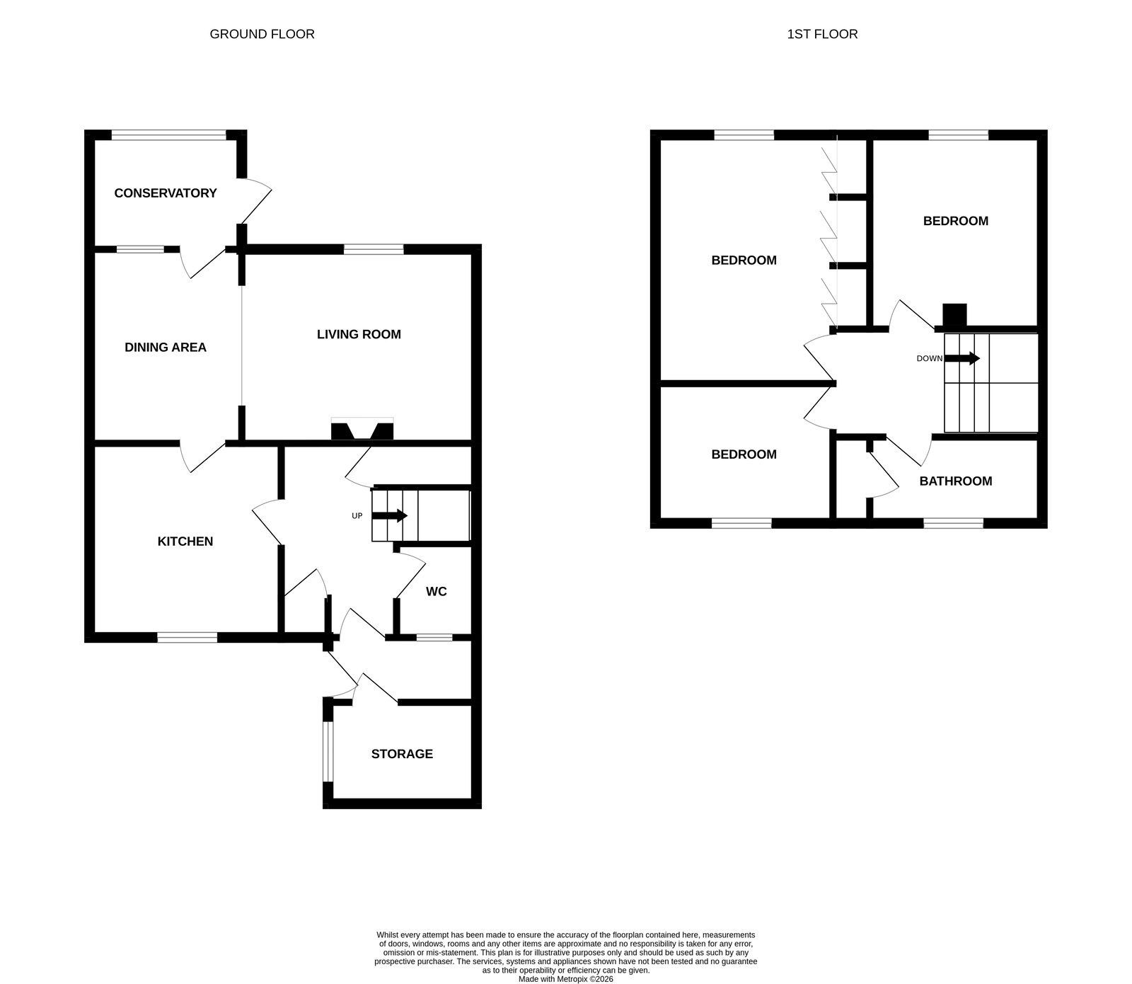
Moneyproperties bring to market this spacious three-bedroom terraced house enjoying views over open park land to the front of the property. The property is an ideal purchase for small families, first-time buyers or investors. The accommodation comprises of an entrance porch with a versatile storage room which could easily be converted to suit buyers’ requirements, generous kitchen, open plan living room/diner, conservatory and downstairs wc. To the upstairs comes three well-proportioned bedrooms with built in wardrobes to bedroom one along with a family bathroom off the landing. Outside the property benefits from a good-sized rear garden with patio area along with ample on-street parking. 

Entrance Porch - 2.49m x 1.09m (8'2" x 3'7")

Storage Room - 2.49m x 1.7m (8'2" x 5'7")

Kitchen - 3.25m x 3.2m (10'8" x 10'6")

Living Room - 3.81m x 3.25m (12'6" x 10'8")

Dining Area - 3.25m x 2.54m (10'8" x 8'4")

Conservatory - 3.28m x 1.91m (10'9" x 6'3")

WC - 1.57m x 1.35m (5'2" x 4'5")

Bedroom One - 4.17m x 2.97m (13'8" x 9'9")

Bedroom Two - 3.25m x 2.87m (10'8" x 9'5")

Bedroom Three - 2.97m x 2.39m (9'9" x 7'10")

Bathroom - 2.87m x 1.57m (9'5" x 5'2")

AGENT’S NOTES -

Planning :  Details, if any, can be found on the South Norfolk Council Planning website.

Covenants, Rights and Restrictions:  Please enquire with the selling agents for any information.

Broadband :  Ultrafast. FTTP See Ofcom checker and Openreach website for more details.

Mobile phone :  See Ofcom checker for coverage details.

Flood risk :  Very low risk surface, rivers and seas according to Gov.uk website

Services :  Mains Electricity, Gas, Water and Sewage

Local Authority :  Norfolk County Council and South Norfolk Council

Council Tax Band :  B

Tenure :  Freehold 

EPC : C

Important Information

  • This is a Freehold property.
  • This Council Tax band for this property is: B

Property Ref: 1280011

Share:

Similar Properties

Norwich Common, Wymondham, NR18

2 Bedroom Semi-Detached House | Offers in region of £230,000

Moneyproperties are delighted to be marketing this idyllic two-bedroom semi-detached cottage within ease of access to th...

Property with Exceptional Potential Ketts Oak, Hethersett, Norwich. NR9 3DJ

2 Bedroom Semi-Detached House | Guide Price £225,000

Property with Exceptional Potential and No Forward Chain. . Moneyproperties are delighted to offer this two-bedroom semi...

Margaret Reeve Close, Wymondham, NR18 0ST

2 Bedroom Semi-Detached House | Offers Over £210,000

This two bedroom coach house with garage is situated in a quiet cul de sac close to the town centre. The property compri...

Woodrows,King Street, New Buckenham, NR16

2 Bedroom Detached House | Offers Over £235,000

Moneyproperties present this immaculate two-bedroom detached house in the popular village of New Buckenham. Located on k...

Versatile Land on East Side of Broadwater Road, Holme Next To Sea, Hunstanton, Norfolk, PE36 6LQ

Land | Guide Price £250,000

Land at Broadwater Road, Holme, Hunstanton, NorfolkApprox. 1.25 Acres (Subject to Measured Survey)An excellent opportuni...

Old Oak Close, Wymondham, NR18

2 Bedroom Semi-Detached House | Offers in region of £250,000

Moneyproperties are delighted to bring to market this generous two-bedroom semi-detached house offering approximately 70...

Money Properties (Wymondham)

17/18 Market Place, Wymondham, Norfolk, NR18 0AX

01953 423 006

How much is your home worth?

Use our short form to request a valuation of your property.

Request a Valuation

Mortgage Calculator

Amount Borrowed: £
Total Amount Repayable: £
Total Monthly Payment: £
©2026 The Guild of Property Professionals. All rights reserved. Terms and Conditions | Privacy Policy | Cookie Policy | Complaints Policy | Members Login
The Guild of Property Professionals Trading Address: 121 Park Lane, London W1K 7AG. GPEA Limited. Registered in England & Wales.  Company No: 02819824.  Registered Office Address: 2 St. Stephen's Court, St. Stephen's Road, Bournemouth, Dorset, England, BH2 6LA.  VAT Registration No: 576 8795 61
Book a Property Valuation Update Cookies Preferences