Blake Road, West Bridgford, Nottingham

£500,000
SSTC
This property listing is now SSTC

3 Bedroom Detached House for sale in Nottingham

1 3 1
  • Immaculately Presented Three Bedroom Detached Family Home
  • Open Plan Living Room And Dining Room
  • Fully Refurbished Throughout To A High Standard
  • Ample Off Street Parking For Several Vehicles
  • Spacious Rear Garden With Patios And Seating Areas For The Summer Months
  • Modern Fitted Kitchen With Belfast Sink And Top Of The Range Integrated Appliances
  • In The Catchment Area For High Regarded Shcools
  • A Short Walk From Numerous Amenities And Excellent Transport Links
  • EPC Rating - D
  • Freehold - Council Tax Band - C

A beautifully detached three bedroom immaculately presented family home set on Blake Road in West Bridgford boasting a short walk from Central Avenue where you will find amenities such as local shops and cafes, bars and restaurants. Not to mention being the catchment area for well regarded schools and having excellent transport links to the surrounding villages and into the City Centre. This property would be an excellent fit for a growing family.

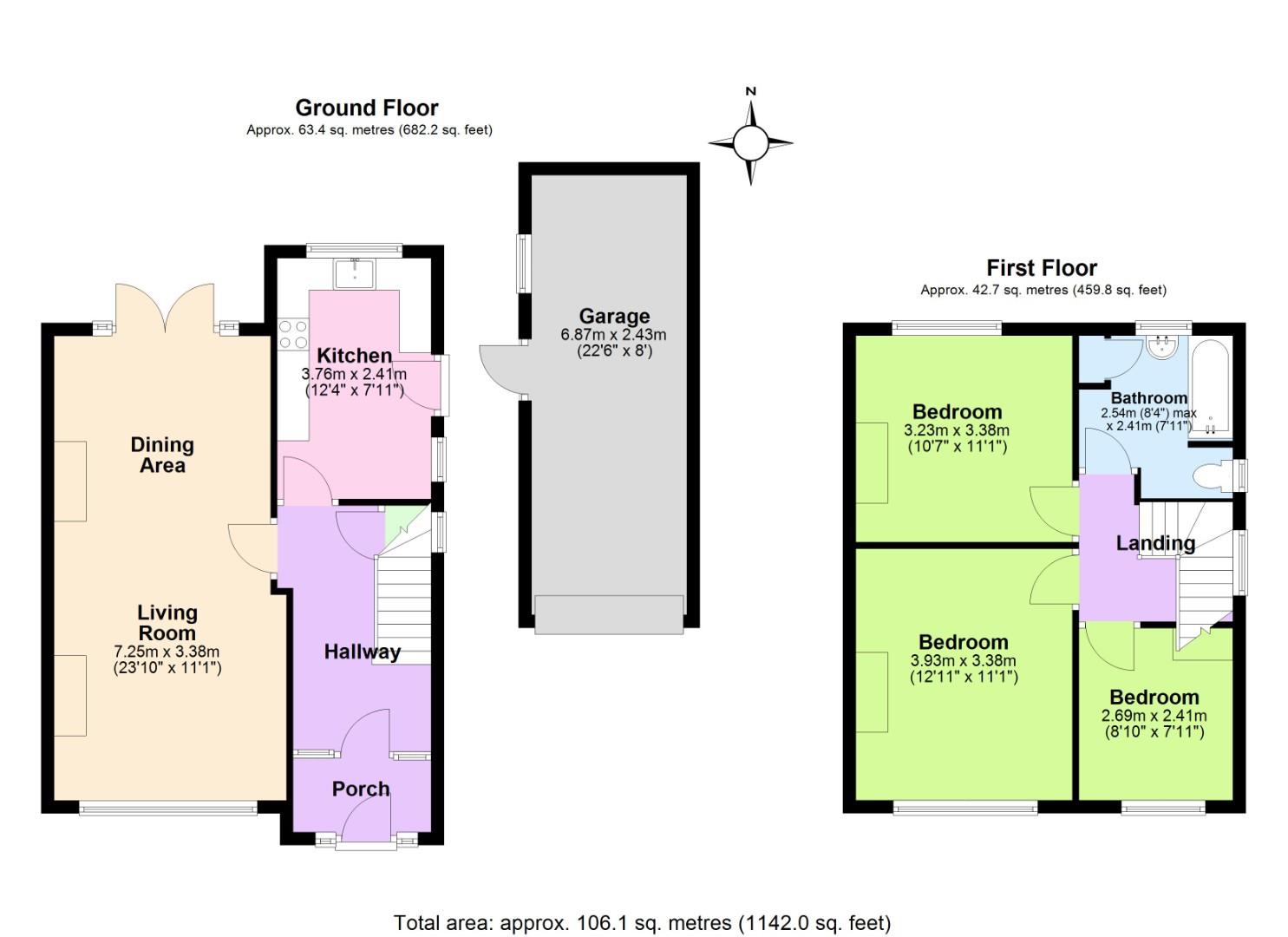
Ground floor accomodation comprises an initial extended porch and hallway upon entry thats leads into the main reception room, kitchen and stairs to the first floor landing. The living room is a generous size and showcases a front aspect window fooding the room with natural light. The living room has been knocked through into the dining room which in turn grants access to the rear garden through French doors creating an open plan feel to the ground floor. The newly fitted kitchen is ample in size and features high quality base and wall units with quartz top housing a cottage style belfast sink and integrated appliances such as an oven, hob and extractor hood along with built in fridge freezer. The kitchen provides further access to the rear and to the front of the property via a side door. The ground floor is completed with under stair storage.

To the first floor there are three well proportioned double bedrooms. The master bedroom located to the front aspect overlooking the front garden. Bedroom two viewing the rear and bedroom three located over the stairs. All three bedrooms share a modern three piece suite tiled bathroom consisting of a bath with shower overhead along with a wash basin and WC.

Facing the property there is ample off street parking via double tandem driveway leading to a large single garage along with stone bricked bordered garden area to the front. Blake road is known for its stretched gardens so to the rear there is a spacious patio area to start off from the French doors to the dining room which leads onto a lawn that stretches back to an additional patio providing more summer seating. The rear garden is aligned with flower bedding and is enclosed with fenced borders.

Property Ref: 34515606

Share:

Similar Properties

Killerton Park Drive, West Bridgford, Nottingham

4 Bedroom House | Guide Price £500,000

**GUIDE PRICE £500,000 - £520,000**Royston and Lund are delighted to bring to the market this detached family home situa...

Edwald Road, Edwalton, Nottingham

3 Bedroom Detached House | Guide Price £500,000

**GUIDE PRICE £500,000 - £525,000****NO CHAIN** A well appointed three bedroom property located in the ever desirable Ed...

Little Hayes, West Bridgford, Nottingham

4 Bedroom House | Guide Price £500,000

**GUIDE PRICE £500,000 - £550,000** A well appointed immaculately presented four bedroom detached family home located in...

Lyme Park, West Bridgford, Nottingham

4 Bedroom Detached House | £525,000

A Well Appointed, Immaculately Presented Four Bedroom Detached Family Home Located In The Ever Desirable Compton Acres i...

Millicent Road, West Bridgford, Nottingham

4 Bedroom Semi-Detached House | Guide Price £535,000

GUIDE PRICE *£535,000*Nestled a stone's throw away from Central Avenue where there are numerous amenities from pubs, bar...

Covent Gardens, Radcliffe-On-Trent, Nottingham

4 Bedroom Detached House | Offers Over £535,000

A stunning EXTENDED four bedroom detached family home situated in Upper Saxondale. The property benefits from off street...

Royston & Lund Estate Agents (West Bridgford)

3 Fountain Court, Gordon Road, West Bridgford, Nottinghamshire, NG2 5LN

0115 981 1888

How much is your home worth?

Use our short form to request a valuation of your property.

Request a Valuation

Mortgage Calculator

Amount Borrowed: £
Total Amount Repayable: £
Total Monthly Payment: £
©2026 The Guild of Property Professionals. All rights reserved. Terms and Conditions | Privacy Policy | Cookie Policy | Complaints Policy | Members Login
The Guild of Property Professionals Trading Address: 121 Park Lane, London W1K 7AG. GPEA Limited. Registered in England & Wales.  Company No: 02819824.  Registered Office Address: 2 St. Stephen's Court, St. Stephen's Road, Bournemouth, Dorset, England, BH2 6LA.  VAT Registration No: 576 8795 61
Book a Property Valuation Update Cookies Preferences