Galmpton, near Salcombe

Offers in excess of
£495,000
SSTC
This property listing is now SSTC

3 Bedroom Cottage for sale in Nr Salcombe

2 3 1
  • Charming period cottage
  • Detached
  • 3 Bedrooms
  • Third of an acre plot
  • Open Plan Living
  • Garage and ample parking
  • Beautiful countryside views
  • Less than a mile from the beach
  • Viewings
  • Services

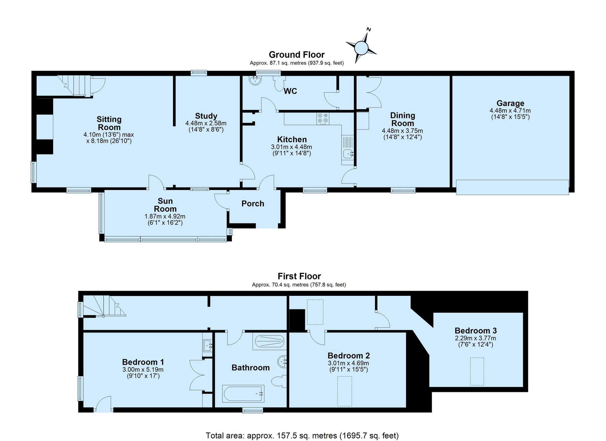
This charming Grade II listed detached cottage dates back to the 18th century and retains many original features. Extended in 2009, it is a beautifully crafted stone built property with a combination of thatched and tiled roofing. Offering vast potential to become a stunning family home, it is set in a highly sought after location.

The entrance porch leads into a characterful sitting/dining room, featuring a stone fireplace with a wood burning stove, beamed ceilings, and a staircase leading to the first floor. A window at the front overlooks the garden, while a rear window with a window seat adds to the cottage’s charm. The sunroom, with its double glazed hardwood construction, enjoys views of the garden and has direct access outside.

The kitchen/breakfast room also overlooks the garden and is fitted with a range of units, providing space for appliances. Additional ground floor rooms include a utility room, a cloakroom/WC, and a versatile dining room or double bedroom with a built in cupboard.

Upstairs, there is a pretty double bedroom with a built-in cupboard and a washbasin. Two further bedrooms are also present—one currently used as a study and featuring restricted head height. A well appointed family bathroom includes a freestanding slipper bath, a shower, a vanity unit with a washbasin, and a WC.

Outside, a five bar gate from the lane leads into the driveway, providing access to a parking area and a garage/workshop with power and water. The garden extends to approximately a third of an acre and is primarily laid to lawn, complemented by a delightful mix of mature trees and shrubs. An ideal space to live the country life.

Viewings
Very strictly by appointment only through Marchand Petit (Salcombe Office) Tel: 01548 844473

Services
Mains water, drainage and electricity. Heating by night storage heaters and electric panel heaters.

Fixtures and Fittings
All items in the written text of these particulars are included in the sale. All others are expressly excluded regardless of inclusion in any photographs. Purchasers must satisfy themselves that any equipment included in the sale of the property is in satisfactory order.

Important Information

  • This is a Freehold property.
  • This Council Tax band for this property is: F

Property Ref: JMQ733603

Share:

Similar Properties

Herbert Road, Salcombe

2 Bedroom Apartment | Guide Price £495,000

A beautifully presented 2 bedroom first-floor apartment offering wonderful views, a balcony and parking, nestled in a hi...

Sandhills Road, Salcombe

2 Bedroom Flat | Guide Price £495,000

Enjoying stunning views over North Sands beach, this well presented 2 bedroom first floor apartment, with private parkin...

Eastone Grey, Allenhayes Road

2 Bedroom Maisonette | Guide Price £495,000

A delightful, spacious 2 bedroom maisonette in a wonderful location with garage and estuary views.

Salcombe Road, Malborough

4 Bedroom Not Specified | £499,950

A beautifully presented home in a central village location, offering stunning far-reaching countryside and water views,...

The Soar, Salcombe, Devon

Lodge | Guide Price £525,000

Fusing minimalist Scandinavian design with exceptional craftsmanship. Only 2 available at this price.

Alston Rise, Malborough, Kingsbridge, Devon

4 Bedroom Detached House | Guide Price £525,000

Finished to an exceptional standard, 3 Alston Rise is a stunning four-bedroom home set within the heart of an exclusive,...

Marchand Petit (Salcombe)

24 Fore Street, Salcombe, Devon, TQ8 8ET

01548 844 473

How much is your home worth?

Use our short form to request a valuation of your property.

Request a Valuation

Mortgage Calculator

Amount Borrowed: £
Total Amount Repayable: £
Total Monthly Payment: £
©2026 The Guild of Property Professionals. All rights reserved. Terms and Conditions | Privacy Policy | Cookie Policy | Complaints Policy | Members Login
The Guild of Property Professionals Trading Address: 121 Park Lane, London W1K 7AG. GPEA Limited. Registered in England & Wales.  Company No: 02819824.  Registered Office Address: 2 St. Stephen's Court, St. Stephen's Road, Bournemouth, Dorset, England, BH2 6LA.  VAT Registration No: 576 8795 61
Book a Property Valuation Update Cookies Preferences