The Coppice, Weddington, Nuneaton, CV10 0HH

Guide Price
£250,000
SSTC
This property listing is now SSTC

3 Bedroom Detached House for sale in Nuneaton

1 3 1
  • Here's One To Do Up!
  • Link Detached House
  • In Need of Modernisation
  • Excellent Potential
  • Favoured Location
  • Just off Weddington Road
  • Higham Lane Catchment
  • No Upward Chain
  • EPC Rating
  • Council Tax Band D

Introducing this Link Detached House located in the highly sought-after area of Weddington. This property presents a fantastic opportunity for those looking to create their ideal family home, as it is in need of some general modernisation and improvement, which is reflected in the attractive asking price. It offers excellent potential for buyers to personalise and enhance the living spaces to their own taste and requirements.
This home is perfectly suited for families, offering well planned accommodation across three bedrooms. Its layout provides a comfortable and functional environment for everyday family life. The property is offered for sale with no upward chain, which could lead to a smoother and quicker buying process, reducing potential delays often associated with property transactions.
Occupying a pleasant cul-de-sac location, this residence is nestled within a highly favoured residential area just off Weddington Road. This position is particularly handy for easy daily access to Nuneaton's town centre, ensuring that all local amenities, including shops, restaurants, and leisure facilities, are within convenient reach. The area benefits from a friendly community atmosphere, making it a desirable place to live.
One of the significant advantages of this property is its location within the desired school catchment areas for both Weddington Primary School and Higham Lane Secondary School. This makes it an ideal choice for families with children, providing access to reputable educational institutions and contributing to the property's long-term appeal and value.
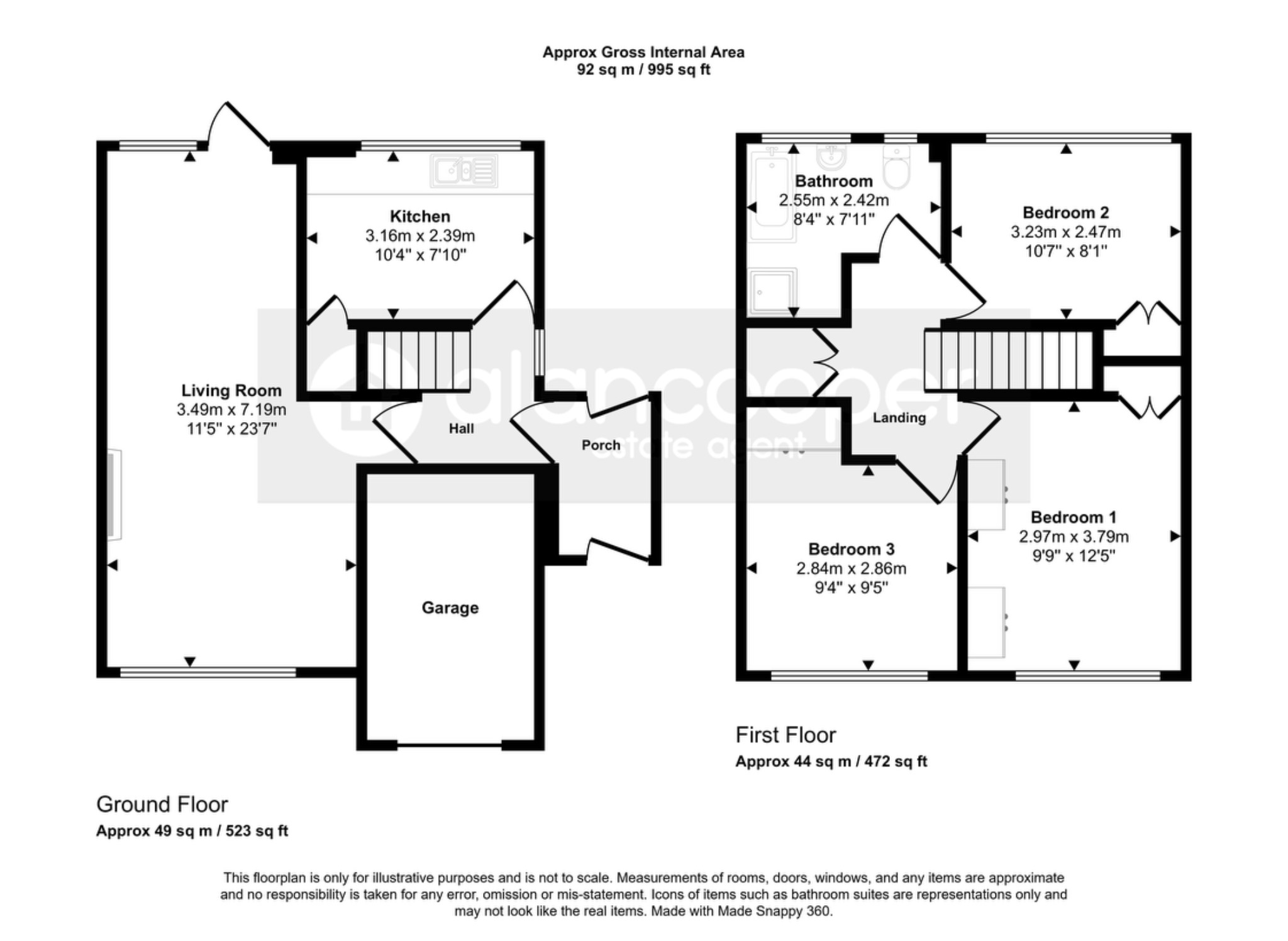
Upon entering, you are greeted by an entrance hall that leads into the lounge. The lounge is a good size, featuring a window to the front that allows natural light to flood the room, and a picture window with a glazed door leading directly to the rear garden, creating a seamless connection between indoor and outdoor living. The kitchen, while currently in need of refurbishment, offers a window overlooking the rear garden and provides a blank canvas for a prospective buyer to design a modern and functional culinary space.
Upstairs, a landing provides access to three well proportioned bedrooms, each offering comfortable living spaces. The family bathroom is also located on this floor and includes both a bath tub and a separate shower cubicle, catering to diverse family needs.
The property further benefits from a garage with direct access over a driveway, providing convenient off-road parking and additional storage. The rear garden features both paving and a lawn area, offering a pleasant space for outdoor relaxation, children's play, or entertaining guests. This manageable garden provides a private retreat for residents.
We invite you to view our online Home360 virtual tour to get a comprehensive feel for the property, and then schedule an appointment to view with Alan Cooper Estates to fully appreciate the potential this home offers.
The living room photographs used in this advertisement have been digitally enhanced using virtual staging with furnishings. This is to give potential buyers an idea of how the space could look when furnished to provide inspiration and should not be interpreted as an actual representation of the property. For complete transparency, the original photographs are also displayed. Please also view our Home 360 virtual tour.
Our experienced sales team are always on hand to answer any questions you may have and guide you through the buying process.
Local AuthorityNuneaton & Bedworth Borough Council.
Agents NoteWe have not tested any of the electrical, central heating or sanitary ware appliances. Purchasers should make their own investigations as to the workings of the relevant items. Floor plans are for identification purposes only and not to scale. All room measurements and mileages quoted in these sales details are approximate. Subjective comments in these details imply the opinion of the selling Agent at the time these details were prepared. Naturally, the opinions of purchasers may differ. These sales details are produced in good faith to offer a guide only and do not constitute any part of a contract or offer. We would advise that fixtures and fittings included within the sale are confirmed by the purchaser at the point of offer. Images used within these details are under copyright to Alan Cooper Estates and under no circumstances are to be reproduced by a third party without prior permission.

Important Information

  • This is a Freehold property.
  • This Council Tax band for this property is: D

Property Ref: 453701

Share:

Similar Properties

St. Nicolas Road, Nuneaton, CV11 6LD

3 Bedroom Semi-Detached House | Guide Price £250,000

A superb traditional style Semi Detached House offering much improved and well maintained accommodation with three bedro...

Upton Drive, Maple Park, Nuneaton, CV11 4GF

3 Bedroom Semi-Detached House | Guide Price £250,000

The search for your dream family home could end here! Presenting a most attractive modern Semi Detached House on Upton D...

Plough Hill Road, Nuneaton, CV10 9NY

3 Bedroom Semi-Detached House | Offers Over £250,000

Here is a traditional style Semi Detached House offering much improved and particularly well maintained family accommoda...

Carisbrook Road, Weddington, Nuneaton, CV10 0BT

3 Bedroom Semi-Detached House | Offers Over £251,850

A traditional style Semi Detached House within a favoured location and the catchment area for Higham Lane Secondary Scho...

Church Lane, Weddington, Nuneaton, CV10 0EY

3 Bedroom Semi-Detached Bungalow | Guide Price £254,800

Discover this Semi Detached Bungalow, positioned on a prominent corner plot in the highly desirable Weddington area of N...

Bull Ring, Nuneaton, CV10 7BE

3 Bedroom Semi-Detached Bungalow | £254,950

Here is a Semi Detached Bungalow offering vastly improved and well maintained accommodation, featuring an open plan dini...

Alan Cooper Estates (Nuneaton)

22 Newdegate Street, Nuneaton, Warwickshire, CV11 4EU

024 7634 9336

How much is your home worth?

Use our short form to request a valuation of your property.

Request a Valuation

Mortgage Calculator

Amount Borrowed: £
Total Amount Repayable: £
Total Monthly Payment: £
©2026 The Guild of Property Professionals. All rights reserved. Terms and Conditions | Privacy Policy | Cookie Policy | Complaints Policy | Members Login
The Guild of Property Professionals Trading Address: 121 Park Lane, London W1K 7AG. GPEA Limited. Registered in England & Wales.  Company No: 02819824.  Registered Office Address: 2 St. Stephen's Court, St. Stephen's Road, Bournemouth, Dorset, England, BH2 6LA.  VAT Registration No: 576 8795 61
Book a Property Valuation Update Cookies Preferences