Haunchwood Road, Stockingford, Nuneaton, CV10 8DG

Guide Price
£163,250
SSTC
This property listing is now SSTC

3 Bedroom Terraced House for sale in Nuneaton

2 3 1
  • Centre Terrace House
  • Recently Refurbished
  • Many Pleasing Features
  • Two Reception Rooms
  • Downstairs Shower Room
  • Three Bedrooms
  • No Upward Chain
  • Viewing Recommended
  • EPC Rating C
  • Council Tax Band A

Welcome to this traditional style centre terrace residence situated in a popular and established location. With two receptions rooms and three bedrooms, this property is ideal for first time buyers or those looking for a cosy and comfortable place to call home.
As you enter the property, you are greeted by the front lounge, which boasts a window overlooking the street, allowing ample natural light to flood the room. The inner hall leads you to the rear lounge, featuring a window to the rear.
The modern refitted kitchen is conveniently positioned, allowing easy access for meal preparation. A rear lobby provides additional space and leads to the downstairs shower room. The shower room offers modern fixtures and fittings, ensuring your comfort and convenience.
Make your way upstairs to discover the landing and three well proportioned bedrooms. Each room offers a peaceful retreat, perfect for relaxation and rejuvenation. Whether it's a guest room, an office, or a space for your growing family, these bedrooms cater to your every need.
Outside, the property features a forecourt and a shared tunnel access leading to the fully enclosed rear garden.
To get a real feel for this property before you even step foot inside, we invite you to view our online Home360 virtual tour. It's like being there in person, allowing you to explore every corner, envision your furniture arrangements, and truly understand the potential this property holds.
To fully appreciate all that this home has to offer, we highly recommend scheduling an appointment for an internal viewing.
Our experienced and friendly agents will be more than happy to walk you through every detail, answer any questions you may have, and help you imagine the possibilities of making this house your home.
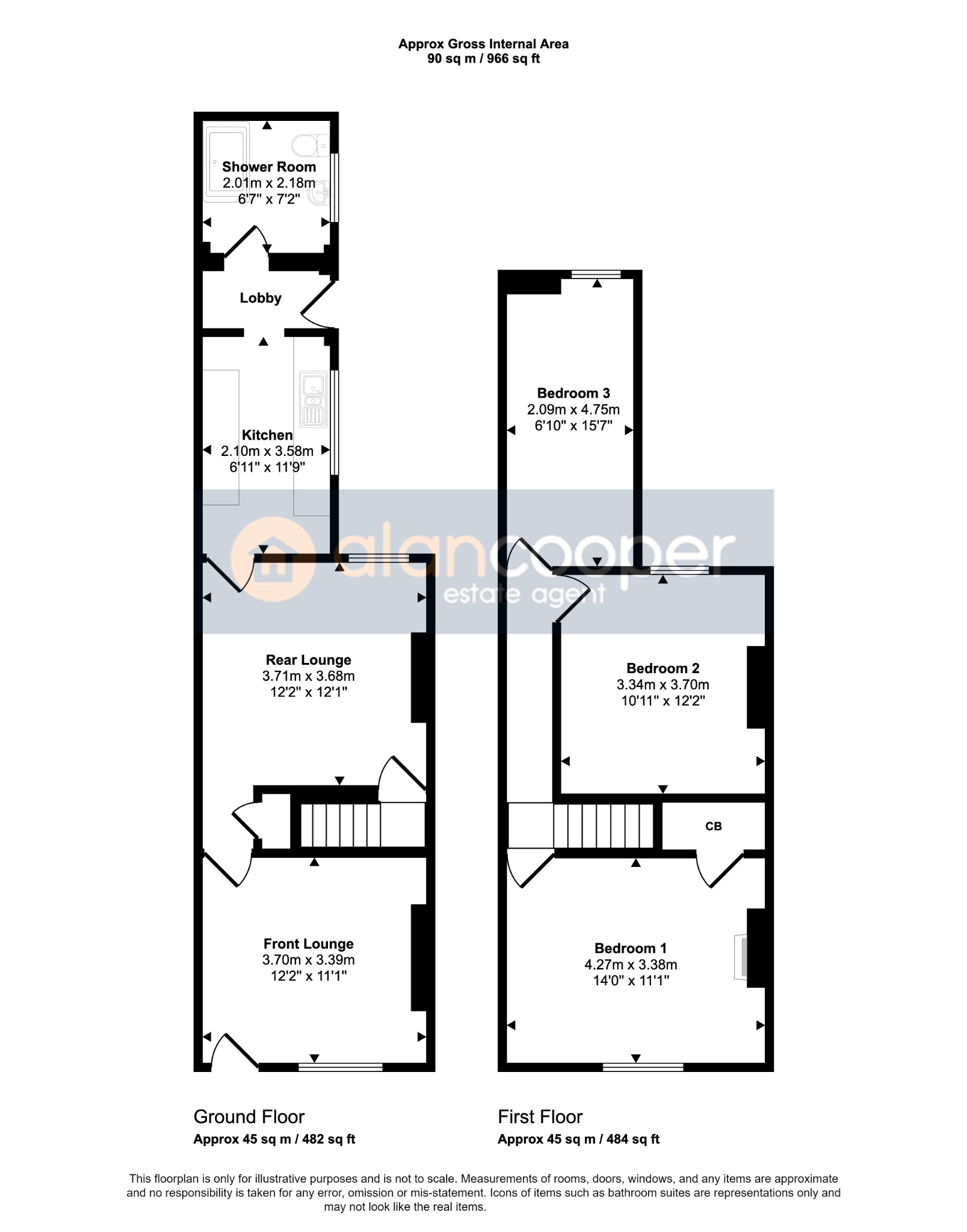
Front Lounge12' 4" x 11' 3"Having a upvc sealed unit double glazed front entrance door, central heating radiator and upvc sealed unit double glazed window.
Inner HallWith cupboard under the staircase.
Rear Lounge12' 4" x 12' 3"Having a central heating radiator and upvc sealed unit double glazed window.
Kitchen6' 11" x 12' 0"Having a one and a half bowl single drainer sink with mixer tap, fitted base unit, additional base cupboards with work surfaces over and fitted wall cupboards. Gas cooker point, plumbing for an automatic washing machine and upvc sealed unit double glazed window.
Rear LobbyHaving a central heating radiator and upvc sealed unit double glazed rear entrance door.
Shower RoomBeing fully tiled to the walls and having a white suite comprising a shower cubicle, pedestal wash hand basin and low level WC. Heated towel rail and upvc sealed unit double glazed window.
LandingWith central heating radiator.
Bedroom 114' 3" x 11' 3"Having a built-in cupboard, central heating radiator and upvc sealed unit double glazed window.
Bedroom 211' 3" x 12' 4"Having a central heating radiator and upvc sealed unit double glazed window.
Bedroom 37' 0" x 15' 8"Having a built-in cupboard housing the Baxi gas fired boiler, central heating radiator and upvc sealed unit double glazed window.
GardensForecourt and shared tunnel access leading to the rear garden, which has paving and lawn.
Local AuthorityNuneaton & Bedworth Borough Council.
Virtual StagingSome of the photographs used in this advertisement have been digitally enhanced using virtual staging with furnishings. This is to give potential buyers an idea of how the space could look when furnished to provide inspiration and should not be interpreted as an actual representation of the property. For complete transparency, the original photographs are also displayed. Please also view our Home 360 virtual tour.
Agents NoteWe have not tested any of the electrical, central heating or sanitary ware appliances. Purchasers should make their own investigations as to the workings of the relevant items. Floor plans are for identification purposes only and not to scale. All room measurements and mileages quoted in these sales details are approximate. Subjective comments in these details imply the opinion of the selling Agent at the time these details were prepared. Naturally, the opinions of purchasers may differ. These sales details are produced in good faith to offer a guide only and do not constitute any part of a contract or offer. We would advise that fixtures and fittings included within the sale are confirmed by the purchaser at the point of offer. Images used within these details are under copyright to Alan Cooper Estates and under no circumstances are to be reproduced by a third party without prior permission.

Important Information

  • This is a Freehold property.
  • This Council Tax band for this property is: A

Property Ref: 398117

Share:

Similar Properties

Rivermead, Nuneaton, Warwickshire

3 Bedroom Semi-Detached House | £163,000

Here is a modern Semi Detached House occupying a pleasant cul-de-sac location just off Merevale Avenue, which is conveni...

St Thomas's Close, Churchdale Park, Nuneaton, Warwickshire

3 Bedroom Semi-Detached House | £162,500

Here is a most attractive modern Semi Detached House occupying a pleasant cul-de-sac location within a highly regarded r...

Hollystitches Road, Nuneaton, CV10 9QB

2 Bedroom End of Terrace House | Guide Price £160,000

A traditional style end of terrace residence offering comfortable accommodation considered ideal for the first time buye...

Springhill, Hartshill, Nuneaton, Warwickshire

3 Bedroom Semi-Detached House | £165,000

Here is an opportunity to acquire a well maintained Semi Detached House pleasantly situated in a popular and established...

Quantock Drive, Church Farm, Nuneaton, Warwickshire

3 Bedroom Semi-Detached House | £165,000

Ideal young family home! Here is a most attractive modern Semi Detached House offering well planned family accommodati...

Central Avenue, Abbey Green, Nuneaton, CV11 5BD

2 Bedroom Terraced House | Guide Price £165,000

Here is a Centre Terraced House, ideally situated within the highly sought-after Abbey Green area of Nuneaton. This prop...

Alan Cooper Estates (Nuneaton)

22 Newdegate Street, Nuneaton, Warwickshire, CV11 4EU

024 7634 9336

How much is your home worth?

Use our short form to request a valuation of your property.

Request a Valuation

Mortgage Calculator

Amount Borrowed: £
Total Amount Repayable: £
Total Monthly Payment: £
©2026 The Guild of Property Professionals. All rights reserved. Terms and Conditions | Privacy Policy | Cookie Policy | Complaints Policy | Members Login
The Guild of Property Professionals Trading Address: 121 Park Lane, London W1K 7AG. GPEA Limited. Registered in England & Wales.  Company No: 02819824.  Registered Office Address: 2 St. Stephen's Court, St. Stephen's Road, Bournemouth, Dorset, England, BH2 6LA.  VAT Registration No: 576 8795 61
Book a Property Valuation Update Cookies Preferences