Walter Mead Close, Ongar

Guide Price
£275,000

2 Bedroom Apartment for sale in Ongar

1 2 2
  • 2 DOUBLE BEDROOMS
  • EN-SUITE SHOWER ROOM TO MASTER BEDROOM
  • IDEAL INVESTOR OR FIRST TIME BUYER PROPERTY
  • WITHIN WALKING DISTANCE OF LOCAL SHOPS & BUS ROUTES
  • NO ONWARD CHAIN
  • GROUND FLOOR APARTMENT
  • ALLOCATED COVERED PARKING
  • SEPARATE BATHROOM

An excellent purchase for an investor or first-time buyer and being sold with no onward chain is this two, double bedroom ground floor apartment, which benefits from allocated, covered parking. Ideally located, you will find that the property is within walking distance of Ongar Town centre with a range of local shops and bus routes giving access to Brenwood and Epping and has excellent road links with easy access to both the M11 and M25 via the A414.

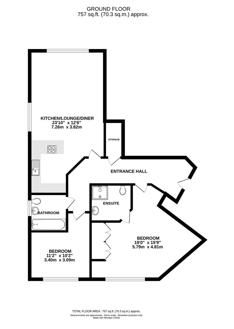
A secure video entry system gives access into a communal hallway, where you then have access to your own front door. Entering, you find yourself in a spacious hallway with a large storage cupboard and wood effect laminate flooring which extends into the kitchen/lounge/diner. The kitchen/lounge/diner is a good-sized room with double aspect windows and a tidy kitchen area tucked away to one corner. Light coloured wall and base units provide ample storage options, with integrated appliances to include a built-in oven, gas hob with extractor above, a fridge/freezer, and there is space for a washing machine.

The apartment has two double bedrooms. The master bedroom is of a good-size and has fitted wardrobes and access to its own en-suite shower room. There is a further main bathroom which consists of a white panelled bath with shower over, pedestal wash hand basin and close coupled w.c.

Allocated parking is available under a covered carport and there is additional parking for visitors. There is also a secure, coded entry bin store. The Vendor has advised that there is 103 years left on the lease, ground rent is ?200 per annum and that there is a service charge of ?2224 per annum.

Communal Entrance Hall - Access to your own front door. Video Entry system.

Entrance - Spacious entrance hall with doors to all rooms. Laminate flooring. Spacious storage cupboard.

Kitchen / Lounge / Diner - 7.26m x 3.81m (23'10 x 12'6) - Double aspect windows. Laminate flooring. Kitchen area is fitted with a range of wall and base units with contrasting work surface over. A peninsular breakfast bar has an inset gas hob with extractor above. Integrated oven and fridge / freezer. Space for washing machine.

Master Bedroom - 5.79m x 4.80m max measurements (19' x 15'9 max mea - Window to front aspect. Fitted wardrobes. Door to :

En-Suite Shower Room - Shower cubicle, pedestal wash hand basin and w.c.

Bedroom - 3.71m x 3.10m (12'2 x 10'2) - Window to front aspect.

Bathroom - White suite, comprising : panelled bath with shower over, pedestal wash hand basin and close coupled w.c.

Parking - Allocated Covered Parking - One allocated parking space under a covered carport. Additional visitor parking

Agents Note - Lease - Lease Term Remaining 103 years
Ground rent ?200 PA (paid every 6 months)
Service charge ?2224 PA

Agents Note - Fee Disclosure - As part of the service we offer we may recommend ancillary services to you which we believe may help you with your property transaction. We wish to make you aware, that should you decide to use these services we will receive a referral fee. For full and detailed information please visit 'terms and conditions' on our website www.keithashton.co.uk

Property Ref: 34435783

Share:

Similar Properties

Cygnet Court, Swan Lane, Kelvedon Hatch

2 Bedroom Apartment | Guide Price £265,000

Located in the popular village of Kelvedon Hatch and with easy access to all local amenities, including bus routes into...

Halbutt Gardens, Dagenham

1 Bedroom Maisonette | Guide Price £220,000

Within walking distance of 'Valance Park' and just a short drive of around a mile to Dagenham Heathway where you will fi...

Elm Court Park, Chelmsford Road, Blackmore

2 Bedroom Mobile Home | Offers in region of £170,000

In a semi-rural location, situated on this well-kept and quiet residential park home site, is this two-bedroom mobile ho...

Byrd Mead, Stondon Massey, Brentwood

1 Bedroom Bungalow | Guide Price £300,000

Located in a pleasant cul-de-sac is this one, DOUBLE bedroom bungalow which offers excellent potential for improvement....

The Thorns, Kelvedon Hatch, Brentwood

2 Bedroom Terraced House | Guide Price £315,000

5 The Thorns is a mid-terrace, period cottage which dates to the early 1900's and is situated in the popular semi-rural...

Tipps Cross Lane, Hook End, Brentwood

2 Bedroom Apartment | Guide Price £325,000

Situated in a sought-after village location, a little over 5 miles from Brentwood Town Centre with its high street shopp...

Keith Ashton Estates - Village Office (Kelvedon Hatch)

38 Blackmore Road, Kelvedon Hatch, Essex, CM15 0AT

01277 375757

How much is your home worth?

Use our short form to request a valuation of your property.

Request a Valuation

Mortgage Calculator

Amount Borrowed: £
Total Amount Repayable: £
Total Monthly Payment: £
©2026 The Guild of Property Professionals. All rights reserved. Terms and Conditions | Privacy Policy | Cookie Policy | Complaints Policy | Members Login
The Guild of Property Professionals Trading Address: 121 Park Lane, London W1K 7AG. GPEA Limited. Registered in England & Wales.  Company No: 02819824.  Registered Office Address: 2 St. Stephen's Court, St. Stephen's Road, Bournemouth, Dorset, England, BH2 6LA.  VAT Registration No: 576 8795 61
Book a Property Valuation Update Cookies Preferences