High Street, Ongar

Guide Price
£415,000

2 Bedroom House for sale in Ongar

2 2 1
  • TWO DOUBLE BEDROOMS
  • GDII LISTED HOUSE
  • JUST A SHORT WALK TO ONGAR HIGH STREET
  • OFF STREET PARKING
  • PRETTY COURTYARD GARDEN
  • TWO RECEPTION ROOMS
  • SPACIOUS BASEMENT
  • EXTENDED KITCHEN 20'4 IN LENGTH

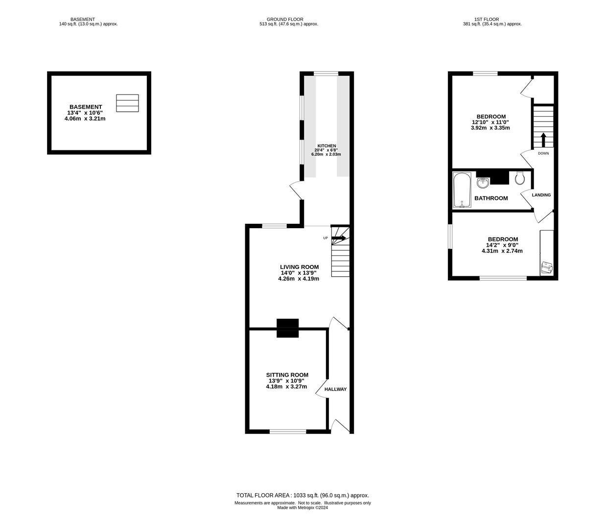
With a pretty courtyard garden and off-street parking to the rear, we are delighted to bring to market this extended, GDII listed two, double bedroom house, perfectly situated within a few minutes' walk to Ongar High Street. The property has a useful basement, two spacious reception rooms, an extended kitchen to the rear of the property and gas central heating throughout, and has some original features including original fireplaces, sash windows and wooden flooring.

Steps up to the front door give access into the hallway which leads through to the living room and there is a further door from the hallway opening into a second reception room which has a window overlooking the front of the property and features a redbrick fireplace. The living room which is of good size has ample built-in storage and shelving and there are stairs rising to the first-floor level. The property has previously been extended to the rear to provide a large and bright kitchen of some 20'4 in length. The kitchen is fitted in a good range of cream wall and base units providing a good amount of storage and integrated appliances include double oven and gas hob with extractor above. There is a door from the kitchen giving access to the courtyard garden to the side.

Rising to the first floor there are two double bedrooms both with fitted furniture. There is also a bathroom with tiled underfloor heating, panelled bath with shower over, close coupled w.c. and a wash hand basin set into a modern vanity unit.

As previously mentioned, there is a pretty courtyard garden with stock brick paving providing a lovely spot for patio furniture and a space to sit and relax. There is access to off street parking, and viewers should note that there is a small charge of ?20 per month which is payment towards parking and any communal works that may be needed.

Entrance Hallway - Door into sitting room and living room.

Sitting Room - 4.19m x 3.28m (13'9 x 10'9) - Sash window to front aspect. Feature redbrick fireplace.

Living Room - 4.27m x 4.19m (14' x 13'9) - Feature fireplace. Stairs to first floor. Window to rear aspect. Open to :

Kitchen - 6.20m x 2.03m (20'4 x 6'8 ) - Windows to rear and side aspects. Door to courtyard garden.

First Floor Landing - Doors to all rooms.

Bedroom - 4.32m x 2.74m (14'2 x 9') - Window to front and side aspects. Built-in furniture.

Bedroom - 3.91m x 3.35m (12'10 x 11') - Fitted wardrobes and built-in cupboard.

Bathroom - Tiled flooring. Panelled bath with shower over, wash hand basin set into a modern vanity unit and close coupled w.c.

Parking - Parking to the rear.

Courtyard Garden -

Agents Note - The property has gas central heating throughout.

There is a small charge of ?20 per month which goes towards parking and the cost of any communal work needed.

Agents Note - Fee Disclosure - As part of the service we offer we may recommend ancillary services to you which we believe may help you with your property transaction. We wish to make you aware, that should you decide to use these services we will receive a referral fee. For full and detailed information please visit 'terms and conditions' on our website www.keithashton.co.uk

Property Ref: 33638661

Share:

Similar Properties

Fox Hatch, Kelvedon Hatch

3 Bedroom End of Terrace House | Guide Price £400,000

Located in the semi-rural village of Kelvedon Hatch is this three-bedroom, end terrace house being offered for sale with...

Spring Pond Meadow, Hook End, Brentwood

1 Bedroom Semi-Detached Bungalow | Guide Price £400,000

Well-maintained throughout and being located in a quiet cul-de-sac in the village of Hook End is this one-bedroom, semi-...

Plot 7 - Barnmead Close, Start Hill, Bishops Stortford

2 Bedroom Terraced House | Guide Price £400,000

** GUIDE PRICE ?400,000 - ?425,000 ** ** PLOT 7 - 2 BEDROOM MID TERRACE HOUSE - 883.94 SQ.FT **We are delighted to bring...

Snakes Hill, Navestockside, Brentwood

3 Bedroom Semi-Detached House | Guide Price £425,000

Set well-back from the road, and having ample parking and a large rear garden is this three-bedroom, semi-detached house...

Station Lane, Ingatestone

3 Bedroom Apartment | Guide Price £450,000

Situated adjacent to Ingatestone station with fast trains to London Liverpool Street is this three bedroom, first floor...

Park Meadow, Doddinghurst, Brentwood

3 Bedroom End of Terrace House | Guide Price £450,000

Situated in a pleasant cul-de-sac and with lovely views to the rear over open farmland is this beautifully maintained, t...

Keith Ashton Estates - Village Office (Kelvedon Hatch)

38 Blackmore Road, Kelvedon Hatch, Essex, CM15 0AT

01277 375757

How much is your home worth?

Use our short form to request a valuation of your property.

Request a Valuation

Mortgage Calculator

Amount Borrowed: £
Total Amount Repayable: £
Total Monthly Payment: £
©2026 The Guild of Property Professionals. All rights reserved. Terms and Conditions | Privacy Policy | Cookie Policy | Complaints Policy | Members Login
The Guild of Property Professionals Trading Address: 121 Park Lane, London W1K 7AG. GPEA Limited. Registered in England & Wales.  Company No: 02819824.  Registered Office Address: 2 St. Stephen's Court, St. Stephen's Road, Bournemouth, Dorset, England, BH2 6LA.  VAT Registration No: 576 8795 61
Book a Property Valuation Update Cookies Preferences