West Street, Chipping Norton, Oxfordshire, OX7

Guide Price
£295,000
SSTC
This property listing is now SSTC

6 Bedroom Terraced House for sale in Oxfordshire

6 1

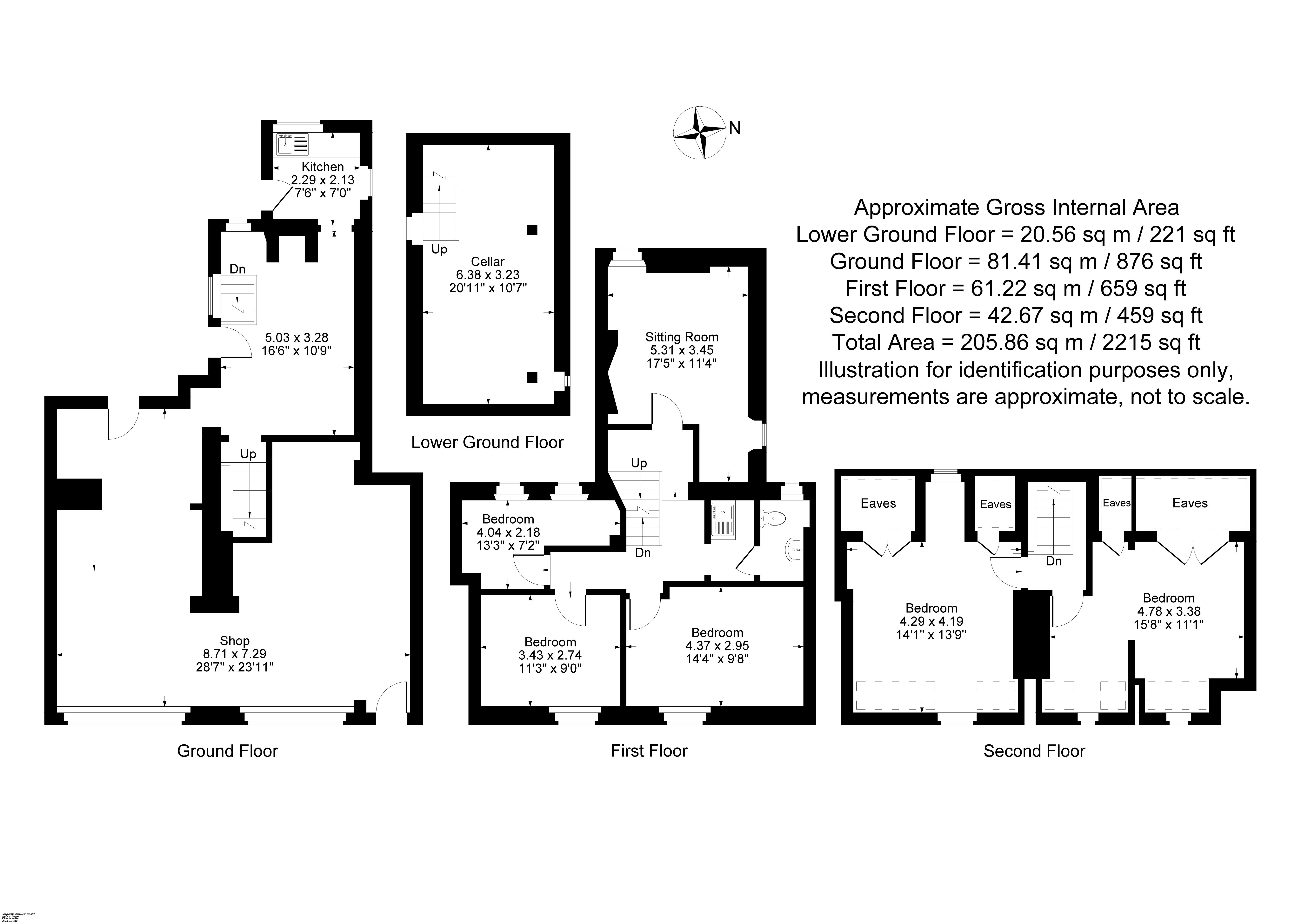
A Period Cottage in Need of Renovation Currently Consisting of Commercial Shop Front, Six Rooms over First and Second Floors, Bathroom and Enclosed Garden.

A Period Cottage in Need of Major Renovation Currently Consisting of Commercial Shop Front, Six Rooms over First and Second Floors, Bathroom and Enclosed Garden.

• Major Renovation Required
• Desirable Town Location
• Enclosed Rear Garden
• Character Features
• Opportunity to Create a Lovely Townhouse
• Six Rooms over First and Second Floors

Chipping Norton is widely admired as the gateway to the Cotswolds. The charismatic and historical market town centre has a marvellous range of individual shops, boutiques, cafes, public houses, hotels as well as retail, commercial and leisure facilities. Chipping Norton also benefits from its grand and thriving Town Hall, the charming and family-friendly Theatre and a new £5m state-of-the art Health Centre including two surgeries, pharmacy and maternity unit built in 2015, all within close proximity to the town centre.

Local amenities include Sainsbury's, a large Midcounties Cooperative, an Aldi supermarket and a Marks and Spencer food hall. There are nurseries, primary schools, a secondary school and numerous churches nearby. Fabulous Cotswold countryside is within easy reach, offering magnificent scenery for walking and riding.

Kingham c. 5 miles
Charlbury c. 6 miles
Soho Farmhouse c. 7.5 miles
Banbury c. 13 miles
Oxford c. 20 miles
Cheltenham c. 28 miles
Swindon c. 31 miles
Birmingham c. 56 miles
London c. 74 miles
Charlbury or Kingham to London, c. 1 hour
Oxford to London Paddington c. 1 hour

Buyers Purchase Fee:
Please note that buyers are required to pay a Purchase Fee of £300 (inc. of VAT) to Mark David Estate Agents Ltd on offer acceptance, to process a new transaction.

Important Information

  • This is a Freehold property.

Property Ref: 625517_CHN240040

Share:

Similar Properties

Goldings Road, Hook Norton, Banbury, Oxfordshire, OX15

2 Bedroom Semi-Detached House | Guide Price £295,000

A well-presented two bedroom semi detached house, situated on a popular new development. The property boasts a south fac...

Cotshill Gardens, Chipping Norton, Oxfordshire, OX7

2 Bedroom Semi-Detached House | Guide Price £295,000

A modern and well presented two bedroom semi detached house in a quiet cul-de-sac a short walk to the town centre with e...

The Sidings, Hook Norton, Banbury, Oxfordshire, OX15

2 Bedroom Terraced House | Guide Price £285,000

A Well Presented and Modern Two Bedroom Mid Terrace House Situated on the Edge of This Thriving Village. Off Road Parkin...

Webb Crescent, Chipping Norton, Oxfordshire, OX7

3 Bedroom Semi-Detached House | Guide Price £320,000

An extended 3 bedroom property in need of modernisation with garage and parking and a westerly facing garden.Situated at...

Shepard Way, Chipping Norton, Oxfordshire, OX7

3 Bedroom Semi-Detached House | £325,000

A three bedroom semi-detached property in a desired market town location, benefiting from an extension, generously sized...

Johnston's Way, Chipping Norton, Oxfordshire, OX7

3 Bedroom End of Terrace House | Guide Price £325,000

A Beautifully Preserved and Recently Renovated three Bedroom Home that has Fabulous Countryside Views to the Rear.

Mark David (Chipping Norton)

Chipping Norton, Oxfordshire, OX7 5NA

01608 644 944

How much is your home worth?

Use our short form to request a valuation of your property.

Request a Valuation

Mortgage Calculator

Amount Borrowed: £
Total Amount Repayable: £
Total Monthly Payment: £
©2026 The Guild of Property Professionals. All rights reserved. Terms and Conditions | Privacy Policy | Cookie Policy | Complaints Policy | Members Login
The Guild of Property Professionals Trading Address: 121 Park Lane, London W1K 7AG. GPEA Limited. Registered in England & Wales.  Company No: 02819824.  Registered Office Address: 2 St. Stephen's Court, St. Stephen's Road, Bournemouth, Dorset, England, BH2 6LA.  VAT Registration No: 576 8795 61
Book a Property Valuation Update Cookies Preferences