Padstow, PL28

Offers Over
£750,000

4 Bedroom Apartment for sale in Padstow

1 4 4
  • ENCLOSED LAWNED GARDEN
  • GLASS FRONTED BALCONY
  • FOUR/FIVE BEDROOMS * THREE EN-SUITE FACILITIES
  • FAMILY BATHROOM
  • BALCONY * RECEPTION ROOM
  • OPEN PLAN KITCHEN/LIVING ROOM/DAY ROOM
  • STAIRS TO FIRST FLOOR
  • INTEGRAL DOUBLE GARAGE * TWO PARKING SPACES
  • FIRST FLOOR APARTMENT * ENTRANCE HALL
  • MAGNIFICENT ESTUARY VIEWS

Bayside is a delightfully spacious and versatile 4/5 bedroom maisonette enjoying truly stunning views to the Camel Estuary and Rock.  
 
Bayside is built of traditional concrete block cavity wall construction and surmounted by an interlocking concrete tiled roof and benefits from gas fired central heating and double glazing.
 
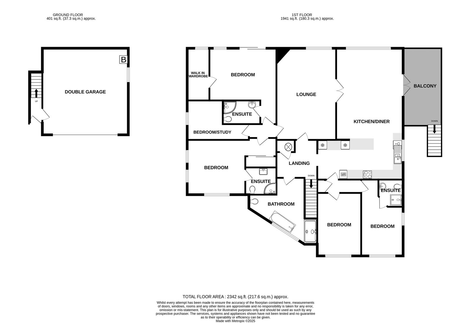
As you enter the property there is access to spacious Double Garage, stairs ascend to the Living Accommodation which boasts magnificent open plan Kitchen/Living Room/Day Room and separate Reception Room. 
 
The accommodation extends to four/five Bedrooms with three En-Suite facilities and a separate Family Bathroom. The fifth bedroom is currently being used as an office.  Located on the south elevation is a balcony with steps giving access to a patio area. 
 
Bayside enjoys truly stunning views to the Camel Estuary, Iron Bridge, Cant Hill, Brown Willy and Rough Tor.
 
The property would be ideal as a permanent or holiday home offering delightfully spacious accommodation. 
 

Padstow has a long and ancient maritime history, the harbour being nestled in to the west-side of the Camel Estuary offering protection from the prevailing south-westerly winds. The town boasts a labyrinth of crooked streets sloping down to the harbour where many fine medieval buildings can be found including the 15th century Abbey House on North Quay and the 16th century court house of Sir Walter Raleigh on the South Quay.
 
The surrounding coastline and countryside has been designated an area of outstanding natural beauty with many of North Cornwall's finest sandy beaches within a five mile radius.
 
Sailing and Watersports - The Camel Estuary is a well established centre for watersports, including sailing and water skiing, boat charters are available from Padstow and craft can be moored in Padstow or launched from the Padstow Harbour Commissioners' Slipway.
 
Restaurants - Padstow offers an excellent range of restaurants. The Michelin starred restaurant of Paul Ainsworth's No. 6 and Rick Stein's renowned Seafood Restaurant both within a 5 minute walk; with many other restaurants and public houses offering excellent fare.
 
Leisure & Golf - The famous surfing beaches of Newquay, Polzeath and Constantine Bay are only a short drive away. The Trevose Golf and Country Club is located within approximately 4 miles, the course was bestowed with the honour of hosting the Amateur Brabazon Strokeplay Championship, bearing testament to the course's excellent credentials. The course also offers excellent tennis courts and swimming pool.
 
Travel by Road - Connections are good with the A30 dual carriageway at Bodmin only 15 miles away which provides access to the national motorway network at Exeter.
 
Travel by Train - Bodmin Parkway station approximately 25 miles distant offers regular links direct to London Paddington.
 
Travel by Air - Newquay Airport is approximately 25 minutes (10 miles) and offers a number of national and international flights via London Gatwick which is approximately a one hour flight.

ACCOMMODATION WITH ALL MEASUREMENTS BEING APPROXIMATE:-

UPVC FRONT ENTRANCE DOOR INTO:

ENTRANCE LOBBY
Door to: INTEGRAL GARAGE (see later)
STAIRS ASCEND TO A CENTRAL HALLWAY
With arch into:
OPEN PLAN KITCHEN/DINING ROOM/DAY ROOM - 9.44m x 5.83m tapering to 4.76m (30'11" x 19'1")
Impressive dual aspect room enjoying stunning views to the Camel Estuary, Iron Bridge, Cant Hill, Rock and Porthilly. French Doors provide access to BALCONY (see later). Four wall light points, integrated smoke alarm, recessed ceiling lights. 
KITCHEN
Comprehensive range of base and wall units with Quartz worksurface and upstand over, integrated oven and grill, integrated microwave, integrated tall fridge and freezer, 4 ring induction hob with extractor hood over, integrated dishwasher, central island with seating and storage, the room extends to provide a dining table with ample seating for 6 and two comfortable sofas from which to enjoy the stunning views. French doors into LIVING ROOM (see later) and French doors to: 
BALCONY - 5m x 2.57m (16'4" x 8'5")
With glazed panels and balustrading, stairs descend to the GARDEN (see late)
LIVING ROOM - 6.55m x 4.04m (21'5" x 13'3")
Single aspect room enjoying stunning views to the Camel Estuary, the Iron Bridge, Cant Hill, Brown Willy and Rough Tor. Central heating radiator, electric fire, TV point, recessed ceiling lights, door provides access to:
INNER LOBBY
With doors radiating to:
BEDROOM ONE - 4.46m x 3.58m (14'7" x 11'8")
With sliding Patio doors with Juliette balcony to front elevation offering stunning views to the Estuary. Two centre ceiling lights, two recessed ceiling lights, power point, central heating radiator, door to:
DRESSING ROOM - 3.58m x 1.5m (11'8" x 4'11")
Single aspect room, range of storage, recessed ceiling lights, power point. 
EN-SUITE SHOWER ROOM - 2.31m x 1.54m (7'6" x 5'0")
Corner shower cubicle, low level WC, wash hand basin set into base unit with mirror over and shaver point, ladder rack towel rail, fully tiled walls, tiled floor, recessed ceiling light, extractor fan. 
OFFICE/BEDROOM FIVE - 2.68m x 2.42m plus 1.75m x 1.00m (8'9" x 7'11")
Single aspect room, central heating radiator, recessed ceiling lights, power point. 
BEDROOM TWO - 3.84m x 3.71m plus 2.23 x 1.09 (12'7" x 12'2")
Dual aspect room, built in wardrobes central heating radiator, power point, recessed ceiling lights, door to:
EN-SUITE SHOWER ROOM - 2.11m x 1.85m (6'11" x 6'0")
Corner shower cubicle with tiled surround, wash hand basin set into base unit with shaver point to side, low level WC, ladder rack towel rail.  
 
Returning to the LANDING - Door to:
AIRING CUPBOARD
Housing pressurised hot water cylinder with slatted shelving to side.  
FAMILY BATHROOM - 4.23m maximum x 3.68m maximum (13'10" x 12'0")
Single aspect room, bathroom suite comprising contemporary double ended bath, large walk in shower, concealed cistern low level WC, wash hand basin set into base unit, wall mounted light sensor mirror, shaver point, central heating radiator.  
 
Door from KITCHEN to INNER LOBBY doors radiating to:
BUILT IN CUPBOARD
With shelving and electricity consumer unit. 
BEDROOM THREE - 5.33m maximum x 2.91m (17'5" x 9'6")
Dual aspect room, central heating radiator, power point, centre ceiling light. 
EN-SUITE SHOWER ROOM - 1.89m x 1.72m (6'2" x 5'7")
Corner shower, low level WC, pedestal wash hand basin, half tiled walls, extractor fan, two wall lights. 
BEDROOM FOUR - 4.35m x 2.88m (14'3" x 9'5")
Single aspect room, central heating radiator, power point. 
OUTSIDE
The property is approached via : 
SHARED ENTRANCE DRIVE

COMMUNUAL FRONT GARDEN
Laid to lawn with mature flower and shrub boarders and seating area (shared with ground floor apartment).
PARKING
Two designated parking spaces.
 
Garden gate provides access to the side of the property to attractive flower boarders, stairs ascend to the: 
BALCONY

INTEGRAL GARAGE - 6.1m x 5.84m (20'0" x 19'1")
Automatic roller door, window to side elevation, gas fired central heating boiler, space and plumbing for washing machine and tumble dryer, space for fridge and freezer, electricity consumer unit, range of storage cupboards. 
 
Located to the rear of the property is an:
ENCLOSED LAWNED GARDEN
Bounded by mature hedging. 
PATIO AREA
With hot tub.
TENURE
Freehold
COUNCIL TAX BAND
D
DIRECTIONS
Proceed into Padstow on the A389, immediately after Tesco's turn right onto Sarahs Lane. After passing the right turn to Sarahs View proceed for approximately 100m and turn right into the Annethy Lowen development. Follow the road around to the rear of the apartments and the driveway provides access to Bayside and Sandbanks (ground floor apartment). The parking is located in front of the garage. 

Important Information

  • This is a Freehold property.

Property Ref: 1060700

Share:

Similar Properties

Padstow, PL28

5 Bedroom Detached House | £750,000

A rare and scalable five Bedroom Detached Home with Annex Potential set in a private, quiet, cul-de-sac. St Petrocs mead...

Padstow, PL28

1 Bedroom Hospitality | £650,000

Due to retirement, an established and successful Grade II Listed Fish & Chip business with one bedroom residential accom...

Penrose, Wadebridge, PL27 7TB

4 Bedroom Detached House | £625,000

An attractive four bedroom stone built period home set on a level plot within this quiet rural hamlet.  EPC: E

Constantine Bay, Padstow, PL28 8JQ

Plot | Guide Price £780,000

A rare opportunity to purchase a building plot with outline planning consent within this sought after part of Constantin...

Trevone, PL28

3 Bedroom Bungalow | £825,000

Set in a generous garden plot just over 0.2 of an acre this 3 bedroom detached bungalow close to Trevone's sandy bay.  E...

Harlyn Bay, PL28

3 Bedroom Bungalow | £850,000

An incredibly rare opportunity to purchase a 2.25 acre former small holding located just over half a mile of the beach a...

Cole Rayment & White (Padstow)

Padstow, Cornwall, PL28 8AB

01841 533386

How much is your home worth?

Use our short form to request a valuation of your property.

Request a Valuation

Mortgage Calculator

Amount Borrowed: £
Total Amount Repayable: £
Total Monthly Payment: £
©2026 The Guild of Property Professionals. All rights reserved. Terms and Conditions | Privacy Policy | Cookie Policy | Complaints Policy | Members Login
The Guild of Property Professionals Trading Address: 121 Park Lane, London W1K 7AG. GPEA Limited. Registered in England & Wales.  Company No: 02819824.  Registered Office Address: 2 St. Stephen's Court, St. Stephen's Road, Bournemouth, Dorset, England, BH2 6LA.  VAT Registration No: 576 8795 61
Book a Property Valuation Update Cookies Preferences