Osney Crescent, Paignton

£450,000

6 Bedroom Semi-Detached House for sale in Paignton

2 6 3

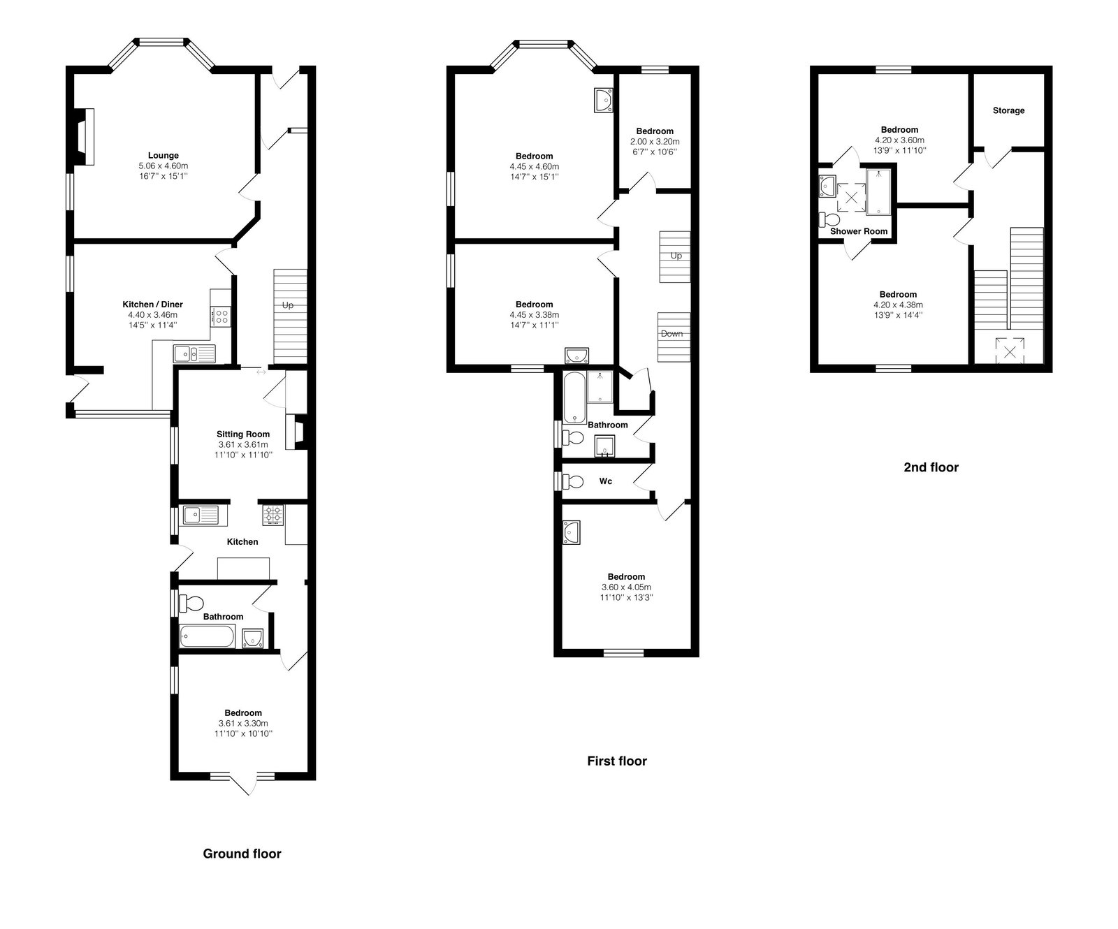
PROPERTY DESCRIPTION A five bedroom house over three story's with one bedroom ground floor annex. This most attractive character house offers large family accommodation, plus annex ideal for sperate family member living independent entry. To the rear of the property is parking and garage along with garden room with level nicely enclosed gardens. Viewing is recommended.

uPVC double glazed front door to:-

HALLWAY Central heating radiator. Understairs and interconnecting door to annex.

LOUNGE - Solid fuel fire with original wooden fireplace. Central heating radiator. uPVC double glazed window.

KITCHEN/DINER 

KITCHEN AREA Range of fitted wall and base units with integrated eye level oven and hob. Wall units above with extractor fan. 

DINING AREA Central heating radiator. uPVC double glazing leading onto utility area with uPVC double glazing. Plumbing for washing machine. uPVC double glazed door to rear.

LANDING Airing cupboard with gas boiler. Central heating radiator.

MASTER BEDROOM uPVC double glazed bay window. Pretty open fireplace. Pedestal wash hand basin and central heating radiator.

BEDROOM TWO uPVC double glazing, pedestal wash hand basin and central heating radiator.

BEDROOM THREE uPVC double glazing, pedestal wash hand basin and central heating radiator.

STUDY uPVC double glazing.

BATHROOM Four piece suite comprising panelled bath, shower cubicle with mains shower, vanity basin, low level WC ad uPVC double glazing.

CLOAKROOM Low level WC. uPVC double glazing.

LANDING 

BEDROOM FOUR uPVC double glazing. Pretty open fire and central heating radiator.

BEDROOM FIVE uPVC double glazing. Pretty open fire.

SHOWER ROOM Shower cubicle, pedestal wash hand basin, low level WC and partly tiled.

ANNEXE uPVC double glazing.

KITCHEN Range of fitted wall and base units. central heating radiator and uPVC double glazing.

LOUNGE/DINER Log burning stove, central heating radiator and uPVC double glazing.

INNER HALLWAY Door to:-

BEDROOM Central heating radiator and uPVC double glazing.

OUTSIDE Parking onto:-

LARGE GARAGE

OUTHOUSES

FRONT GARDEN Lawned garden area.

REAR GARDEN Patio area onto gazebo and hot tub area.

CEDAR WOOD GRDEN ROOM Power and lighting. uPVC double glazed sliding doors.

Verified Material Information
Council Tax band: C
Tenure: Freehold
Property type: House
Property construction: Standard construction
Energy Performance rating: E
Electricity supply: Mains electricity
Solar Panels: No
Other electricity sources: No
Water supply: Mains water supply
Sewerage: Mains
Heating: Mains gas-powered central heating is installed.
Heating features: Double glazing and Wood burner
Broadband: FTTP (Fibre to the Premises)
Parking: Garage, Driveway, On Street, and Off Street
Building safety issues: No
Restrictions - Listed Building: No
Restrictions - Conservation Area: No
Restrictions - Tree Preservation Orders: None
Public right of way: No
Long-term area flood risk: No
Historical flooding: No
Flood defences: No
Coastal erosion risk: No
Planning permission issues: No
Accessibility and adaptations: None
Coal mining area: No
Non-coal mining area: No
All information is provided without warranty. Contains HM Land Registry data © Crown copyright and database right 2021. This data is licensed under the Open Government Licence v3.0.
The information contained is intended to help you decide whether the property is suitable for you. You should verify any answers which are important to you with your property lawyer or surveyor or ask for quotes from the appropriate trade experts: builder, plumber, electrician, damp, and timber expert.

AGENTS NOTES These details are meant as a guide only. Any mention of planning permission, loft rooms, extensions etc, does not imply they have all the necessary consents, building control etc. Photographs, measurements, floorplans are also for guidance only and are not necessarily to scale or indicative of size or items included in the sale. Commentary regarding length of lease, maintenance charges etc is based on information supplied to us and may have changed. We recommend you make your own enquiries via your legal representative over any matters that concern you prior to agreeing to purchase.

Important Information

  • This is a Freehold property.
  • This Council Tax band for this property is: C

Property Ref: 1429011

Share:

Similar Properties

Luscombe Road, Paignton

5 Bedroom Detached House | Guide Price £450,000

Guide Price £450,000 - £465,000A well presented five bedroom detached family home conveniently located within easy reach...

Sandringham Drive, Preston, Paignton

3 Bedroom Bungalow | Guide Price £450,000

Guide Price £450,000 - £475,000A well proportioned three bedroom detached bungalow located in the highly desirable locat...

Greenfield Road, Preston, Paignton

4 Bedroom Detached House | Guide Price £450,000

Guide Price £450,000 - £475,000A beautifully presented four bedroom detached family home located within a quiet cul-de-s...

Merryland Close, Preston, Paignton

3 Bedroom Detached House | £475,000

Situated within a very desirable and extremely quiet cul-de-sac in Preston, this detached three-bedroom home offers spac...

Castle Park Drive, White Rock, Paignton

4 Bedroom Detached House | £475,000

A beautifully presented four bedroom detached family home located at the end of a quiet cul-de-sac on the popular develo...

Fisher Street, Paignton

7 Bedroom Detached House | £475,000

An exciting detached period, character filled property that offers bundles of space and potential. The property comprise...

Taylors (Paignton)

26 Hyde Road, Paignton, Devon, TQ4 5BY

01803 663561

How much is your home worth?

Use our short form to request a valuation of your property.

Request a Valuation

Mortgage Calculator

Amount Borrowed: £
Total Amount Repayable: £
Total Monthly Payment: £
©2026 The Guild of Property Professionals. All rights reserved. Terms and Conditions | Privacy Policy | Cookie Policy | Complaints Policy | Members Login
The Guild of Property Professionals Trading Address: 121 Park Lane, London W1K 7AG. GPEA Limited. Registered in England & Wales.  Company No: 02819824.  Registered Office Address: 2 St. Stephen's Court, St. Stephen's Road, Bournemouth, Dorset, England, BH2 6LA.  VAT Registration No: 576 8795 61
Book a Property Valuation Update Cookies Preferences