Fox Lane, Palmers Green, London. N13

Guide Price
£485,000
SSTC
This property listing is now SSTC

3 Bedroom Flat for sale in Palmers Green

1 3 2
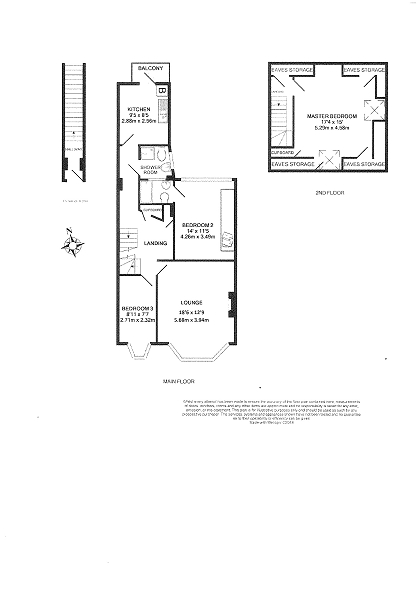
  • THREE BEDROOM 1ST FLOOR EDWARDIAN CONVERSION
  • SPLIT LEVEL, ARRANGED OVER TWO FLOORS
  • SHOWER ROOM & EN-SUITE BATHROOM
  • GOOD SIZED LOUNGE
  • OWN FRONT GARDEN
  • SMALL BALCONY
  • SECTION AT REAR POTENTIALLY FOR PARKING
  • SHARE OF FREEHOLD
  • CLOSE TO GROVELANDS PARK

FRONT GARDEN: (Full ownership). Pathway leading to front entrance. Laid to lawn.

FLAT ENTRANCE: UPVC door with inset glass carpeted stairs leading to Flat.

HALLWAY: Laminate flooring. Picture rail. Dado rail. 2 x storage cupboards. 2 x radiators.

RECEPTION: Laminate. UPVC double glazed bay sash windows to front aspect. Cornicing. Picture rails. Wooden feature fireplace with marble inset and hearth. Small ceiling rose. Curved radiator beneath window.

KITCHEN: Ceramic tiled flooring. Range of fitted wall and base units. 1½ bowel stainless steel sink and drainer with mixer taps. Freestanding oven with extractor overhead. Plumbing for washing machine. Space for fridge/freezer. Partly tiled walls. Hardwood door to rear aspect leading to small balcony.

SMALL BALCONY: Metal framework.

BEDROOM 1: Laminate flooring. Fitted wardrobes and cupboards. Cornicing. Picture rail. UPVC double glazed window to rear aspect. Radiator. Door leading to En-Suite.

EN-SUITE: Tiled flooring. Three piece suite comprising bath with side panel. Close coupled W/C. Basin with cupboard. Partly tiled walls.

BEDROOM 2: Laminate flooring. Picture rail. UPVC double glazed single bay window to front aspect. Radiator.

SHOWER ROOM: Three piece suite comprising shower cubicle. Pedestal basin. Low level W/C. Tiled floors and walls. Frosted window to side aspect.

STAIRS TO LOFT ROOM: Carpet. Storage Cupboard on small landing.

BEDROOM 3: Laminate flooring. 2 x Velux windows to front and side aspects. 4 x eaves storage cupboards. Radiator.

REAR: Section only (boundary line to tbc by Title Deeds). Access from Amberley Road. Gated. Dropped curb.

Important Information

  • This is a Share of Freehold property.

Property Ref: 58368_PRA10713

Share:

Similar Properties

Grovelands Road, Palmers Green, London. N13

2 Bedroom Ground Floor Flat | Guide Price £475,000

This spacious Edwardian flat on desirable Lakes Estate comes to market for the first time in just shy of twenty-five yea...

Old Park Road, Palmers Green, London. N13

2 Bedroom Ground Floor Flat | £475,000

Located on the sought-after 'Lakes' Estate and a stone's throw from local eateries along Aldermans Hill this ground floo...

10 - 12 The Ridgeway, Enfield, London. EN2

2 Bedroom Flat | Offers in region of £450,000

Discover the perfect blend of character and modern living with this stunning two-bedroom ground-floor apartment situated...

Lucerne Close, Aldermans Hill , Palmers Green , London. N13

2 Bedroom Ground Floor Flat | Guide Price £490,000

Bennett Walden are pleased to present this two Double bedroom purpose built ground floor balcony apartment, located in t...

Derwent Road, Palmers Green, London. N13

2 Bedroom Ground Floor Flat | Guide Price £500,000

This wonderful TWO double bedroom ground floor period conversion is situated one a prime road on the Lakes Estate. The f...

Lister Gardens, Edmonton, London. N18

3 Bedroom Terraced House | Guide Price £500,000

This very well presented mid terrace house has two double bedrooms and a single and boasts a cosy front reception room a...

Bennett Walden (Palmers Green)

Palmers Green, London, N13 4PP

0208 886 1777

How much is your home worth?

Use our short form to request a valuation of your property.

Request a Valuation

Mortgage Calculator

Amount Borrowed: £
Total Amount Repayable: £
Total Monthly Payment: £
©2025 The Guild of Property Professionals. All rights reserved. Terms and Conditions | Privacy Policy | Cookie Policy | Complaints Policy | Members Login
The Guild of Property Professionals Trading Address: 121 Park Lane, London W1K 7AG. GPEA Limited. Registered in England & Wales.  Company No: 02819824.  Registered Office Address: 2 St. Stephen's Court, St. Stephen's Road, Bournemouth, Dorset, England, BH2 6LA.  VAT Registration No: 576 8795 61
Book a Property Valuation Update Cookies Preferences