Howbury Walk, Parkwood, Gillingham, ME8

Offers in excess of
£325,000
SSTC
This property listing is now SSTC

2 Bedroom End of Terrace House for sale in Parkwood, Gillingham

1 2 1
  • Ideal First-Time Purchase Or Potential Investment Opportunity
  • Positioned On A Generous Corner Plot With Extension Potential (STPP)
  • Large Driveway For Multiple Vehicles & A Detached Garage
  • Modern Kitchen/Dining Room & A Spacious Separate Lounge
  • Popular Location With Great Transport Links & Amenities Nearby
  • Beautifully Presented End Of Terrace Home
  • Two Generous Double Bedrooms
  • Stylish Shower Room With Built In Ceiling Speakers

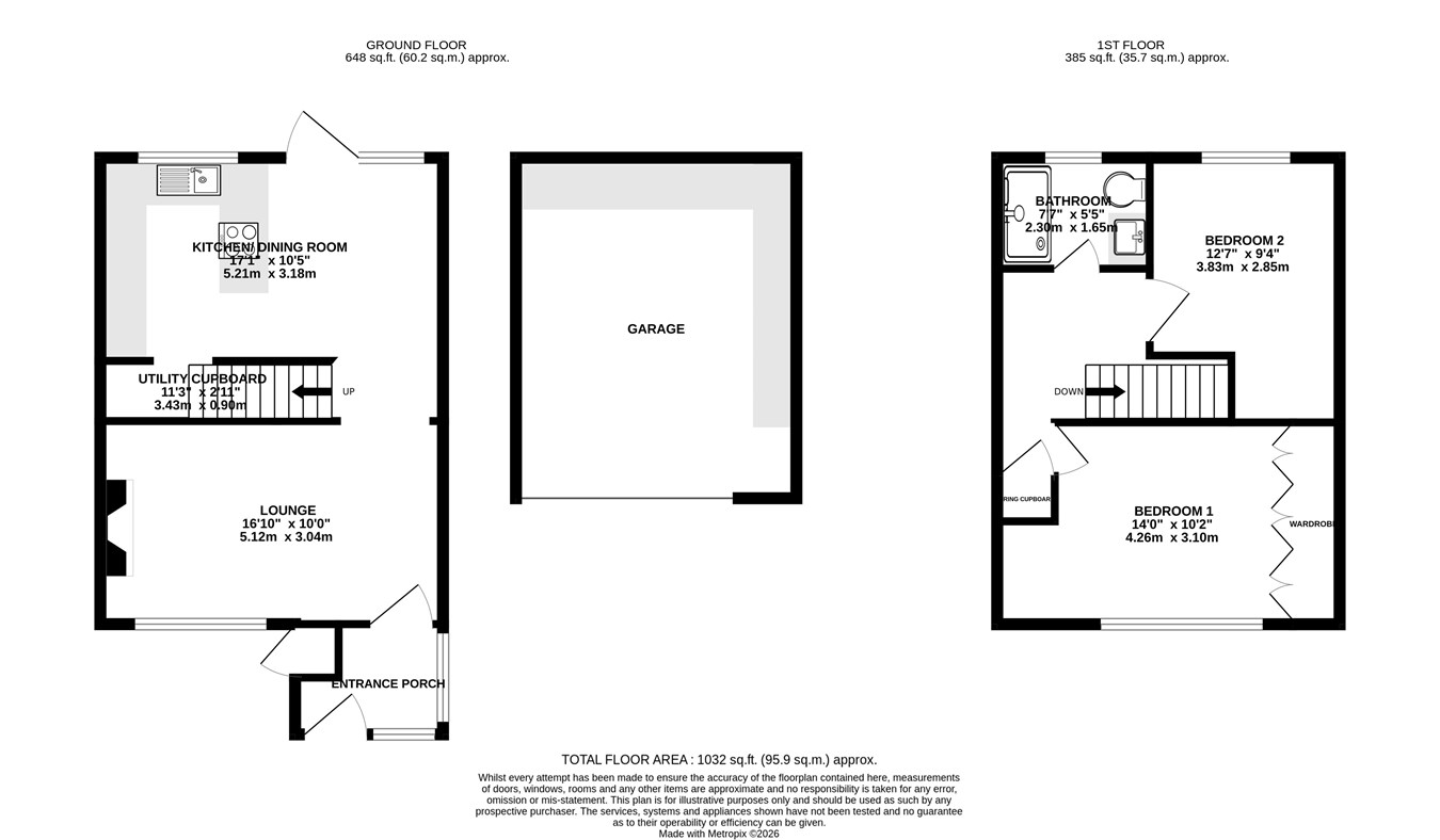
A fantastic opportunity for first-time buyers or potential investment, this beautifully presented and ready to move into two-bedroom end-of-terrace home occupies a generous corner plot in a popular residential location. The ground floor comprises a welcoming porch with useful storage space, a well-proportioned separate lounge, and a modern kitchen/diner to the rear, offering an ideal space for both everyday living and entertaining while overlooking the garden. Upstairs, the property features two spacious double bedrooms, with the main bedroom benefiting from ample built-in wardrobes and a dedicated dressing area. The accommodation is completed by a contemporary bathroom with a stylish walk-in shower. Externally, the property truly stands out, positioned on a sizeable corner plot providing excellent outdoor space and exciting potential to extend (STRP). The rear garden offers a combination of patio and lawn areas, perfect for relaxing or entertaining. In addition, there is a large, detached garage, a generous driveway providing off-street parking for multiple vehicles, and a front garden area. Conveniently located, the home is within easy reach of well-regarded schools, a range of local amenities, and Parkwood Shopping Centre, all within walking distance. Excellent transport links are also nearby, making this an ideal choice for commuters. Properties of this calibre are in high demand, pick up the phone and start dialling the Greyfox sales team in Rainham today to arrange your viewing.Ground Floor

Kitchen/ Dining Room
17' 01" x 9' 05" (5.21m x 2.87m)

Lounge
16' 10" x 10' 0" (5.13m x 3.05m)

First Floor

Bedroom 1
14' 0" x 10' 2" (4.27m x 3.10m)

Bedroom 2
12' 7" x 9' 4" (3.84m x 2.84m)

Bathroom
7' 7" x 5' 5" (2.31m x 1.65m)

Important Information

  • This is a Freehold property.

Property Ref: 30108483

Share:

Similar Properties

Newnham Close, Twydall, Gillingham, ME8

3 Bedroom Semi-Detached House | Offers in excess of £325,000

This superb three-bedroom semi-detached home has been recently renovated throughout, offering stylish, move-in-ready acc...

Woodlands Road, Gillingham, ME7

3 Bedroom End of Terrace House | Guide Price £325,000

**Guide Price £325,00-£350,000** This beautiful period three-bedroom end-of-terrace home effortlessly combines character...

Balmoral Road, Gillingham, ME7

6 Bedroom Terraced House | Guide Price £325,000

*Guide Price £325,000 - £350,000*An extended and generously proportioned five/six-bedroom Victorian terrace, ideally pos...

Childscroft Road, Rainham, Gillingham, ME8

3 Bedroom Semi-Detached House | Guide Price £350,000

**Guide Price £350,000-£375,000** Three-bedroom semi-detached family home with exceptional potential in a prime Rainham...

Grange Road, Gillingham, ME7

3 Bedroom Terraced House | Guide Price £350,000

**Guide Price £350,000-£375,000** Situated in a tranquil location with countryside walks and beautiful views nearby, thi...

Thrale Way, Parkwood, Gillingham, ME8

3 Bedroom Semi-Detached House | Guide Price £350,000

*Guide Price £350,000 - £375,000* Situated in a quiet residential location within the ever-popular Parkwood area, this s...

Greyfox Sales & Lettings (Rainham)

High Street, Rainham, Kent, ME8 7HS

01634 377737

How much is your home worth?

Use our short form to request a valuation of your property.

Request a Valuation

Mortgage Calculator

Amount Borrowed: £
Total Amount Repayable: £
Total Monthly Payment: £
©2026 The Guild of Property Professionals. All rights reserved. Terms and Conditions | Privacy Policy | Cookie Policy | Complaints Policy | Members Login
The Guild of Property Professionals Trading Address: 121 Park Lane, London W1K 7AG. GPEA Limited. Registered in England & Wales.  Company No: 02819824.  Registered Office Address: 2 St. Stephen's Court, St. Stephen's Road, Bournemouth, Dorset, England, BH2 6LA.  VAT Registration No: 576 8795 61
Book a Property Valuation Update Cookies Preferences