Rowbrocke Close, Parkwood, Gillingham, ME8

Guide Price
£400,000

4 Bedroom End of Terrace House for sale in Parkwood, Gillingham

2 4 1
  • Extended End of Terrace Family Home
  • 3 Generous Bedrooms
  • Stunning Open Plan Living/Dining Area & Modern Fitted Kitchen
  • W.C/Utility Room & Family Bathroom
  • Driveway To The Front Offering Ample Parking
  • Popular Parkwood Location
  • Separate Reception/Snug/Fourth Bedroom
  • Good Sized Rear Garden With Storage To The Side

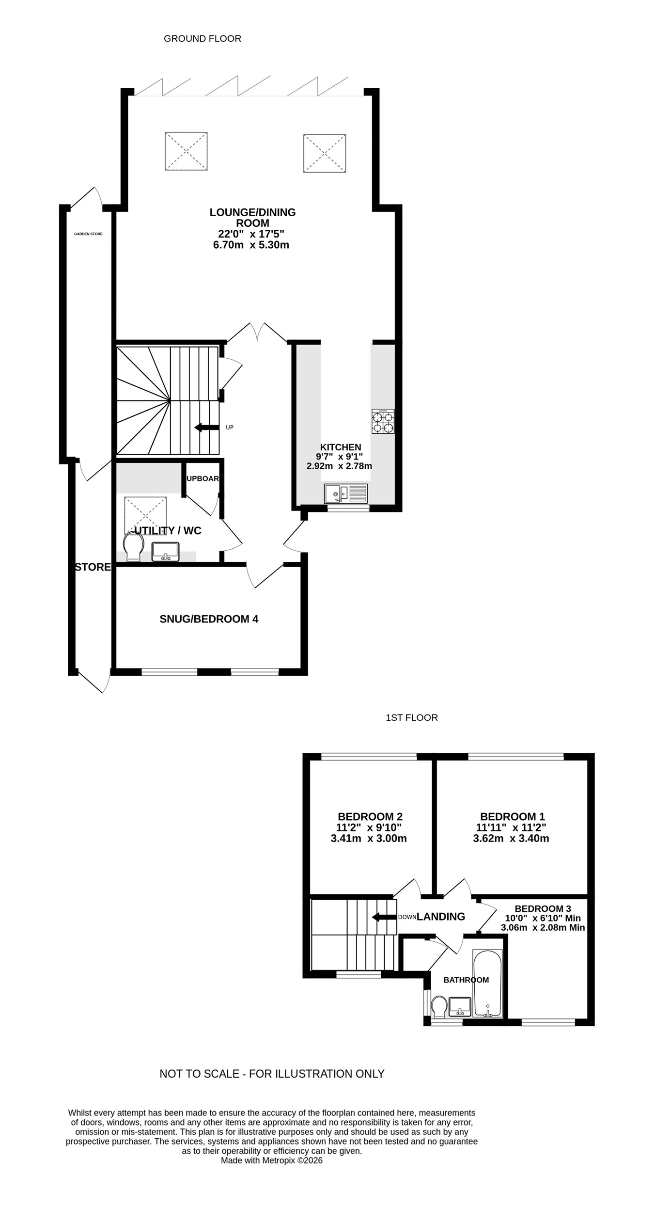
**Guide Price £400,000-£425,000** A modern & stylish extended family home situated on a quiet residential road within the ever-popular Parkwood, Rainham - This beautifully presented and heavily extended end of terrace home offers exceptional and versatile living space — perfect for any growing family. Boasting a substantial double-width rear extension and a cleverly converted garage, the property provides an impressive amount of accommodation throughout. Upon entering, you are welcomed by a bright and inviting entrance hall. To the front, the converted garage creates a separate reception room/fourth bedroom — ideal as a cosy retreat after a long day, a children’s playroom, or even a home office. There is also a handy downstairs W.C. and utility room, adding further practicality. The heart of the home is the vast open-plan living and dining area. Flooded with natural light from skylights and enhanced by bi-fold doors opening onto the rear garden, this space is perfectly designed for modern family life. With ample floor area for lounging, dining, and entertaining, it offers outstanding flexibility to suit your needs. The contemporary kitchen is beautifully finished with integrated appliances and stylish wood-effect worktops, seamlessly complementing the modern feel of the home. Upstairs, you will find three generous bedrooms and a well-appointed family bathroom, all presented in excellent condition. Externally, the property benefits from a private driveway to the front, while the rear boasts a mature garden with lawn and patio area — ideal for outdoor dining and family enjoyment. An added bonus is the lean-to at the side of the property, providing valuable additional storage space. This fantastic home truly must be viewed to appreciate the space and versatility on offer. Contact the Rainham Greyfox sales team today to arrange your viewing.Ground Floor

Entrance Hall

Lounge/Dining Room
22' 0" x 17' 5" (6.71m x 5.31m)

Kitchen
9' 7" x 9' 1" (2.92m x 2.77m)

W/C / Utility

Snug/Bedroom 4

First Floor

Bedroom 1
11' 11" x 11' 2" (3.63m x 3.40m)

Bedroom 2
11' 2" x 9' 10" (3.40m x 3.00m)

Bedroom 3
10' 0" x 6' 10" (3.05m x 2.08m)

Family Bathroom

Important Information

  • This is a Freehold property.

Property Ref: 29558676

Share:

Similar Properties

Hunstanton Close, Rainham, Gillingham, ME8

4 Bedroom End of Terrace House | Guide Price £400,000

Guide Price £400,000 - £425,000Situated in a sought after Rainham location, this impressive four double bedroom extended...

Chalky Bank Road, Rainham, Gillingham, ME8

2 Bedroom Semi-Detached Bungalow | Guide Price £400,000

Guide Price £400,000 - £425,000This extended semi-detached bungalow offers fantastic kerb appeal with an attractive fron...

Lower Woodlands Road, Gillingham, ME7

2 Bedroom Bungalow | Offers in region of £390,000

Nestled in a sought-after location with excellent access to local amenities and transport links, this spacious detached...

Leslie Ames Court, Rainham, Gillingham, ME8

3 Bedroom Detached House | Guide Price £425,000

Guide Price £425,000 - £450,000 - A Stunning Family Home in the Sought-After Berengrave Gardens!Nestled in the highly de...

Lower Rainham Road, Gillingham, ME7

3 Bedroom Chalet | Guide Price £425,000

**Guide Price £425,000-£450,000**A stunning 3-Bedroom Semi-Detached Chalet Bungalow in Lower Rainham! Spacious, Modern L...

Church Lane, Newington, Sittingbourne, ME9

4 Bedroom Semi-Detached House | Guide Price £425,000

**Guide Price £425,000-£450,000** A stunning and expansive four-bedroom semi-detached family home, ideally positioned in...

Greyfox Sales & Lettings (Rainham)

High Street, Rainham, Kent, ME8 7HS

01634 377737

How much is your home worth?

Use our short form to request a valuation of your property.

Request a Valuation

Mortgage Calculator

Amount Borrowed: £
Total Amount Repayable: £
Total Monthly Payment: £
©2026 The Guild of Property Professionals. All rights reserved. Terms and Conditions | Privacy Policy | Cookie Policy | Complaints Policy | Members Login
The Guild of Property Professionals Trading Address: 121 Park Lane, London W1K 7AG. GPEA Limited. Registered in England & Wales.  Company No: 02819824.  Registered Office Address: 2 St. Stephen's Court, St. Stephen's Road, Bournemouth, Dorset, England, BH2 6LA.  VAT Registration No: 576 8795 61
Book a Property Valuation Update Cookies Preferences