Plas St. Pol De Leon, Penarth

Asking Price
£385,000

3 Bedroom End of Terrace House for sale in Penarth

1 3 1
  • Modern end-terrace house with water views
  • Three bedrooms
  • Living room and kitchen / diner
  • Two outside spaces - one with water views
  • Two allocated parking spaces
  • Sold with no onward chain
  • Ideal for first time buyers, investors and downsizers
  • Renovated in 2023 to include a new kitchen, bathroom and new boiler

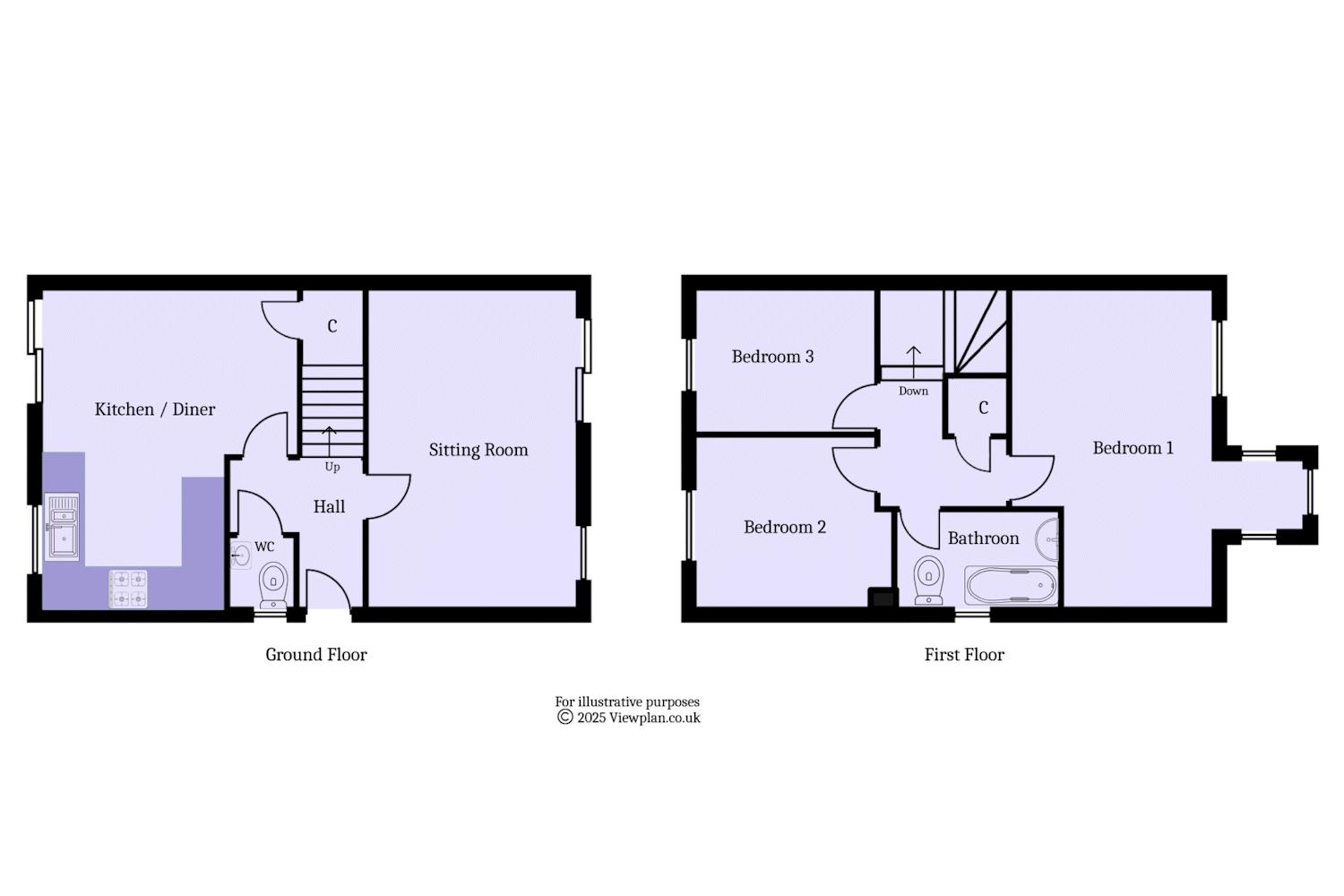
Perfect for first time buyers, investors and downsizers alike, this three bedroom end-terrace in Penarth Marina, with water views, is ideally placed for access to all that the Marina has to offer. The property was renovated in 2023 and is being sold with no onward chain. Living accommodation comprises the hall, living room, kitchen / diner and WC on the ground floor along with the three bedrooms and bathroom on the first floor. There are water views over the Inner Basin from the living room and main bedroom while the property has two outside areas and two allocated parking spaces. Viewing is advised. EPC: C.

Accommodation

Ground Floor

Hall

Laminate flooring. Stairs to the first floor. Central heating radiator. Power point. Doors to the sitting room, WC and kitchen / diner.

Sitting Room
10' 0'' x 15' 1'' (3.06m x 4.59m)
A dual aspect sitting room with uPVC doubp3 glazed window to the front and a window and sliding doors to the side, opening onto one of the gardens and with views of the inner basin. Laminate flooring. Central heating radiator. Power points and data point.

Kitchen / Diner
12' 4'' max x 15' 0'' max (3.76m max x 4.57m max)
A fitted kitchen (installed 2023) comprising wall units and base units with grey gloss doors and marble effect laminate work surfaces. Integrated appliances including an electric oven, four zone electric hob and an extractor hood. One and a half bowl stainless steel sink with drainer. Plumbing for washing machine. Power points. Recessed lighting. Central heating radiator. uPVC double glazed window and sliding doors to the garden. Under stair cupboard. Laminate flooring.

WC
3' 2'' x 3' 6'' (0.96m x 1.07m)
Tiled floor. WC and sink with storage below. uPVC double glazed window.

First Floor

Landing

Fitted carpet to the stairs and landing. Built-in cupboard with gas combination boiler. Power point. Doors to three bedrooms and the bathroom.

Bedroom 1
10' 4'' into bay x 15' 1'' (3.15m into bay x 4.59m)
A spacious main bedroom with uPVC double glazed window and bay window, both with water views over the inner basin. Fitted carpet. Central heating radiator. Power points.

Bedroom 2
9' 3'' x 7' 10'' (2.82m x 2.38m)
Fitted carpet. Central heating radiator. Power points. uPVC double glazed window.

Bedroom 3
9' 3'' x 6' 11'' (2.83m x 2.12m)
Fitted carpet. Central heating radiator. Power points. uPVC double glazed window.

Bathroom
7' 11'' x 4' 9'' (2.41m x 1.44m)
A fully tiled bathroom with suite comprising a panelled bath with twin head mixer shower and glass screen, a WC and a sink with storage below. uPVC double glazed window. Heated towel rail. Recessed lights. Extractor fan. Fitted bathroom cabinet with mirrored door and lights.

Outside

Garden 1

A courtyard style garden laid to block paving, with views of the inner basin. Raised planting bed. Gated access to the footpath. Two mature trees.

Garden 2

The smaller garden, with gated access to the parking space. Area laid to paving and another to stone chippings. Mature tree.

Parking

The property has two allocated parking spaces, and there are a number of visitor spaces nearby.

Additional Information

Tenure

The property is freehold (WA702638).

Council Tax Band

The Council Tax band for this property is F, which equates to a charge of £3068.02 for 2025/26.

Approximate Gross Internal Area

793 sq ft / 73.7 sq m.

Utilities

The property is connected to mains gas, electricity, water and sewerage services and has gas central heating.

Service Charge

Approximately £35.00 per month.

Important Information

  • This is a Freehold property.

Property Ref: EAXML13962_12793238

Share:

Similar Properties

Plymouth Road, Penarth

2 Bedroom Flat | Asking Price £385,000

A completely renovated second floor, two bedroom apartment located close to Penarth town centre and with convenient accc...

Salop Place, Penarth

3 Bedroom Terraced House | Asking Price £375,000

A very attractively styled three bedroom mid-terraced house, very close to the town centre and giving convenient access...

Bassett Road, Sully

Land | Asking Price £375,000

The opportunity to purchase a building plot in this popular residential area, with Planning Permission for 2 detached dw...

Lewis Road, Llandough

4 Bedroom Semi-Detached House | Asking Price £390,000

A ground floor extended and loft converted four bedroom semi-detached property located on an extremely popular Llandough...

Cowslip Drive, Penarth

4 Bedroom Detached House | Offers in excess of £395,000

A well cared for four bedroom detached property located on the popular Cowslip development on a larger than average plot...

9 Windsor Gardens, Windsor Road, Penarth

2 Bedroom Flat | Asking Price £410,000

A brand new, two bedroom first floor apartment with balcony on the front corner of this landmark Penarth development, in...

David Baker (Penarth)

Penarth, Cardiff, CF64 3EE

02920 702622

How much is your home worth?

Use our short form to request a valuation of your property.

Request a Valuation

Mortgage Calculator

Amount Borrowed: £
Total Amount Repayable: £
Total Monthly Payment: £
©2026 The Guild of Property Professionals. All rights reserved. Terms and Conditions | Privacy Policy | Cookie Policy | Complaints Policy | Members Login
The Guild of Property Professionals Trading Address: 121 Park Lane, London W1K 7AG. GPEA Limited. Registered in England & Wales.  Company No: 02819824.  Registered Office Address: 2 St. Stephen's Court, St. Stephen's Road, Bournemouth, Dorset, England, BH2 6LA.  VAT Registration No: 576 8795 61
Book a Property Valuation Update Cookies Preferences