Brockhill Way, Penarth

Asking Price
£585,000
SSTC
This property listing is now SSTC

4 Bedroom Detached House for sale in Penarth

2 4 2
  • Modern detached house with ground floor extension
  • Two reception rooms plus extended kitchen / diner
  • Four bedrooms - all of a good size
  • Two bathrooms - one an en-suite to the main bedroom
  • Lots of off road parking and a double garage
  • Enclosed, south facing rear garden
  • Practical side garden
  • No onward chain
  • In good order throughout but with extra potential to further extend, modernise or change

A modern, detached and extended four bedroom detached house, set back from the road and with excellent off road parking and double garage. The property has two ground floor reception rooms as well as the extended kitchen / diner, WC and utility room. There are four double bedrooms and two bathrooms on the first floor. As well as having the parking and a side garden, the property benefits from an attractive, private rear garden which is south facing. Sold with no onward chain and in good order throughout despite retaining good potential for further extension and change to suit a number of requirements. Viewing advised. EPC: D.

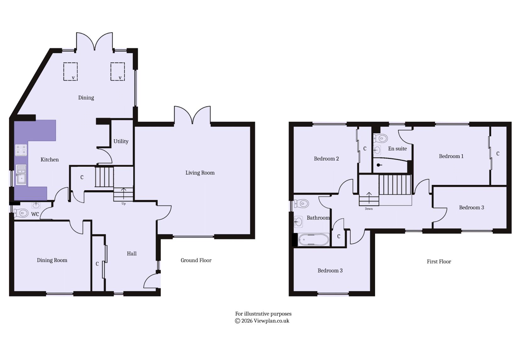
Accommodation

Ground Floor

Porch and Hall
14' 10'' max x 12' 6'' max (4.51m max x 3.81m max)
An extended entrance hall with wood effect laminate flooring and a staircase to the first floor with under stair cupboard. Composite front door. uPVC double glazed windows to the front and side. Fitted wardrobes with sliding doors. Power points. Phone point. Central heating radiator. Doors to the living room and dining room, kitchen and WC.

Living Room
13' 11'' max x 15' 6'' max (4.23m max x 4.73m max)
A spacious dual aspect living room with uPVC double glazed window to the front and doors and windows to the rear - all with fitted vertical blinds. Wood effect laminate flooring continued from the hall. Stone fireplace with electric fire. Power points and TV point. Two central heating radiators.

Dining Room
11' 6'' x 9' 4'' (3.5m x 2.84m)
A second reception room, this time with uPVC double glazed window to the front, with vertical blinds. Wood effect laminate flooring continued from the hall. Central heating radiator. Power points.

WC
5' 9'' x 2' 11'' (1.74m x 0.88m)
Wood effect laminate floor continued from the hall. WC and sink with storage below. uPVC double glazed window to the side. Part tiled walls.

Kitchen / Diner
16' 2'' max x 23' 0'' max (4.94m max x 7.02m max)
An extended space to the rear of the house, with uPVC double glazed doors and windows to the rear, into the garden, and with additional uPVC double glazed windows to both sides. Two Velux windows. Wood effect laminate flooring continued from the hall. Fitted kitchen comprising wall units and base units with white gloss doors and wooden work surfaces. Integrated appliances including an electric oven, four zone electric hob, extractor hood and dishwasher. Space for a fridge freezer. Part tiled walls. Two central heating radiators. Recessed lights. Power points and TV point. Door into a utility room.

Utility
5' 9'' max x 6' 11'' max (1.74m max x 2.1m max)
Wood effect laminate flooring. Fitted shelving. Power points. Plumbing for a washing machine. Recessed lights.

First Floor

Landing

Fitted carpet to the stairs and landing. Doors to all four bedrooms and the bathroom. Built-in airing cupboard with gas combination boiler and fitted shelving. Central heating radiator. Power points. uPVC double glazed window to the front with vertical blinds.

Bedroom 1
13' 11'' into fitted wardrobes x 10' 0'' into doorway (4.25m into fitted wardrobes x 3.06m into doorway)
Double bedroom with en-suite shower and a uPVC double glazed window to the rear that overlooks the garden. Fitted carpet. Fitted wardrobes with sliding doors. Central heating radiator. Power points and TV point. Recessed lighting.

En-Suite
5' 11'' x 7' 0'' (1.8m x 2.13m)
Vinyl flooring and part tiled walls. Suite comprising a curved panel bath with mixer shower and glass screen, a sink with storage below and a WC. Central heating radiator. uPVC double glazed window to the rear with roller blind. Bathroom cabinet with mirrored doors. Recessed lights.

Bedroom 2
11' 9'' into wardrobes x 10' 1'' (3.59m into wardrobes x 3.07m)
Another double bedroom with uPVC double glazed window to the rear overlooking the garden and with fitted vertical blinds. Fitted carpet. Fitted wardrobes with sliding doors. Central heating radiator. Power points.

Bedroom 3
11' 6'' x 9' 6'' into doorway (3.5m x 2.9m into doorway)
Double bedroom with uPVC double glazed window to the front. Central heating radiator. Fitted carpet. Fitted vertical blinds to the window. Power points.

Bedroom 4
11' 0'' x 6' 5'' (3.35m x 1.95m)
A well-proportioned fourth bedroom, ideal also as a home office. uPVC double glazed window to the front with vertical blinds. Central heating radiator. Power points. Fitted carpet.

Bathroom
5' 7'' max x 7' 11'' (1.71m max x 2.41m)
Vinyl floor and part tiled walls. Suite comprising a panelled bath with mixer shower, a WC and a pedestal sink. Central heating radiator. uPVC double glazed window to the side. Recessed lighting.

Outside

Front

The property is set well back from the road and accessed over a shared area onto a large private driveway that provides excellent off road parking and access to the double garage. There are grassed areas, stone chippings, mature trees, outside lights and gated access to the side garden and rear garden.

Side

The property has a very private side garden laid to stone chippings, with access to the front and the rear.

Rear Garden

A re-landscaped rear garden with a large paved patio and two tiered lawn with railway sleeper step. The garden has a southerly aspect and is surrounded by mature trees. There is gated access to the side and front as well as a door into the garage.

Garage
16' 9'' x 16' 6'' (5.11m x 5.04m)
A double garage with two up and over doors. Loft style storage above. Electric power and lighting.

Additional Information

Tenure

The property is freehold (WA509604).

Council Tax Band

The Council Tax band for this property is G, which equates to a charge of £3540.02 for 2025/26.

Approximate Gross Internal Area

1490 sq ft / 138.4 sq m.

Utilities

The property is connected to mains gas, electricity, water and sewerage services and has gas central heating.

Important Information

  • This is a Freehold property.

Property Ref: DB003818

Share:

Similar Properties

Rhodfa'r Morwydd, Penarth

4 Bedroom House | Asking Price £585,000

A much improved four to five bedroom, modern detached house ideal for families and with very useful additional ground fl...

Redlands Road, Penarth

4 Bedroom House | Asking Price £585,000

An extended and loft converted four bedroom semi-detached house, with an enclosed, low maintenance south westerly garden...

Castle Avenue, Penarth

3 Bedroom Bungalow | Asking Price £575,000

An individually built detached bungalow, being sold with no onward chain an in an excellent location for access to a num...

Chaucer Close, Penarth

3 Bedroom Semi-Detached House | Asking Price £595,000

A wonderful double-fronted family home in a quiet, cul-de-sac, vastly improved, loved and enjoyed by the current owners...

Grove Place, Penarth

5 Bedroom Semi-Detached House | Asking Price £600,000

An impressively spacious, characterful end of terrace period home with off road parking, improved and upgraded to a high...

St. Marks Road, Penarth

3 Bedroom Detached House | Asking Price £650,000

A detached three bedroom property located on a quiet road overlooking the Old Penarthians rugby ground and with a large...

David Baker (Penarth)

Penarth, Cardiff, CF64 3EE

02920 702622

How much is your home worth?

Use our short form to request a valuation of your property.

Request a Valuation

Mortgage Calculator

Amount Borrowed: £
Total Amount Repayable: £
Total Monthly Payment: £
©2026 The Guild of Property Professionals. All rights reserved. Terms and Conditions | Privacy Policy | Cookie Policy | Complaints Policy | Members Login
The Guild of Property Professionals Trading Address: 121 Park Lane, London W1K 7AG. GPEA Limited. Registered in England & Wales.  Company No: 02819824.  Registered Office Address: 2 St. Stephen's Court, St. Stephen's Road, Bournemouth, Dorset, England, BH2 6LA.  VAT Registration No: 576 8795 61
Book a Property Valuation Update Cookies Preferences