- Building plot with full planning permission to construct a four bedroom family size dwelling
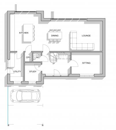
- Consent allows for construction of a property offering hallway, cloakroom/ WC, snug/ sitting room and study, large open-plan lounge, dining room and kitchen, utility room
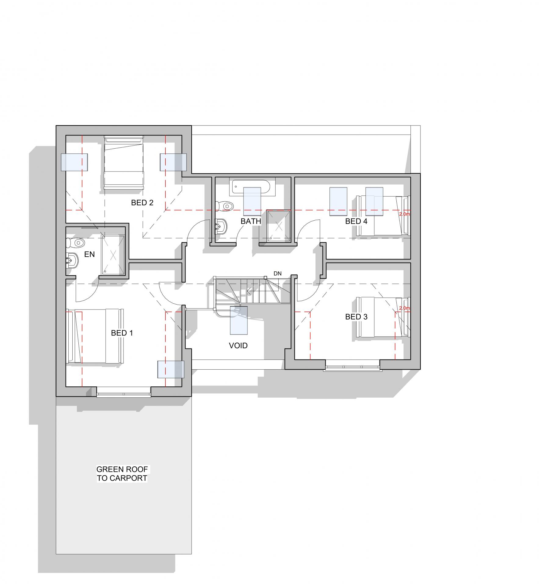
- Galleried landing, principal bedroom with Juliet balcony to far ranging views, en-suite shower room, three further bedrooms and family bathroom
- Shared driveway to parking area and green-roofed car-port, rear garden
- Lovely Vale village with highly regarded primary school and easy access to M4
 
                                 
                                 
                                 
                                 
                                 
                                 
                                 
                                 
                                 
                                 
                                                     
                                                     
                                                     
                                                     
                                                     
                                                     
                                     
                                     
                                     
                                     
                                     
                                     
                                     
                                    