Harbour Village, Daniels Sail Loft Harbour Village, TR10

Guide Price
£340,000

3 Bedroom Duplex for sale in Penryn

1 3 1
  • Stylish Two Storey, Riverside Penthouse Apartment
  • Lovely Water Views, With Use Of Dinghy Park & Slipway
  • Purpose Built, Constructed in the 1990's Into Six Apartments
  • Historical Grade II Listed Granite Wharfside Building
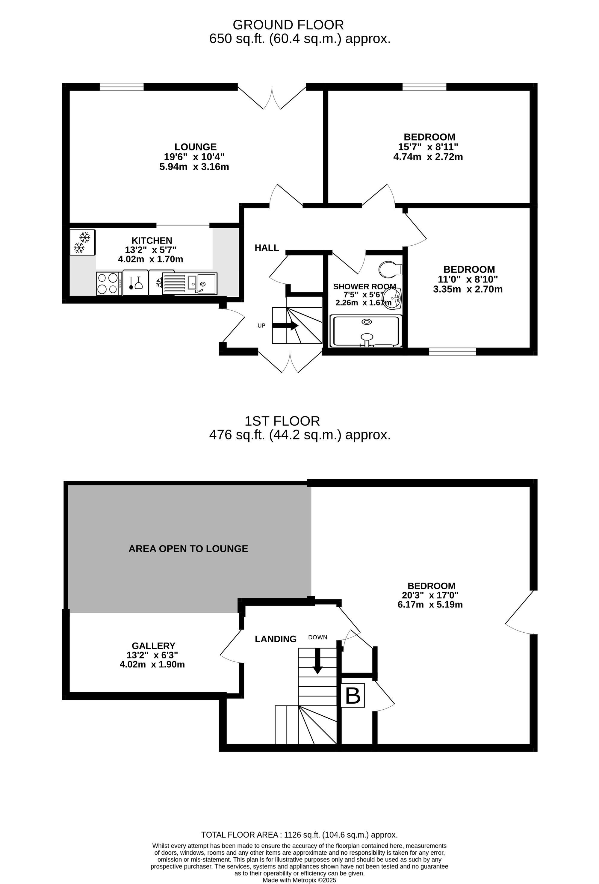
  • Delightful Modern Duplex Accommodation With Vaulted Ceilings
  • 3 Double Bedrooms Plus Galleried Study
  • Sitting / Dining Room To Riverside With Juliette Balcony
  • Designated Parking Space
  • Nearby Independent Businesses, Amenities & Pub
  • PLEASE WATCH THE PROPERTY VIDEO TOUR

THE PROPERTY

Apartment 6, Daniel Sail Loft, is a stunning penthouse conversion within a magnificent Grade II listed granite, riverside building in Penryn’s sought-after Harbour Village. Set across the top two floors, this spacious three-bedroom duplex boasts exceptional southerly and West facing views across the river, town, viaduct, and surrounding woodland. Full of character and charm, the property retains many original features including exposed beams, shuttered windows, and whitewashed granite walls. A galleried mezzanine adds flexibility for a study or hobby space, while French doors open from the generous living area to enjoy the waterfront setting. Residents benefit from a designated parking space, use of a dinghy park and slipway, and proximity to local wildlife including swans, kingfishers, and more. Offered with vacant possession and no onward chain, this unique apartment presents a superb opportunity as a permanent home, holiday retreat, or investment.

 

THE LOCATION 

Penryn is one of Cornwall’s oldest and most historic market towns, full of charm and character. With a vibrant community, excellent local facilities including nurseries, primary and secondary schools, and strong transport links via bus and train to Falmouth, Truro, and London Paddington, it offers both convenience and connectivity. The town is undergoing an exciting renaissance, with the regeneration of the inner harbour area bringing attractive riverside homes, listed building restorations, and a growing array of dining options. Now a university town shared by Falmouth and Exeter Universities, Penryn has a lively and energetic atmosphere, supported by a range of local sports clubs and community activities. The nearby Penryn Harbour Village development blends historical architecture with modern living, all set close to woodland walks, the river, and the stunning beaches of Cornwall’s south coast. Right on your doorstep are some fantastic independent businesses including 'The Neighbourhood' wine and beverage community bar, 'Pizzeria 42' with over 300 five star Google reviews and 'The Famous Barrel pub' all within a few hundred yards of the apartment. If you fancy a short stroll the towns amenities and the Wharfside businesses are nearby to enjoy a cafe, bakery or a communal office space to work in. Just two miles from the bustling town of Falmouth, Penryn combines heritage, lifestyle, and opportunity in one of Cornwall’s most up-and-coming locations. Penryn Train Station connects the Town to Falmouth or to the City of Truro in the other direction leading onto either Penzance, St Ives or London Paddington in the other direction including other mainline principle Cities. 

Energy Efficiency Current: 78.0
Energy Efficiency Potential: 78.0

Important Information

  • This is a Leasehold property.
  • This Council Tax band for this property is: D

Property Ref: bb8b6041-7bc8-4517-9ace-3c409e2b1efe

Share:

Similar Properties

Trenoweth Road, Falmouth, TR11

3 Bedroom End of Terrace House | Guide Price £340,000

First time to the market in 20 years since the owners first purchased the property from the developer in 2005 and has be...

College Hill, Penryn, TR10

3 Bedroom Semi-Detached House | Guide Price £335,000

An intriguing and spacious home with three double bedrooms, each with an en-suite shower room. Featuring a slate hung, g...

Carlidnack Close, Mawnan Smith, TR11

2 Bedroom Semi-Detached House | Guide Price £335,000

Charming 1960s bungalow in popular village with 2 beds, garage & landscaped garden. Balcony with stunning views. Close t...

Penthouse Apartment, 3 Rosehill Place, 66 Melvill Road, Falmouth, TR11 4DD

1 Bedroom Penthouse | Guide Price £345,000

LAST APARTMENT AVAILABLE! - Rosehill Place offers unique apartments with high-quality finishings and stunning views of F...

Nelsons Reach, Falmouth, TR11

3 Bedroom Semi-Detached House | Guide Price £345,000

Beautifully presented and modern family home set in a peaceful, tree-lined setting near amenities, transport links and t...

Hulls Lane, Falmouth, TR11

2 Bedroom Terraced House | Guide Price £350,000

Thought to have been built in the late 1800’s or early 1900’s this beautiful two bedroom end of terrace character cottag...

Heather & Lay (Falmouth)

Falmouth, Cornwall, TR11 3DN

01326 319767

How much is your home worth?

Use our short form to request a valuation of your property.

Request a Valuation

Mortgage Calculator

Amount Borrowed: £
Total Amount Repayable: £
Total Monthly Payment: £
©2025 The Guild of Property Professionals. All rights reserved. Terms and Conditions | Privacy Policy | Cookie Policy | Complaints Policy | Members Login
The Guild of Property Professionals Trading Address: 121 Park Lane, London W1K 7AG. GPEA Limited. Registered in England & Wales.  Company No: 02819824.  Registered Office Address: 2 St. Stephen's Court, St. Stephen's Road, Bournemouth, Dorset, England, BH2 6LA.  VAT Registration No: 576 8795 61
Book a Property Valuation Update Cookies Preferences