Antron Hill, Mabe Burnthouse, TR10

Guide Price
£775,000
SSTC
This property listing is now SSTC

5 Bedroom Detached House for sale in Penryn

2 5 3
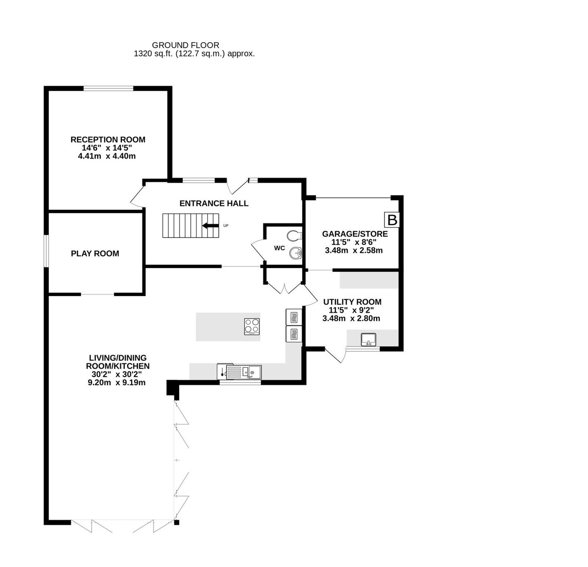
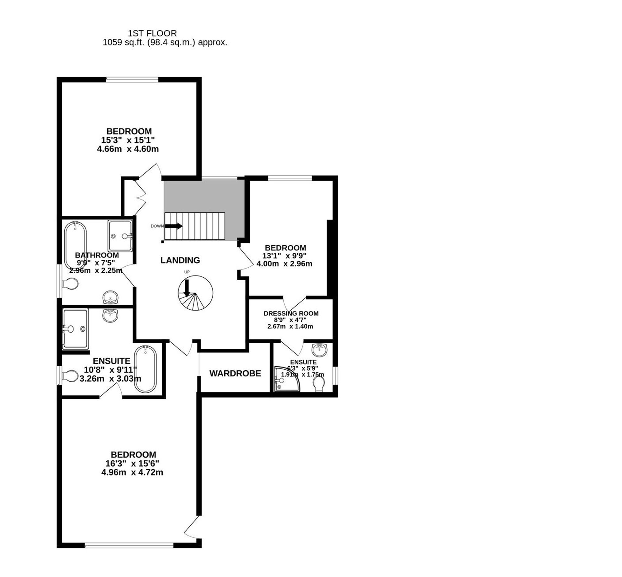
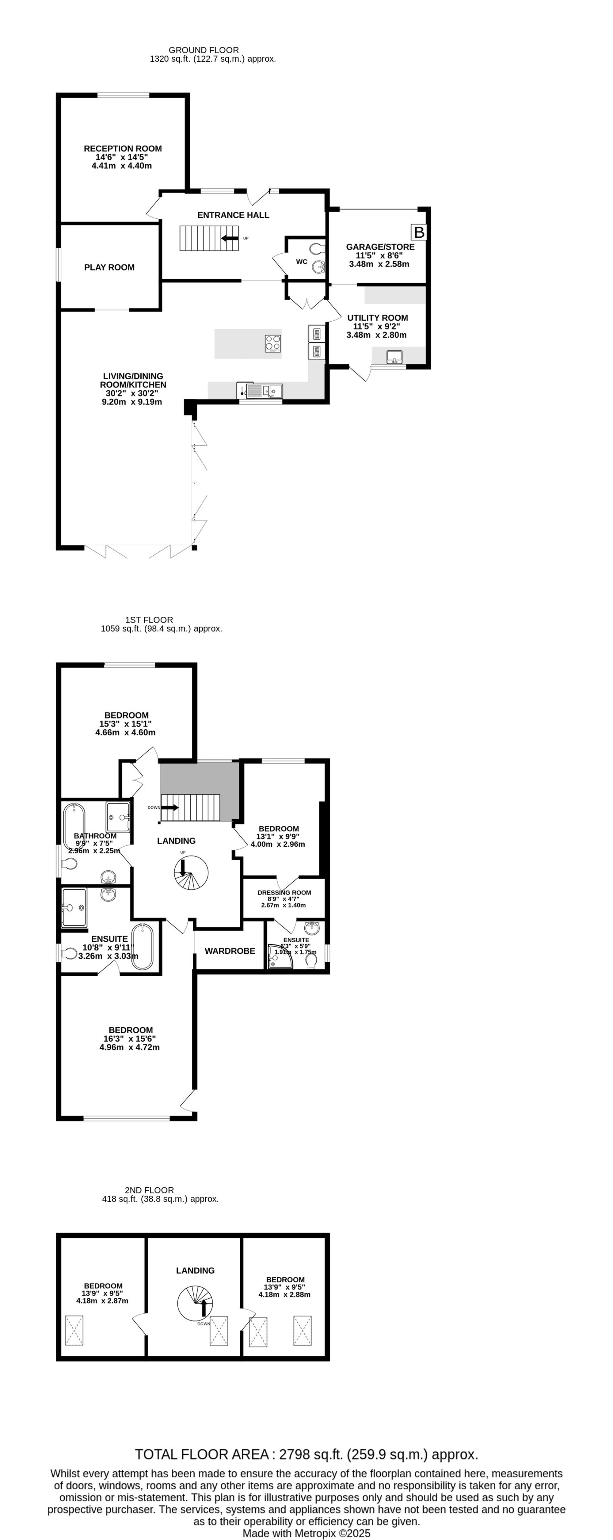
  • Superb Detached Residence Totalling Over 2700 Sq. Ft In Accommodation
  • Five Bedrooms, Two Reception Rooms & Three Bathrooms
  • Stylish Kitchen Connecting To A Fabulous Social Living Area
  • Impressive Master Bedroom With One Of A Kind En-Suite
  • Bespoke Features Including Vaulted Apex Ceilings, Central Staircase & A Spiral Staircase
  • Two Sets Of Bi-Folding Doors Connecting The Living Area To The Outdoors
  • Set In 1/3 Of An Acre Of Grounds
  • Integral Garage With Substantial Parking Available
  • Distant Views Looking Towards Penryn River & Falmouth Bay
  • PLEASE WATCH OUR PROPERTY VIDEO TOUR

THE PROPERTY

Oaklands House was originally built in the early 1990's and is almost unrecognisable from its humble beginnings, the current owners have recently carried out a full renovation on the property with no expense spared. There is a wonderful feeling of luxury, space and relaxation. The property has been significantly extended, with two-storey extensions to the front and rear and a large loft conversion which has almost doubled the size of the original size of the property. These changes, along with the full renovations and modernization throughout, undoubtedly make this one of the most desirable homes in the area. Standout features include apex vaulted ceilings in two of the bedrooms, magnificent and stylish bathrooms, handcrafted and bespoke staircases including an historic spiral staircase and a fabulous kitchen with bi-fold doors opening out to the landscaped gardens. The accommodation is bright and versatile and comprises a stunning open plan living space with bi-fold doors bringing the outside in and perfect for entertaining or family time. The kitchen is beautifully made with built-in appliances and more storage cupboards than you could ever imagine, including a walk-in pantry, sure to impress the most discerning of chefs. There’s a playroom area that could also be used as a home office or studio, and a separate sitting room with a media wall for a quieter space to relax. Upstairs, the master bedroom is more than impressive, with a unique en-suite bathroom featuring a double ended copper slipper bath and a walk-in wardrobe. There are two further spacious double bedrooms on the first floor, one with its own en-suite and walk-in wardrobe, plus a stylish family bathroom. On the landing, a bespoke bookcase and spiral staircase lead up to the top floor, where you'll find two more large double bedrooms with Velux windows facing Southerly and plenty of eaves storage. The master bedroom enjoys elevated views facing in a Southerly direction with glimpses of Falmouth Bay, Penryn River and distant countryside views. The exterior elevations have been re-rendered plus a new roof fitted with Velux windows. Other updates include a full electrical rewire with modern lighting, an up to date modern RCD consumer unit, newly installed gas boiler, radiators, underfloor heating system and a pressurised hot water tank, all of these modern additions and upgrades are comparable to a new build. There’s plenty of parking at the front with space for larger vehicles to turn easily. Credit to the owners for creating a wonderful family home with every feature and style carefully considered. The high quality and standard to this home is not one to be missed and a viewing is highly recommended to fully appreciate what is on offer here. Further details with the extensions and build can be found on the planning portal on the Cornwall Council website using the application number: PA21/10901. We at Heather and Lay are delighted and proud to offer this wonderful property to the open market.

THE LOCATION

Mabe is a popular village with useful everyday facilities, including a Premier shop & Post Office. The village is conveniently located one mile from University Of Exeter (Penryn Campus), approx 1.5 miles from Penryn, and just over three miles from Falmouth Harbour Town and seaside. The village has an active community with an excellent nursery & primary school, community centre, regular bus services and a church. Asda supermarket is within easy access of the property on the outskirts of Penryn, as is Argal Reservoir a beautiful spot for walking and enjoying the countryside. Penryn is the next immediate town offering further amenities and less than half a mile away is Penryn Business Park offering a wide range of corporate and independent businesses including the popular Verdant Brewery hosting events and popular comedy nights, B&Q, Rowes Cornish Bakers & Starbucks, along with community sports hubs such as Penryn Football, Rugby & Cricket Clubs. Falmouth has ben shaped and influenced by its strong connection to the sea and harbour, combining a fascinating maritime heritage and modern creativity, Falmouth is building a name for itself as one of the South West's leading cultural and festival destinations. Penryn Train branch provides links into Falmouth Town and beaches and also onto the Cathedral City of Truro where it links with the national rail network including London Paddington and other principal cities. Truro is approximately 8 miles away which offers national high street shops, independent shops and some of the largest employers in Cornwall such as Royal Cornwall Hospital and Cornwall Council County Hall. Oaklands is situated to enjoy convenient access to many amenities, beautiful coastline and beaches, businesses and education in the area

Important Information

  • This is a Freehold property.
  • This Council Tax band for this property is: E
  • EPC Rating is C

Property Ref: 9883451e-dc4a-4c62-b05b-72c10e648bae

Share:

Similar Properties

6 Church Road, Mylor, TR11

4 Bedroom Detached House | Guide Price £775,000

A much extended 5-bedroom cottage in the desirable Mylor location. Spacious reception rooms, pretty gardens, a hidden pa...

Stithians, Truro, TR3

3 Bedroom Detached House | Guide Price £695,000

Rare countryside property with detached studio annexe, beautiful gardens, stable yard, garage, workshop & 1.6-acre field...

Comfort Road, Mylor Bridge, TR11

4 Bedroom Detached House | Guide Price £695,000

Spacious 4-bed home in Mylor Bridge with lake views, large garden, flexible living, ensuite master, garage, and south-fa...

North Parade, Falmouth, TR11

4 Bedroom Detached House | Guide Price £795,000

A stunning contemporary residence of outstanding quality style and simplicity, beautifully conceived and recently constr...

Budock Vean Lane, Mawnan Smith, TR11

5 Bedroom Detached Bungalow | Guide Price £795,000

Spacious detached 5-bedroom bungalow in a peaceful, sought-after location tucked along a private drive and set within a...

Tresahar Road, Falmouth, TR11

5 Bedroom Semi-Detached House | Guide Price £850,000

An exciting semi-detached town house of indulgent proportions with 5 bedrooms occupying one of the town’s most desirable...

Heather & Lay (Falmouth)

Falmouth, Cornwall, TR11 3DN

01326 319767

How much is your home worth?

Use our short form to request a valuation of your property.

Request a Valuation

Mortgage Calculator

Amount Borrowed: £
Total Amount Repayable: £
Total Monthly Payment: £
©2026 The Guild of Property Professionals. All rights reserved. Terms and Conditions | Privacy Policy | Cookie Policy | Complaints Policy | Members Login
The Guild of Property Professionals Trading Address: 121 Park Lane, London W1K 7AG. GPEA Limited. Registered in England & Wales.  Company No: 02819824.  Registered Office Address: 2 St. Stephen's Court, St. Stephen's Road, Bournemouth, Dorset, England, BH2 6LA.  VAT Registration No: 576 8795 61
Book a Property Valuation Update Cookies Preferences