Perivale, UB6

Offers Over
£1,100,000

7 Bedroom Detached House for sale in Perivale

3 7 4
  • Private Driveway
  • Potential
  • Close to Station
  • Private Garden
  • Cul-de-sac

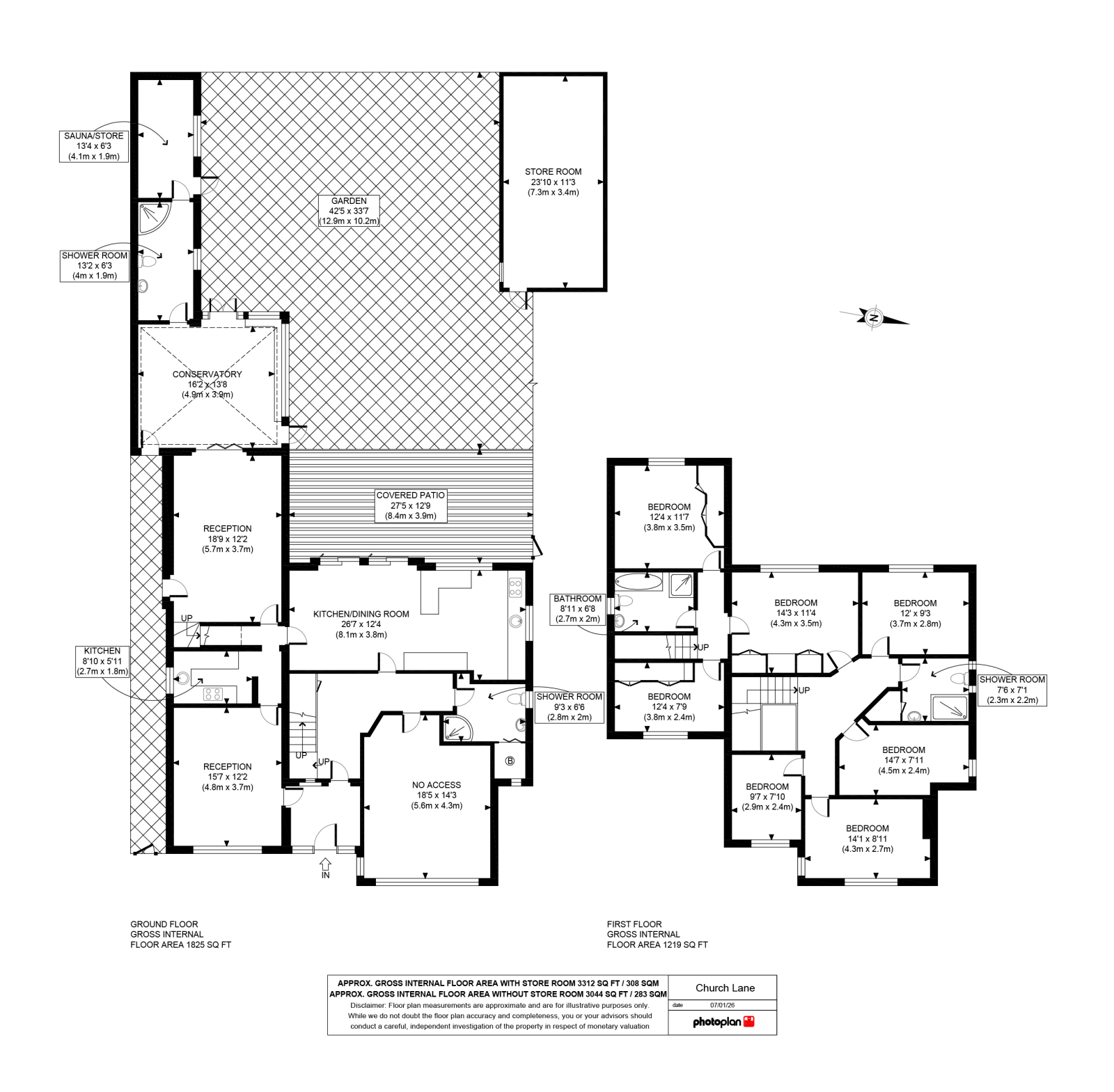
We are delighted to bring to the market this Property presented and exceptionally spacious 7-bedroom detached home, set within a highly desirable location.

The property is ideally positioned close to a wide range of local amenities, well-regarded schools, shops, and excellent public transport links, providing easy access to Central London, surrounding areas, and beyond. This home would be perfect for large or growing families seeking a forever home, or investors looking for a great develpment oppurtunity.

Offering approximately 3,000 sq ft of internal accommodation, the property presents significant development potential.

The neighbouring property has submitted a planning application for a new development comprising nine flats, highlighting the scope and desirability of the area.

 

This represents an excellent opportunity for investors and developers alike, subject to the necessary planning permissions.

 The property benefits from strong transport links, with Perivale Underground Station (Central Line) within a short walking distance, South Greenford Station approximately 0.5 miles away, and Greenford Station just over a mile away, offering direct and convenient access into Central London. The location is also ideally positioned close to the A40 (Western Avenue), providing excellent road connectivity in and out of the capital.

Important Information

  • This is a Freehold property.

Property Ref: 632118_homesearch_880971226

Share:

Similar Properties

Maple Grove, W5

5 Bedroom End of Terrace House | £910,000

NEW TO MARKET! 5-Bedroom Family Home with Driveway for 2 cars almost 1600 sq ft in South EalingLocated in the heart of S...

Netherbury Road , W5

3 Bedroom Terraced House | £899,950

NEW TO MARKET!! Charming 3-Bed Mid-Terrace with 43ft long Garden – Moments from South Ealing Station

Cottage Close, HA2

4 Bedroom End of Terrace House | Offers Over £850,000

NEW TO MARKET - Immaculate 4-Bedroom Home in Gated Development with Garden, Garage & Gym complex on site - Almost 2,000...

Robin Hood Lane, SW15

8 Bedroom Detached House | £3,000,000

Beautiful 8 Bedroom Detached Home in Kingston This is a fine example of a 4866SqFt 8 bedroom detached home (including o...

London, W4

3 Bedroom Terraced House | £3,280,000

Wavendon Avenue is a wide street in the centre of Chiswick, approx. 5 minutes walk from the high road, running east-west...

Homesearch (Ealing)

Ealing, London, W5 4QB

020 8560 0125

How much is your home worth?

Use our short form to request a valuation of your property.

Request a Valuation

Mortgage Calculator

Amount Borrowed: £
Total Amount Repayable: £
Total Monthly Payment: £
©2026 The Guild of Property Professionals. All rights reserved. Terms and Conditions | Privacy Policy | Cookie Policy | Complaints Policy | Members Login
The Guild of Property Professionals Trading Address: 121 Park Lane, London W1K 7AG. GPEA Limited. Registered in England & Wales.  Company No: 02819824.  Registered Office Address: 2 St. Stephen's Court, St. Stephen's Road, Bournemouth, Dorset, England, BH2 6LA.  VAT Registration No: 576 8795 61
Book a Property Valuation Update Cookies Preferences