Woodcroft Road, Marholm, Peterborough, PE6

Guide Price
£500,000
SSTC
This property listing is now SSTC

3 Bedroom Detached House for sale in Peterborough

3
  • Executive Detached Home
  • Feature Lounge
  • Fields to Front & Rear
  • Generous Sized Accommodation Throughout
  • Substantial landscaped Plot
  • Sought After village Location


SUMMARY
A Substantial and Extended Detached Character Bungalow with Countryside Views

DESCRIPTION
Marholm is a small rural village on the north-western edge of Peterborough, historically part of Northamptonshire but now within Cambridgeshire, sitting about three to four miles from the city centre.

Key landmarks include St Mary the Virgin Church, with Norman origins, and Marholm Farmhouse, dated 1633 but likely older. Much of the village forms a designated Conservation Area, preserving its traditional character, mature trees, and rural setting despite Peterborough's expansion. Today, Marholm remains a peaceful, picturesque village with a small population, a strong sense of heritage, and easy access to both countryside surroundings and the nearby city.

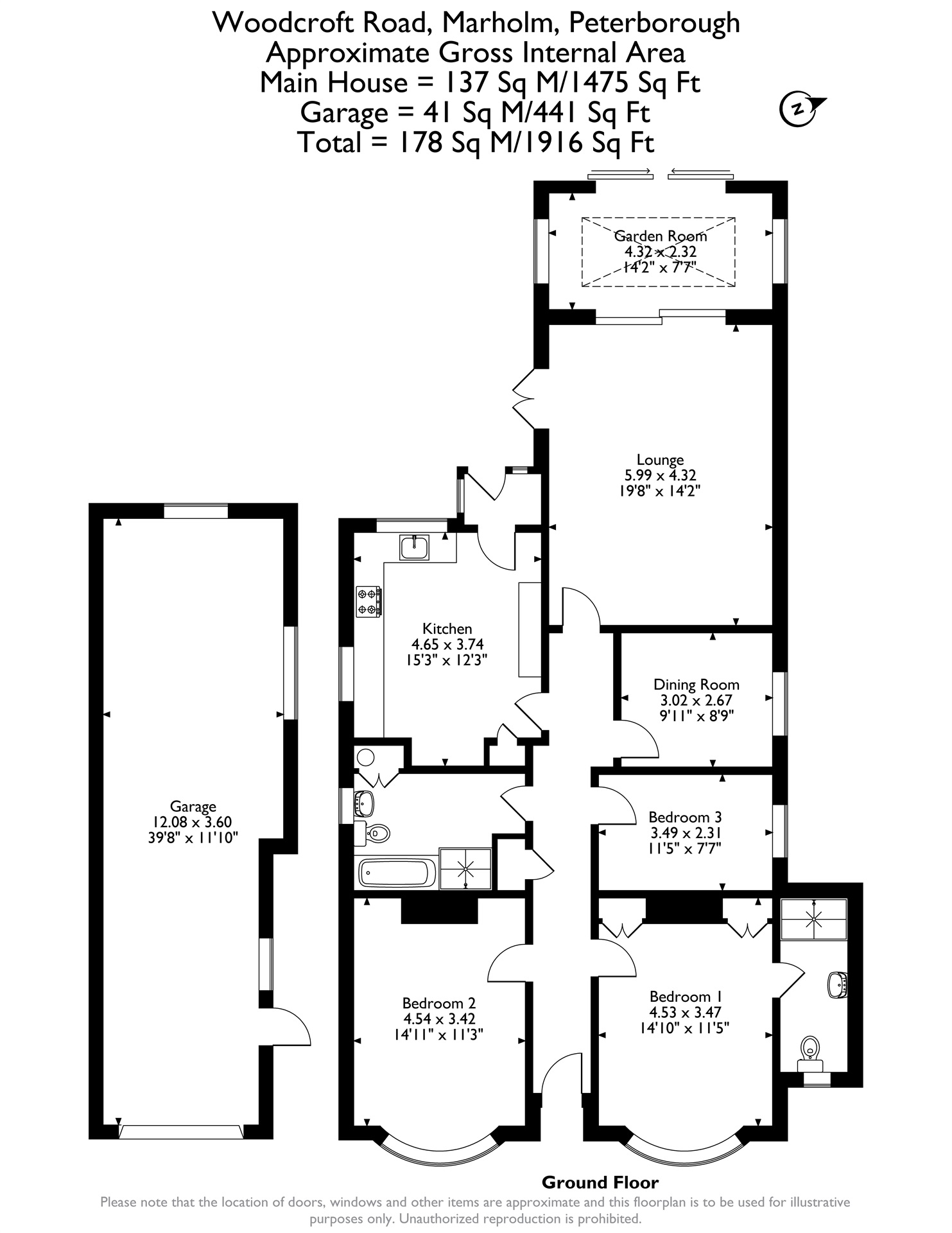
A substantial and beautifully extended detached character bungalow, it sits proudly on a generous plot overlooking the countryside with fields to both the front and rear of the property.

The property enjoys a tranquil setting amidst a picturesque mix of thatched and stone-built homes, offering a true sense of rural charm, yet is conveniently located just a 4 mile drive to Peterborough City Centre and railway station. Access to retail shopping, Doctor and Dental Surgeries are all within a 10 minute drive of the property.

Having been upgraded and thoughtfully improved by current owners, this home combines traditional character with modern comfort. The spacious accommodation includes a large Lounge ideal for family living and entertaining, leading into a bright garden room opening on to a raised decking- the perfect spot to enjoy the beautifully landscaped gardens and far-reaching views.

The quality re-fitted kitchen/breakfast room includes integrated appliances of fridge-freezer, 4 ring hob and double oven. The rear garden and decking area may also be accessed from the kitchen.

The accommodation offers 4 bedrooms. The Master Bedroom benefits from an en-suite shower room in addition there is a family bathroom. The 4th bedroom may be used as a dining room or home office offering flexibility.

The property offers generous off-road parking with block paved drive, leading to a double garage ( tandem) and rear garden.

The front and rear gardens are meticulously maintained, with a feature pond to the rear.

Set within this sought-after village surrounded by rolling countryside, Woodcroft Road is ideal for families or those seeking a peaceful lifestyle while retaining excellent access to local amenities and transport links.

Offered with no onward chain.
Council Tax Band: D Tenure: Unknown

1. MONEY LAUNDERING REGULATIONS: Intending purchasers will be asked to produce identification documentation at a later stage and we would ask for your co-operation in order that there will be no delay in agreeing the sale.
2. General: While we endeavour to make our sales particulars fair, accurate and reliable, they are only a general guide to the property and, accordingly, if there is any point which is of particular importance to you, please contact the office and we will be pleased to check the position for you, especially if you are contemplating travelling some distance to view the property.
3. Measurements: These approximate room sizes are only intended as general guidance. You must verify the dimensions carefully before ordering carpets or any built-in furniture.
4. Services: Please note we have not tested the services or any of the equipment or appliances in this property, accordingly we strongly advise prospective buyers to commission their own survey or service reports before finalising their offer to purchase.
5. THESE PARTICULARS ARE ISSUED IN GOOD FAITH BUT DO NOT CONSTITUTE REPRESENTATIONS OF FACT OR FORM PART OF ANY OFFER OR CONTRACT. THE MATTERS REFERRED TO IN THESE PARTICULARS SHOULD BE INDEPENDENTLY VERIFIED BY PROSPECTIVE BUYERS OR TENANTS. NEITHER SHARMAN QUINNEY NOR ANY OF ITS EMPLOYEES OR AGENTS HAS ANY AUTHORITY TO MAKE OR GIVE ANY REPRESENTATION OR WARRANTY WHATEVER IN RELATION TO THIS PROPERTY.

Important Information

  • This is a Freehold property.

Property Ref: HUC104295

Share:

Similar Properties

Huntsmans Gate, Bretton, Peterborough, PE3

5 Bedroom Detached House | Guide Price £500,000

A Stunning, Upgraded Executive Home in a Prime Location.

Holme Close, Ailsworth, Peterborough, PE5

4 Bedroom Detached House | £495,000

Detached four-bedroom family home in a quiet cul-de-sac location in the sought after twin villages of Ailsworth and Cast...

Halfleet, Market Deeping, Peterborough, PE6

5 Bedroom Detached House | £495,000

This substantially extended and upgraded bay-fronted character home offers deceptively spacious and highly flexible acco...

Lingwood Park, Peterborough, PE3

4 Bedroom Detached House | £515,000

Tucked away in a peaceful and highly sought-after cul-de-sac within LIngwood Park, Longthorpe, this beautifully presente...

Samworths Close, Castor, Peterborough, PE5

3 Bedroom Detached House | Guide Price £525,000

This 4 bedroom detached chalet style home offers huge potential situated on a substantial plot boasting a large rear gar...

Church Lane, Stibbington, Peterborough, PE8

3 Bedroom Detached House | £525,000

A delightful period refurbished stone built cottage set on a substantial plot.

Hurfords (Castor)

5 The Barns, Milton Lane, Castor, Peterborough, PE5 7DH

01733 380956

How much is your home worth?

Use our short form to request a valuation of your property.

Request a Valuation

Mortgage Calculator

Amount Borrowed: £
Total Amount Repayable: £
Total Monthly Payment: £
©2026 The Guild of Property Professionals. All rights reserved. Terms and Conditions | Privacy Policy | Cookie Policy | Complaints Policy | Members Login
The Guild of Property Professionals Trading Address: 121 Park Lane, London W1K 7AG. GPEA Limited. Registered in England & Wales.  Company No: 02819824.  Registered Office Address: 2 St. Stephen's Court, St. Stephen's Road, Bournemouth, Dorset, England, BH2 6LA.  VAT Registration No: 576 8795 61
Book a Property Valuation Update Cookies Preferences