Pilton, Nr Shepton Mallet

Guide Price
£699,000

3 Bedroom Detached House for sale in Pilton

2 3 2
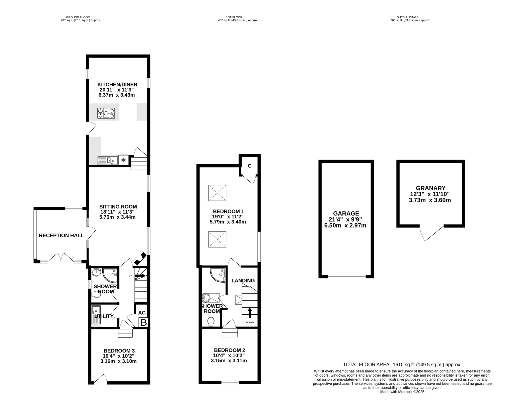
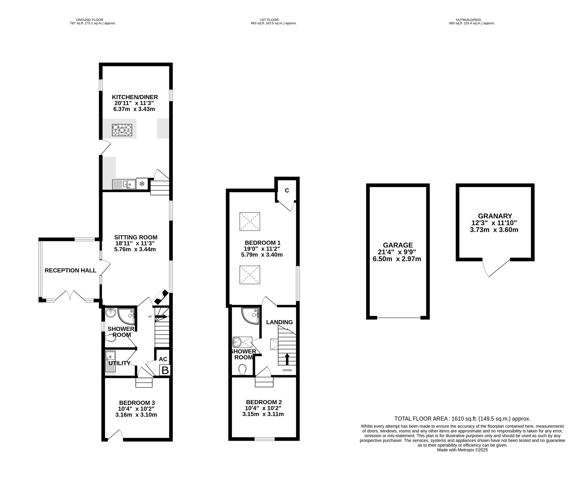
  • Reception hall overlooking the garden
  • Sitting room with oak floor and feature gas fired stove
  • Large dining kitchen with integrated appliances, vaulted ceiling and exposed beams with a double aspect
  • Utility room
  • Ground floor bedroom/reception and shower room
  • Two first floor bedrooms (one currently used as a study) and a further shower room
  • Single garage in a block (power light and roof storage), allocated parking and further parking available within the garden
  • Lovely garden extending to c.100' x 98 with a patio, original granary with power and light and store shed

A detached barn conversion within a select development of just 4 properties set on the edge of this popular Somerset village with lovely views and a west-facing garden. A truly idyllic position! Offered for sale with no onward chain.

Location

Directions
From Wells follow signs for Shepton Mallet A371. Upon reaching Shepton Mallet turn right at the mini roundabout and right again at the next roundabout following signs for Glastonbury. Follow this road for about 1.5 miles until reaching a T-junction. Go straight across and follow the road for 0.5 miles then turn left into East Town Lane just opposite the turning for Top Street. Follow along for c.0.5 miles and the property can be found on the right hand side with a for sale board displayed.

Material Information

Identity Verification
To ensure full compliance with current legal requirements, all buyers are required to verify their identity and risk status in line with anti-money laundering (AML) regulations before we can formally proceed with the sale. This process includes a series of checks covering identity verification, politically exposed person (PEP) screening, and AML risk assessment for each individual named as a purchaser. In addition, for best practice, we are required to obtain proof of funds and where necessary, to carry out checks on the source of funds being used for the purchase. These checks are mandatory and must be completed regardless of whether the purchase is mortgage-funded, cash, or part of a related transaction. A disbursement of £49 per individual (or £75 per director for limited company purchases) is payable to cover all aspects of this compliance process. This fee represents the full cost of conducting the required checks and verifications. You will receive a secure payment link and full instructions directly from our compliance partner, Guild365, who carry out these checks on our behalf.

Important Information

  • This is a Freehold property.
  • This Council Tax band for this property is: E

Property Ref: QHK439272

Share:

Similar Properties

Central Wells (Cul de sac position)

3 Bedroom Detached House | £680,000

A detached house built in 1930 with many features still retained. Set on a no through road in a conservation area in cen...

Chewton Mendip

4 Bedroom Character Property | £650,000

Set on the edge of the sought after village of Chewton Mendip is this 3/4 bedroom detached dormer bungalow with large do...

Wookey, Wells

4 Bedroom Detached House | £635,000

A four bedroom detached home in the sought after village of Wookey. It has been vastly improved by the present owners to...

North Road, Wells

5 Bedroom Detached House | £710,000

An extended detached house built in the 1950's with a deceptive amount of accommodation. Set in a popular road within ea...

Southover, WELLS

4 Bedroom Not Specified | £725,000

A stunning four double bedroom property with parking and garden in the popular location of Southover. Being extremely we...

Wookey Hole Road, Wells

7 Bedroom Detached House | £885,000

A substantial detached house set in a plot of c.0.5 acres with the added benefit of a detached annexe offering self-cont...

Holland & Odam (Wells)

Wells, Somerset, BA5 2AE

01749 671020

How much is your home worth?

Use our short form to request a valuation of your property.

Request a Valuation

Mortgage Calculator

Amount Borrowed: £
Total Amount Repayable: £
Total Monthly Payment: £
©2026 The Guild of Property Professionals. All rights reserved. Terms and Conditions | Privacy Policy | Cookie Policy | Complaints Policy | Members Login
The Guild of Property Professionals Trading Address: 121 Park Lane, London W1K 7AG. GPEA Limited. Registered in England & Wales.  Company No: 02819824.  Registered Office Address: 2 St. Stephen's Court, St. Stephen's Road, Bournemouth, Dorset, England, BH2 6LA.  VAT Registration No: 576 8795 61
Book a Property Valuation Update Cookies Preferences