The Avenue, Pinner, HA5

Guide Price
£775,000

3 Bedroom Semi-Detached House for sale in Pinner

2 3 1
  • Semi Detached
  • Three Bedrooms
  • Chain Free
  • Two Reception Rooms
  • Potential To Extend (STPP)
  • Driveway

A well-presented three-bedroom semi-detached home, offered to the market chain free, providing an excellent opportunity for families, first-time buyers, or investors.

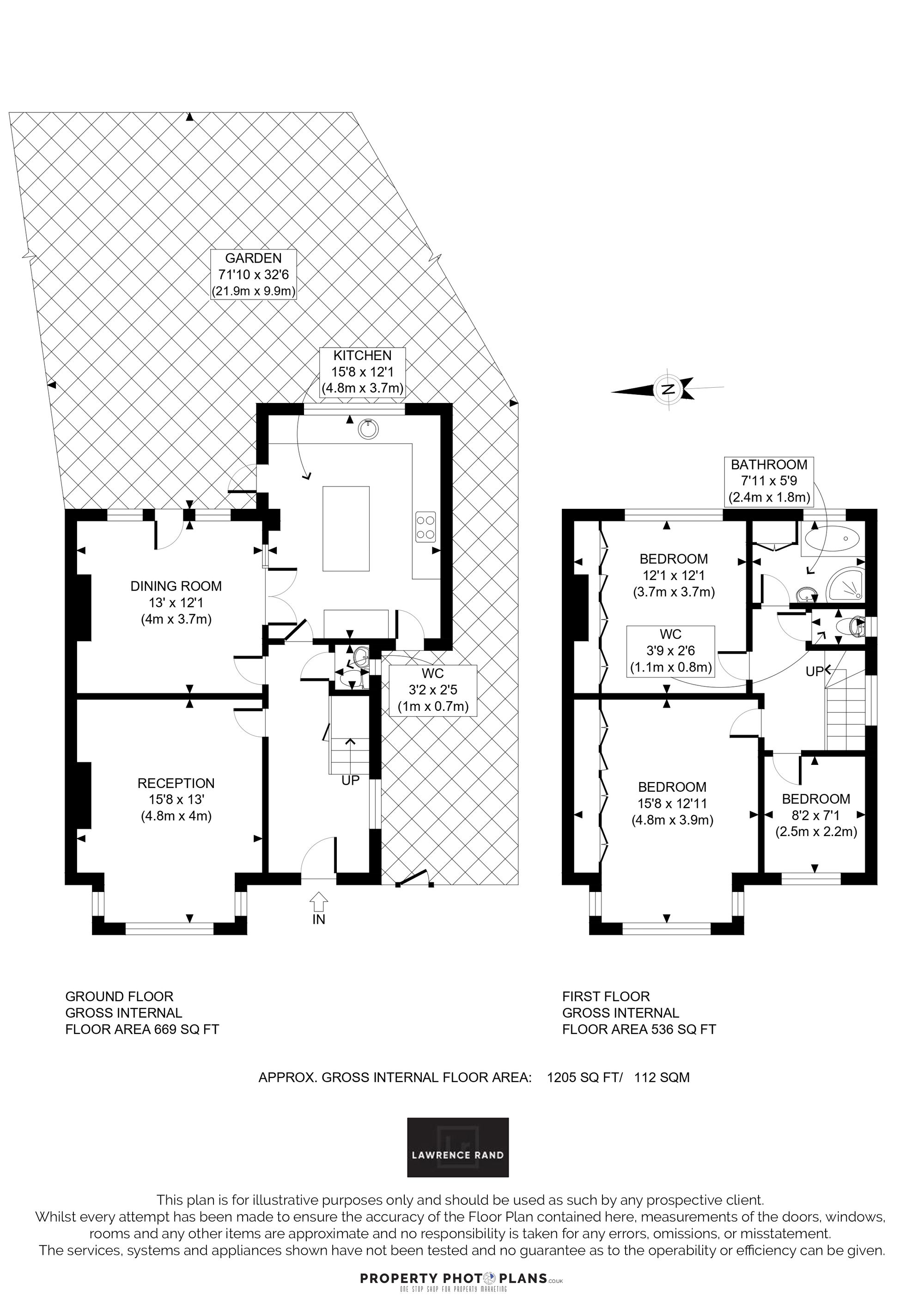
The property offers spacious and well-proportioned accommodation throughout. The ground floor comprises a welcoming entrance hallway leading to a bright and spacious reception room, ideal for relaxing or entertaining, along with a separate dining area and a fitted kitchen with access to the rear garden.

To the first floor are three good-sized bedrooms, including two generous doubles and a comfortable single bedroom, all served by a family bathroom.

Externally, the property benefits from a private rear garden, perfect for outdoor dining, gardening, or family use. To the front there is off-street parking and side access, with potential to extend subject to the usual planning permissions.

The property is situated in a highly sought-after residential area of Pinner, conveniently located close to local shops, restaurants, amenities, well-regarded schools, and excellent transport links, making it ideal for commuters and families alike.

Presented with care by Lawrence Rand –helping you find the place you’ll love to call home.

Verified Material Information:

Council Tax band: E

EPC Energy Efficiency Rating: E

Suppliers:

Electricity supply: Mains, Water supply: Mains water, Sewerage:

Mains

Heating: Gas central heating

Broadband & mobile coverage:

Broadband: FTTP (Fibre to the Premises)

Mobile coverage: O2 - Excellent, Vodafone -Excellent, Three - Excellent, EE - Excellent

Important Information

  • This is a Freehold property.
  • This Council Tax band for this property is: E
  • EPC Rating is E

Property Ref: 5536c8b5-7a18-4b32-8779-39809a10a4f3

Share:

Similar Properties

Jubilee Drive, Ruislip

5 Bedroom End of Terrace House | Asking Price £750,000

This stunning five-bedroom home is perfect for families seeking spacious living in a well-connected area. The property b...

Elm Avenue, Ruislip

3 Bedroom Detached Bungalow | Asking Price £750,000

We are pleased to offer this three/four bedroom detached bungalow offering a substantial amount of living space for the...

Keswick Gardens, Ruislip, HA4

3 Bedroom Not Specified | Offers in excess of £750,000

The property is 1.1 miles away from Ruislip High Street & Station (Metropolitan & Piccadilly Line) and 0.5 miles away fr...

Manor Way, Harrow, HA2

4 Bedroom Semi-Detached House | Guide Price £825,000

Southfield Park, Harrow, HA2

4 Bedroom Semi-Detached House | Guide Price £825,000

Cuckoo Hill, Pinner

3 Bedroom Semi-Detached House | Asking Price £825,000

This elegant 1920s period-built, locally listed three bedroom semi-detached cottage exudes charm and character. The well...

Lawrence Rand (Ruislip Manor)

Ruislip Manor, Middlesex, HA4 9BH

01895 632211

How much is your home worth?

Use our short form to request a valuation of your property.

Request a Valuation

Mortgage Calculator

Amount Borrowed: £
Total Amount Repayable: £
Total Monthly Payment: £
©2026 The Guild of Property Professionals. All rights reserved. Terms and Conditions | Privacy Policy | Cookie Policy | Complaints Policy | Members Login
The Guild of Property Professionals Trading Address: 121 Park Lane, London W1K 7AG. GPEA Limited. Registered in England & Wales.  Company No: 02819824.  Registered Office Address: 2 St. Stephen's Court, St. Stephen's Road, Bournemouth, Dorset, England, BH2 6LA.  VAT Registration No: 576 8795 61
Book a Property Valuation Update Cookies Preferences