Brookdene Road, Plumstead, SE18 1EW

Guide Price
£215,000
SSTC
This property listing is now SSTC

1 Bedroom Flat for sale in Plumstead

1 1 1
  • Victorian Conversion Flat
  • First Floor
  • One Double Bedroom
  • Gas Central Heating
  • Double Glazed
  • Close to Local Shops
  • Walking Distance to Plumstead Station
  • Lease 981 Years

Guide Price £215,000 - £225,000.
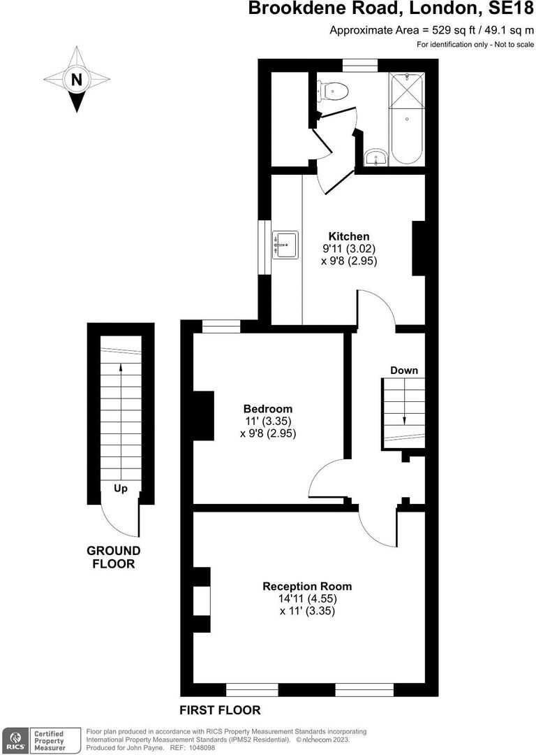
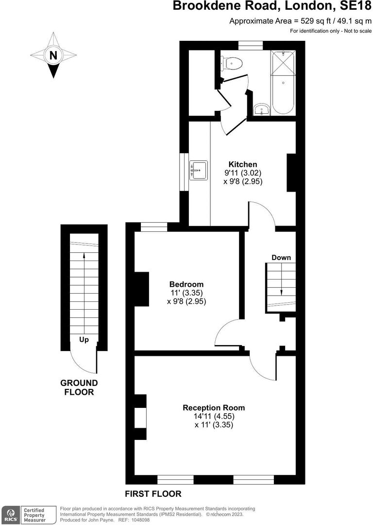
On offer is a beautifully presented one-bedroom flat situated on the first floor of a Victorian conversion, a property that also benefits from holding the freehold interest for the entire building. This flat is ideally located for easy access to local shops, bus routes, and Plumstead mainline station, making it perfect for commuters or anyone seeking convenience within a vibrant community.
The interior of the flat is presented to a high standard, featuring a bright and airy 14ft lounge with double glazed windows to the front. These large windows ensure the room is bathed in natural light, enhancing the overall feel of space and comfort. The kitchen is well-fitted with modern amenities including a built-in oven, hob, and filter hood, alongside space for additional appliances. The bedroom is a comfortable double, boasting fitted carpets and a serene atmosphere for relaxation. Completing this appealing flat is a modern, fully tiled three-piece bathroom suite equipped with a shower above the bath.
Key additional benefits of this flat include gas central heating and double glazing throughout, ensuring a warm and energy-efficient living space. Free street parking and an intercom entry system add layers of convenience and security.
This flat represents an excellent opportunity, whether as a first-time purchase or a buy-to-let investment. Early viewing is highly recommended to fully appreciate the quality and potential of this delightful property. Contact us today to schedule your internal viewing and take the first step towards owning a piece of Victorian charm mixed with modern living.

Property Ref: 514475_10609771

Share:

Similar Properties

Lancaster House, Gunyard Mews, Woolwooh Common, SE18

2 Bedroom Apartment | Offers in excess of £200,000

HI Residential is pleased to present this well-maintained two-bedroom ground floor apartment, ideally located in a moder...

Acworth House, Barnfield Road, London, SE18

2 Bedroom Flat | £200,000

HI Residential is pleased to present this well-located 2/3 bedroom first floor purpose-built flat, situated within a 10–...

Defence Close, West Thamesmead, SE28 0NQ

1 Bedroom Apartment | £200,000

PUBLIC NOTICE - Flat 36 (First Floor Flat), Hill House, Defence Close, SE28 0NQ - We have received an offer of £200,000....

Barnfield Gardens , Plumstead Common Road, Plumstead, SE18

3 Bedroom Flat | £220,000

This well-situated first-floor apartment in a purpose-built block offers convenient access to local amenities, making it...

Walmer Terrace, Woolwich, SE18

2 Bedroom Flat | £220,000

HI Residential is delighted to present this fully refurbished two double bedroom ground floor flat, ideally located with...

Ruddstreet Close, Woolwich, SE18

1 Bedroom Flat | Guide Price £220,000

We are delighted to present this well-proportioned one double bedroom flat, ideally located for easy access to Woolwich...

hi-residential (Plumstead)

Plumstead, London, SE18 3TN

020 8316 6616

How much is your home worth?

Use our short form to request a valuation of your property.

Request a Valuation

Mortgage Calculator

Amount Borrowed: £
Total Amount Repayable: £
Total Monthly Payment: £
©2025 The Guild of Property Professionals. All rights reserved. Terms and Conditions | Privacy Policy | Cookie Policy | Complaints Policy | Members Login
The Guild of Property Professionals Trading Address: 121 Park Lane, London W1K 7AG. GPEA Limited. Registered in England & Wales.  Company No: 02819824.  Registered Office Address: 2 St. Stephen's Court, St. Stephen's Road, Bournemouth, Dorset, England, BH2 6LA.  VAT Registration No: 576 8795 61
Book a Property Valuation Update Cookies Preferences