Piedmont Road, Plumstead, London, SE18

£230,000
SSTC
This property listing is now SSTC

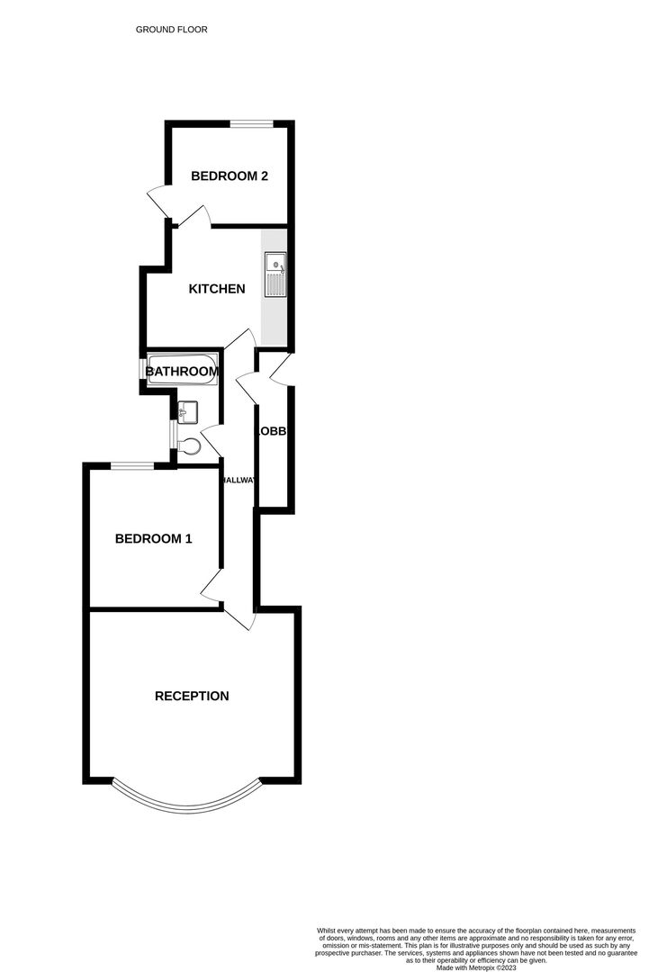
2 Bedroom Flat for sale in Plumstead

1 2 1
  • Victorian Conversion Flat
  • Ground Floor
  • Two Double Bedroom
  • Gas Central Heating
  • Double Glazed
  • Close to Railway Station
  • Close to Local Shops
  • Private Garden

Victorian Charm Meets Modern Potential: 2 Bedroom Ground Floor Flat near Plumstead Station
CASH BUYERS ONLY. Seize the opportunity to craft your dream home with this two-bedroom ground floor flat, set within a Victorian conversion and brimming with potential. Located ideally close to Plumstead Railway Station and the conveniences of Lakedale Road shops, this property is a blank canvas for those looking to infuse a home with their personal touch.
Upon entering, you are greeted by an entrance hall that leads you into the heart of this home. The lounge area awaits your vision to transform it into a cozy and welcoming space for relaxation and socializing. Adjacent to the lounge, the kitchen space offers endless possibilities for a modern redesign, perfect for those who love to cook and entertain.
The flat features two bedrooms, each presenting a unique opportunity to create comfortable and personalized sleeping quarters. The bathroom, also in need of modernization, has the potential to be turned into a stylish and functional space.
Step outside to discover the private garden at the rear of the property. This outdoor space is a rare find in a ground floor flat and offers a serene retreat or a blank canvas for gardening enthusiasts.
Additional benefits of this property include gas central heating, ensuring a warm living environment during the colder months.
This flat is more than just a residence; it's an opportunity for renovation enthusiasts or first-time buyers looking to step onto the property ladder. Its prime location near key transport links and local amenities adds to its appeal.
Viewing is essential to fully appreciate the potential this Victorian conversion flat offers. With vision and creativity, it can be transformed into a stunning and bespoke modern home.

Property Ref: 514475_10609807

Share:

Similar Properties

Barracouta House, 1 Black Prince Street, Plumstead, Kent, SE18

1 Bedroom Apartment | £230,000

HI Residential is pleased to present this generously proportioned one-bedroom first-floor apartment, set within a well-m...

Wellington Street, Woolwich, SE18 6QB

1 Bedroom Flat | £230,000

This recently refurbished one-bedroom ex-local flat is set on the first floor on Wellington Street, in the heart of Wool...

Mineral Street, Plumstead, London, SE18 1 QR

1 Bedroom Flat | £230,000

This well-proportioned one-bedroom first-floor flat is ideally situated just off Plumstead High Street, benefiting from...

Defence Close, West Thamesmead, SE28 0NQ

2 Bedroom Apartment | Guide Price £240,000

Guide £240,000 - £260,000 Discover the perfect blend of comfort, convenience, and riverside living with this beautifully...

Flat 4 Confidence House, Manthorp Road, London, SE18

1 Bedroom Flat | Guide Price £240,000

Welcome to this delightful 1-bedroom modern apartment, perfectly situated in an ideal location just a short stroll away...

Paradise Path Birchdene Drive, Central Thamesmead, SE28

2 Bedroom Flat | £255,000

Guide Price £255,000 - £265,000. HI Residential is pleased to offer this spacious and well-maintained two-bedroom purpos...

hi-residential (Plumstead)

Plumstead, London, SE18 3TN

020 8316 6616

How much is your home worth?

Use our short form to request a valuation of your property.

Request a Valuation

Mortgage Calculator

Amount Borrowed: £
Total Amount Repayable: £
Total Monthly Payment: £
©2025 The Guild of Property Professionals. All rights reserved. Terms and Conditions | Privacy Policy | Cookie Policy | Complaints Policy | Members Login
The Guild of Property Professionals Trading Address: 121 Park Lane, London W1K 7AG. GPEA Limited. Registered in England & Wales.  Company No: 02819824.  Registered Office Address: 2 St. Stephen's Court, St. Stephen's Road, Bournemouth, Dorset, England, BH2 6LA.  VAT Registration No: 576 8795 61
Book a Property Valuation Update Cookies Preferences