Eglinton Road, Plumstead, London, SE18

£400,000
SSTC
This property listing is now SSTC

4 Bedroom Semi-Detached House for sale in Plumstead

2 4 2
  • Semi-Detached Victorian House
  • Currently 2 Flats
  • Close to Herbert Road Shopping Amenities
  • Close to Woolwich Rail Links
  • In Need of Modernisation
  • Private Garden
  • Cash Buyers Only
  • Early Viewing Recommended

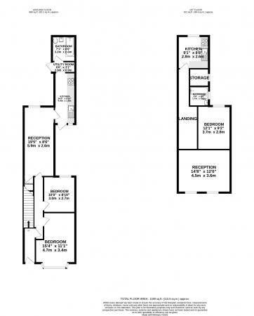
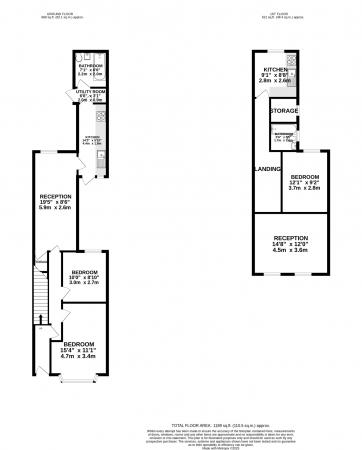
Guide Price £400,000 - £425,000. HI Residential is delighted to present this expansive four-bedroom Victorian semi-detached residence, perfectly positioned just moments from the vibrant shops of Herbert Road and within easy walking distance of Woolwich's rail links, including the Elizabeth Line, DLR, and National Rail services.
Spanning over two floors, the property is currently configured as two self-contained flats: a generous two-bedroom flat on the ground floor, complete with a reception room, kitchen, two bedrooms, and a bathroom; and a spacious one-bedroom flat on the first floor, arranged with its own reception, kitchen, bedroom, and bathroom. Although this layout was established over 20 years ago, it lacks formal planning consent, making this a compelling renovation project or development opportunity—perfect for buyers or investors looking to explore conversion possibilities, subject to necessary permissions.
Throughout, the accommodation awaits complete modernisation, offering a clean slate to reimagine each space. The property also benefits from a private rear garden—ideal for outdoor lounging or future landscaping.
This substantial Victorian gem offers more than just internal space; it's set amid an area rich in heritage and green charm. Herbert Road features handsome late–Victorian terraces constructed in traditional yellow stock brick, many of which retain decorative details such as sash windows, slate roofs, and ornate corbels.
It lies at the northern slopes of Shooters Hill—one of London's highest elevations—close to significant landmarks like the Royal Herbert Hospital (now the Royal Herbert Pavilions), originally built in 1865 to serve Crimean War veterans under Florence Nightingale's influence
Families will appreciate the proximity to several well-regarded schools: Eglinton Primary (just 118 yards away, currently rated “Requires Improvement”), Notre Dame Catholic Primary (a “Good” school on Herbert Road), Plumcroft Primary (“Good”), Nightingale Primary (“Good”), and St Margaret's C of E Primary (“Good”). Secondary and further education options include the Outstanding-rated Ark Greenwich Free School and the highly respected Shooters Hill Sixth Form College, housed in buildings dating back to the former Woolwich County School site of 1928–35
Transport connections couldn't be more convenient. Woolwich Arsenal station is within walking distance, offering rapid services across the Elizabeth Line into the City and West End, connections to the DLR, and Southeastern National Rail services. Plumstead station also sits nearby, expanding rail flexibility. Bus routes such as the 244, 386, 89, 122, 161, B16, and N89 run close by, ensuring smooth local travel and superb access to Canary Wharf, Greenwich, Eltham, and beyond .
Adjacent green spaces enrich the area's appeal: Woolwich Common stretches up the northern slope of Shooters Hill and connects directly to Oxleas Wood, Shrewsbury Park, and Eaglesfield Park—ancient woodland, parkland, and walking trails seamlessly extending from the doorstep
Offered with no onward chain and exclusively suitable for cash buyers, this property represents a rare opportunity. Whether you're an investor seeking a renovation project, a developer eyeing planning permission, or a homeowner intent on crafting a bespoke family residence, this Victorian semi offers size, scope, and scope to create a truly bespoke home in an area steeped in history, education, greenery, and connectivity. Contact HI Residential today to explore this unique canvas for transformation.

Property Ref: 514475_S_10611049

Share:

Similar Properties

Goosander Way, West Thamesmead, SE28

3 Bedroom End of Terrace House | Guide Price £400,000

We are delighted to present this well-proportioned three bedroom end-of-terrace modern home, ideally located in the soug...

Swetenham Walk, Plumstead, SE18

3 Bedroom Terraced House | £400,000

HI Residential is delighted to present this generously sized three-bedroom freehold house, offering well-balanced living...

Melling Street, Plumstead Common, SE18

2 Bedroom Terraced House | £400,000

HI Residential is delighted to present this characterful two-bedroom mid-terraced Victorian home, ideally located just m...

Naval House 6 Victory Parade, London, SE18

2 Bedroom Apartment | £425,000

Located just above the Elizabeth line in the ever-popular Woolwich Arsenal, this spacious and well-maintained two-bedroo...

Rutherglen Road, Abbey Wood, SE2

3 Bedroom Semi-Detached House | Guide Price £425,000

Guide Price£425,000 - £450,000. Situated in a sought-after area of Abbey Wood, close to Welling, this delightful three-b...

18A Brookhill Road, Woolwich

3 Bedroom Maisonette | £425,000

A beautifully refurbished Three-bedroom Victorian maisonette with en suite shower rooms for sale on the sought-after Bro...

hi-residential (Plumstead)

Plumstead, London, SE18 3TN

020 8316 6616

How much is your home worth?

Use our short form to request a valuation of your property.

Request a Valuation

Mortgage Calculator

Amount Borrowed: £
Total Amount Repayable: £
Total Monthly Payment: £
©2025 The Guild of Property Professionals. All rights reserved. Terms and Conditions | Privacy Policy | Cookie Policy | Complaints Policy | Members Login
The Guild of Property Professionals Trading Address: 121 Park Lane, London W1K 7AG. GPEA Limited. Registered in England & Wales.  Company No: 02819824.  Registered Office Address: 2 St. Stephen's Court, St. Stephen's Road, Bournemouth, Dorset, England, BH2 6LA.  VAT Registration No: 576 8795 61
Book a Property Valuation Update Cookies Preferences