Plumstead High Street, Plumsteasd, London, SE18

Guide Price
£575,000
SSTC
This property listing is now SSTC

6 Bedroom Town House for sale in Plumsteasd

1 6 2
  • Victorian Town House
  • Five Bedrooms
  • Two Bathrooms
  • Large Kitchen/Diner
  • Gas Central Heating
  • Double Glazed
  • Arranged over 3 Floors
  • Close to Station & Shops

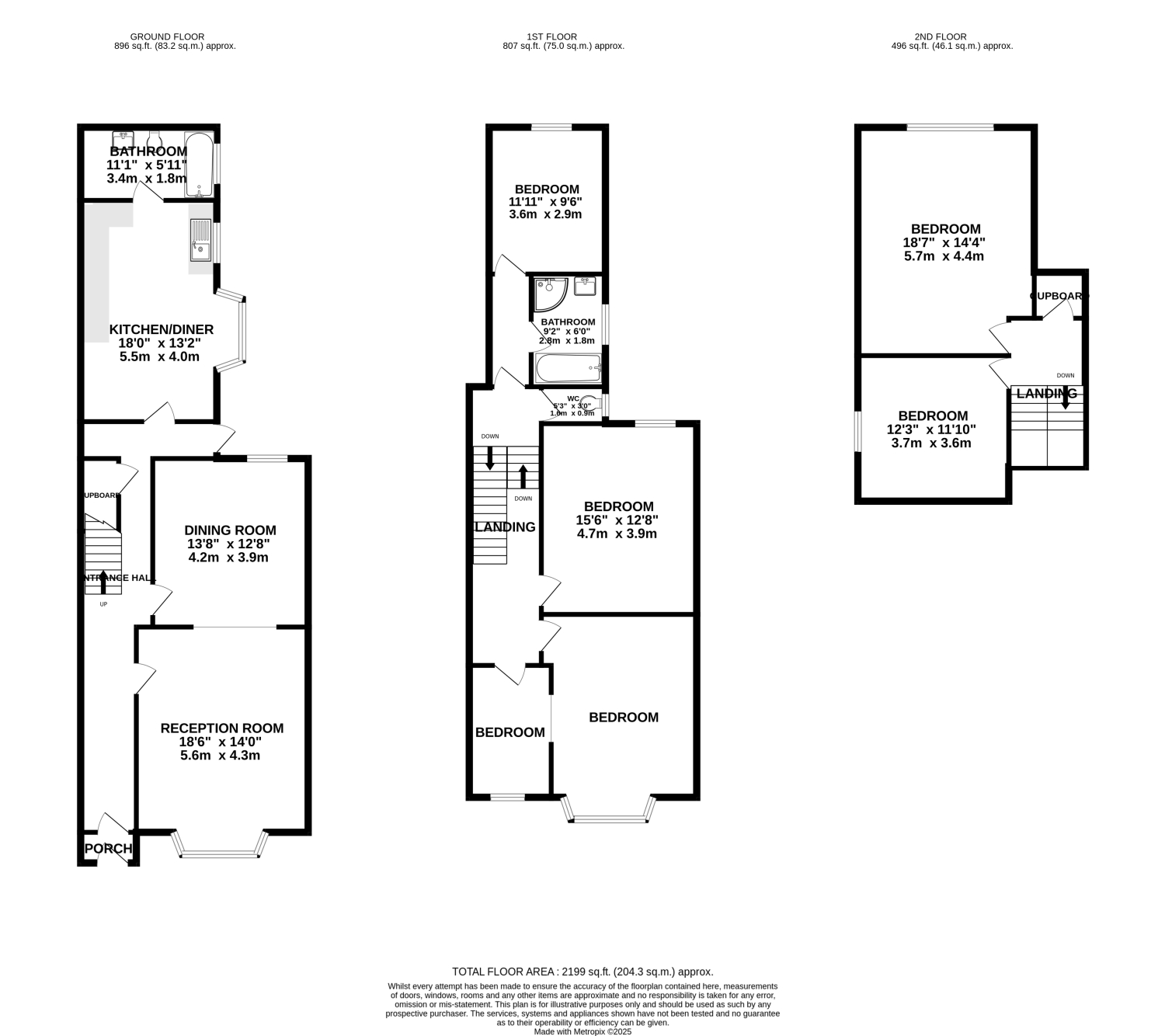
HI Residential is delighted to present this substantial six-bedroom Victorian end of terrace house, ideally located in the heart of Plumstead and just a short distance from Plumstead Station and excellent local bus routes.
Offering generous accommodation set across three levels, the property is perfect for large families or buyers seeking ample space with period charm. The ground floor comprises a welcoming entrance hall, a spacious 30ft through lounge ideal for entertaining, and a bright kitchen/diner with direct access to the rear garden which is arranged over 3 levels and also having an outhouse. A well-sized bathroom completes the ground floor.
The first floor offers three good-sized bedrooms, a second bathroom, and a separate WC, providing convenience for busy households. On the top floor, you'll find two further bedrooms, offering flexibility for use as additional bedrooms, a home office, or hobby spaces.
Externally, the property benefits from a private rear garden—ideal for outdoor relaxation or entertaining.
This impressive home combines traditional Victorian features with outstanding space and convenience, all just moments from local transport links and amenities. Early viewing is highly recommended. Contact HI Residential today to arrange your appointment.

Property Ref: S_10611132

Share:

Similar Properties

Plumstead Common Road, Plumstead, SE18 2RT

4 Bedroom Terraced House | £575,000

Nestled in one of the most sought-after locations, this delightful Victorian terrace house boasts a prime position overl...

Thalia House, 4 Thunderer Walk, Royal Arsenal, SE18

3 Bedroom Apartment | £565,000

Set within the highly sought-after Royal Arsenal Riverside development, this modern, bright, and spacious three-bedroom,...

Moordown, Shooters Hill, SE18

4 Bedroom End of Terrace House | £550,000

HI Residential is delighted to present this beautifully maintained four-bedroom terraced house, perfectly located in a q...

1 Waldstock Road, Central Thamesmead

4 Bedroom Detached House | £585,000

This well-presented three-bedroom detached house, offering just under 100 sqm of living space, is ideally located on Wal...

Imperial Building, 2 Duke Of Wellington Avenue, Royal Arsenal, London, SE18

3 Bedroom Apartment | Guide Price £595,000

Guide Price £595,000 – £620,000 | Exceptional Three-Bedroom Ground Floor Apartment with Wrap-Around Terrace – Royal Arse...

Vernham Road, Plumstead, SE18 3EY

4 Bedroom House | Guide Price £600,000

Guide Price £600,000 - £625,000. Hi Residential are delighted to offer this rare opportunity to acquire a spacious four...

hi-residential (Plumstead)

Plumstead, London, SE18 3TN

020 8316 6616

How much is your home worth?

Use our short form to request a valuation of your property.

Request a Valuation

Mortgage Calculator

Amount Borrowed: £
Total Amount Repayable: £
Total Monthly Payment: £
©2026 The Guild of Property Professionals. All rights reserved. Terms and Conditions | Privacy Policy | Cookie Policy | Complaints Policy | Members Login
The Guild of Property Professionals Trading Address: 121 Park Lane, London W1K 7AG. GPEA Limited. Registered in England & Wales.  Company No: 02819824.  Registered Office Address: 2 St. Stephen's Court, St. Stephen's Road, Bournemouth, Dorset, England, BH2 6LA.  VAT Registration No: 576 8795 61
Book a Property Valuation Update Cookies Preferences