Plympton, Plymouth

£325,000
SSTC
This property listing is now SSTC

4 Bedroom Semi-Detached House for sale in Plymouth

2 4 2
  • Extended semi-detached house
  • Lounge
  • Kitchen/diner
  • Utility/snug
  • 4 bedrooms
  • Bathroom & additional shower room
  • Front & rear gardens
  • Close to local amenities
  • On a main bus route
  • Cul-de-sac location

Extended family home located in the popular Chaddlewood area, with accommodation briefly comprising an entrance porch, lounge, kitchen/diner & utility/snug whilst upstairs there are 4 good-sized bedrooms, a bathroom & an additional shower room. To the front of the property there is a small garden with an enclosed, sunny, spacious garden to the rear. The property is conveniently located with access to good local schools.

Wellfield Close, Plympton, Plymouth Pl7 2Gy -

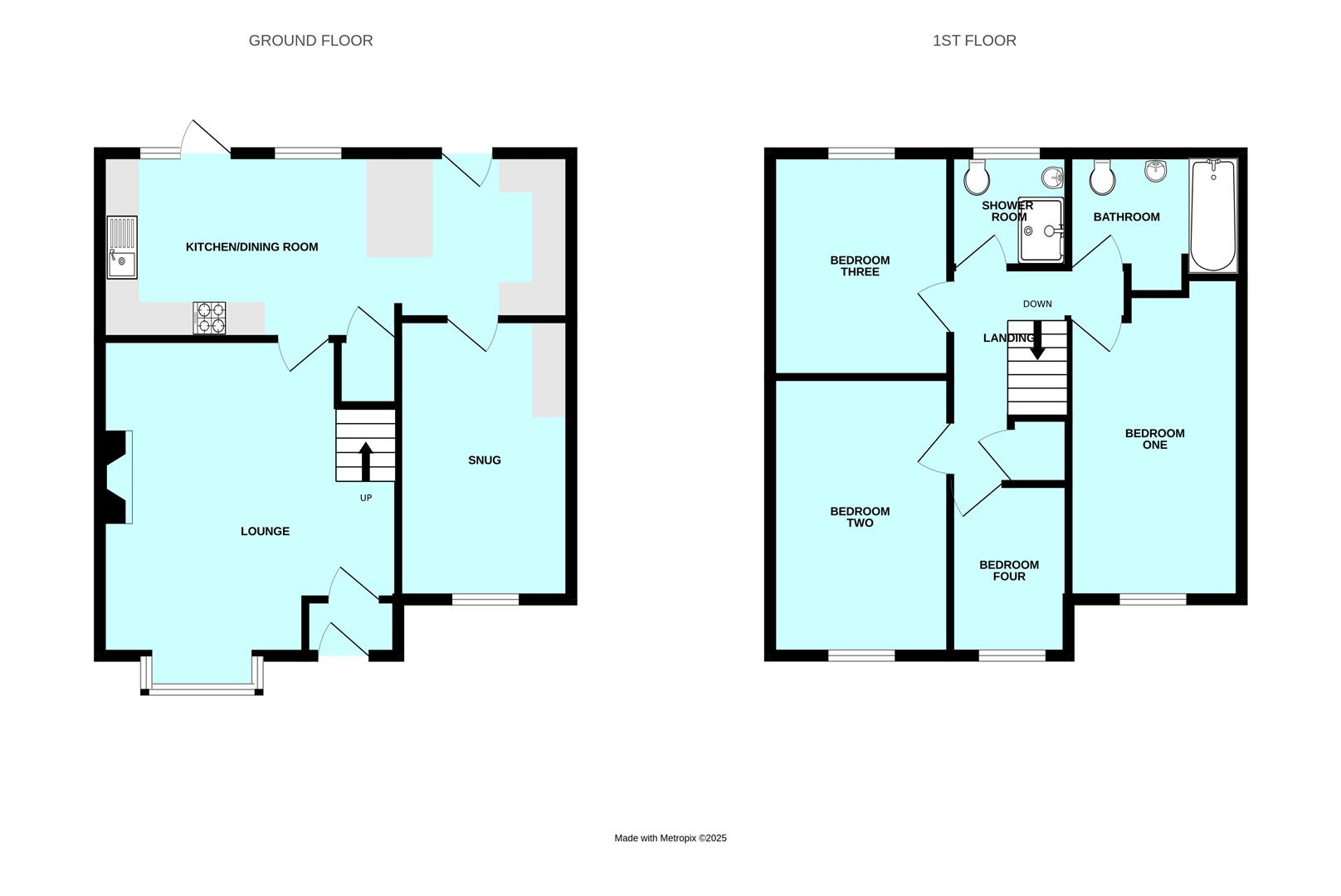
Accommodation - Wooden door, with inset obscured glass, opening into the entrance porch.

Entrance Porch - 1.25 x 1.08 (4'1" x 3'6") - Wooden door, with inset glass panelling, opening into the lounge.

Lounge - 4.78 x 4.48 (15'8" x 14'8") - uPVC double-glazed bay window to the front elevation. Stairs ascending to the first floor landing. Door opening into the kitchen/diner.

Kitchen/Diner - 7.38 x 2.80 (24'2" x 9'2") - The kitchen is fitted with a range of base and wall-mounted units incorporating a square-edged laminate marble-effect worktop and an inset 4-burner gas hob with extractor over. Inset one-&-a-half bowl composite sink unit with mixer tap. Integral oven, fridge, freezer and dishwasher. Space for washing machine. Separate breakfast bar with additional storage cupboards. Door opening into the utility/snug. 2 uPVC double-glazed doors opening to the garden - one from the kitchen and the other from the dining area. 2 uPVC double-glazed windows to the rear elevation.

Utility/Snug - 4.35 x 2.63 (14'3" x 8'7") - Wall-mounted unit. Marble-effect laminate square-edged worktop with space for tumble dryer and an additional under-counter fridge or freezer. uPVC double-glazed window to the front elevation.

First Floor Landing - 3.47 x1.82 (11'4" x5'11") - Doors providing access to the first floor accommodation. Storage cupboard. Drop-down loft access hatch.

Bedroom One - 4.39 x 2.59 (14'4" x 8'5") - uPVC double-glazed window to the front elevation.

Bedroom Two - 4.18 x 2.56 (13'8" x 8'4") - uPVC double-glazed window to the front elevation.

Bedroom Three - 3.44 x 2.56 (11'3" x 8'4") - uPVC double-glazed window to the rear elevation.

Bedroom Four - 2.37 x 1.83 (7'9" x 6'0") - uPVC double-glazed window to the front elevation.

Shower Room - 1.71 x 1.66 (5'7" x 5'5") - Matching suite comprising corner shower unit with mains-fed waterfall shower, pedestal wash handbasin with mixer tap and low-level wc. Chrome heated towel rail. Extractor. Obscured uPVC double-glazed window to the rear elevation.

Bathroom - 2.57 x 2.07 (8'5" x 6'9") - Matching suite comprising a panelled bath with mixer tap and waterfall shower attachment, pedestal wash handbasin with mixer tap and low-level wc. Chrome heated towel rail. Extractor. Obscured uPVC double-glazed window to the rear elevation.

Outside - The property is approached via a slabbed walkway, bordered by an area to lawn and a further slabbed area. A wooden gate to the side provides access to the rear garden which is fully-enclosed, with a sunny aspect. The lower level is laid to patio and the upper level is laid to lawn with a raised, decked seating area - perfect for children and for entertaining.

Council Tax Pcc - Plymouth City Council
Council Tax Band:

Services - The property is connected to all the mains services: gas, electricity, water and drainage.

What3words - ///shirts.hopes.twin

Property Ref: 11002701_34294023

Share:

Similar Properties

Plympton, Plymouth

2 Bedroom Detached Bungalow | £325,000

Recently renovated detached bungalow situated on a generous plot in a quiet cul-de-sac in the Wolverwood area of Plympto...

Plympton, Plymouth

3 Bedroom Semi-Detached House | Offers Over £325,000

Situated in the popular Woodford area, with a primary & junior school & a park within easy walking distance, this proper...

Plympton, Plymouth

2 Bedroom Detached House | £325,000

Built to an extremely high specification by a respected builder, Julian Marks is delighted to present this substantial n...

Plympton, Plymouth

3 Bedroom Detached House | £330,000

Charming, unique character property located in the heart of Plympton. The accommodation briefly comprises an entrance po...

Grassmere Way, Pillmere, Saltash

4 Bedroom Detached House | £360,000

Tucked away in an enclave of 4 properties is this modern detached family home with garage & driveway. The accommodation...

Plympton, Plymouth

4 Bedroom Detached House | £360,000

An executive detached family home situated in a cul-de-sac in Plympton. The accommodation briefly comprises lounge, stud...

Julian Marks Estate Agents (Plympton)

Plympton, Plymouth, PL7 2AA

01752 301002

How much is your home worth?

Use our short form to request a valuation of your property.

Request a Valuation

Mortgage Calculator

Amount Borrowed: £
Total Amount Repayable: £
Total Monthly Payment: £
©2026 The Guild of Property Professionals. All rights reserved. Terms and Conditions | Privacy Policy | Cookie Policy | Complaints Policy | Members Login
The Guild of Property Professionals Trading Address: 121 Park Lane, London W1K 7AG. GPEA Limited. Registered in England & Wales.  Company No: 02819824.  Registered Office Address: 2 St. Stephen's Court, St. Stephen's Road, Bournemouth, Dorset, England, BH2 6LA.  VAT Registration No: 576 8795 61
Book a Property Valuation Update Cookies Preferences