Plymstock, Plymouth

£435,000
SSTC
This property listing is now SSTC

4 Bedroom Detached House for sale in Plymouth

3 4 1
  • Older-style detached house
  • Well-presented spacious accommodation throughout
  • Entrance vestibule & hallway
  • Lounge & separate dining room
  • Fitted kitchen & separate utility
  • Additional sitting room/bedroom five with ensuite wc
  • 4 first floor double bedrooms & bathroom
  • Paved driveway providing parking & garage
  • Gardens
  • Double-glazing & central heating

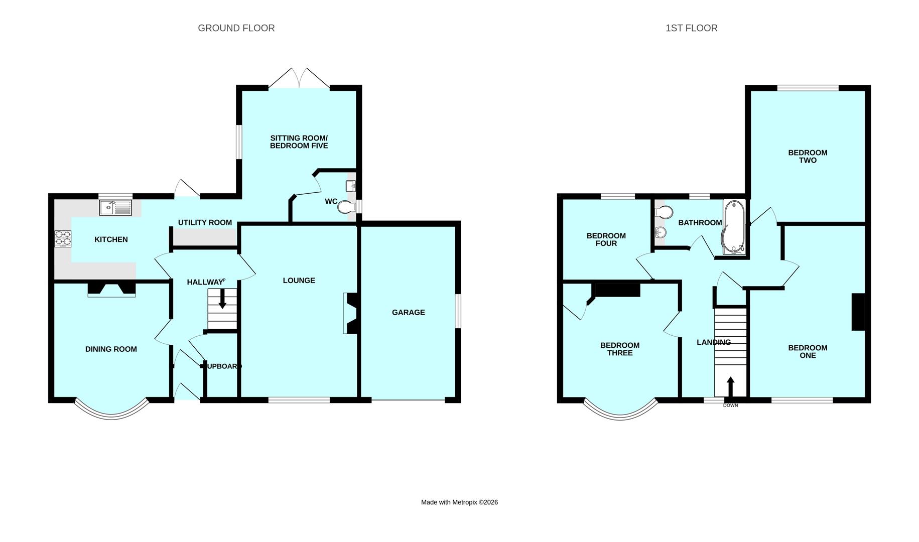
Superbly-presented older-style detached family home with accommodation briefly comprising an entrance vestibule & hallway, lounge, separate dining room with bay window, fitted kitchen & separate utility room. There is an additional sitting room with ensuite wc, which could be used as a ground floor 5th bedroom. On the first floor a landing provides access to the 4 double bedrooms & bathroom. Other features include a paved driveway providing ample off-road parking plus garage and, to the rear, a garden laid to lawn and patio. The property has double-glazing & central heating.

Pomphlett Road, Plymstock, Pl9 7Bu -

Accommodation -

Entrance Vestibule - Leading to the hallway.

Hallway - 3.81m x 2.03m (12'6 x 6'8) - Providing access to the ground floor accommodation. Staircase ascending to the first floor. Under-stairs cupboards.

Lounge - 5.13m x 3.61m (16'10 x 11'10) - Window with fitted blind to the front elevation. Chimney breast with fireplace incorporating a wood burner set onto a slate hearth. Coved ceiling.

Dining Room - 3.63m x 3.48m (11'11 x 11'5) - Bay window with fitted blind to the front elevation. Chimney breast with an inset 'flame-effect' gas fire with remote control. Coved ceiling.

Kitchen - 3.45m x 2.54m (11'4 x 8'4) - Nicely-fitted with a range of base and wall-mounted cabinets with matching fascias and polished granite work surfaces with matching splash-backs. Inset stainless-steel sink with a work-top mounted mixer tap plus a rinsing tap. Inset NEFF hob with a NEFF cooker hood above. Built-in NEFF double oven and grill plus microwave. Integral fridge and freezer. Integral slimline dishwasher. Inset ceiling spotlights. Window to the rear elevation overlooking the garden.

Utility Room - 2.01m x 1.45m (6'7 x 4'9) - Matching cabinets and granite work surfaces. Space for 3 appliances beneath the work surface. Plumbing provided for a washing machine. Door leading to outside.

Sitting Room/Optional Bedroom Five - 3.99m x 3.40m (13'1 x 11'2) - A dual aspect room with a window to the side elevation and French doors to the rear opening onto a timber deck providing lovely views over the garden. Doorway opening to the ensuite wc.

Ensuite Wc - 1.83m x 1.47m (6' x 4'10) - Fitted with a wc with a push-button flush and basin set into a cabinet providing storage and concealing the cistern. Partly-tiled walls. Obscured window to the side elevation.

First Floor Landing - Providing access to the first floor accommodation. Loft hatch. Recessed linen cupboard with shelving. Window to the front elevation.

Bedroom One - 5.08m x 3.58m (16'8 x 11'9) - Window with a fitted blind to the front elevation. Picture rail.

Bedroom Two - 4.04m x 3.43m (13'3 x 11'3) - Window to the rear elevation.

Bedroom Three - 3.81m x 3.40m (12'6 x 11'2) - Bay window with fitted blind to the front elevation. Cupboard housing the hot water cylinder with a shelf above.

Bedroom Four - 2.67m x 2.57m (8'9 x 8'5) - Window to the rear elevation overlooking the garden. Picture rail.

Bathroom - 2.84m x 1.80m (9'4 x 5'11) - Comprising a bath with a shower system over and a glass shower screen, wc with a push-button flush and basin set into a cabinet providing storage and concealing the cistern. Matching wall cabinets with mirror and lighting. 2 obscured windows to the rear elevation. Partly tiled walls. Inset ceiling spotlights.

Garage - 4.83m x 2.84m (15'10 x 9'4) - Up-&-over door to the front elevation. Window to the side elevation. Over-head storage. Power and lighting.

Cellar - Gas boiler. Power and lighting. Window to the rear elevation.

Outside - To the front there is a paved driveway providing ample off-road parking and access to the garage and the main front entrance. Pathways through timber gates leading around both side elevations of the property. The front garden is laid to lawn with bordering shrub beds. The rear garden is enclosed by timber fencing and has areas laid to lawn and paving together with shrub and flower beds. There are 2 outside taps and an outside light.

Council Tax - Plymouth City Council
Council tax band E

Services - The property is connected to all the mains services: gas, electricity, water and drainage.

Property Ref: 34474124

Share:

Similar Properties

Maidenwell Road, Plympton, Plymouth

5 Bedroom Detached House | Guide Price £425,000

Beautifully-presented detached house, individually designed & built by the current owners. The accommodation is well-pre...

Elburton, Plymouth

Barn Conversion | £425,000

An exceedingly rare opportunity to acquire a development site within the heart of Elburton village, including one large,...

Elburton, Plymouth

2 Bedroom Detached Bungalow | £425,000

A superbly presented detached bungalow within this highly regarded location in Elburton. The accommodation briefly compr...

Brixton Torr, Plymouth

3 Bedroom Cottage | Offers in region of £440,000

Torr Cottage is situated at the end of the Brixton Torr hamlet in an idyllic position with lovely gardens offering a hig...

Plymstock, Plymouth

3 Bedroom Detached House | £450,000

Unique, individual detached house with fabulous kerb appeal, offering spacious, comfortable accommodation including a va...

Plymstock, Plymouth

4 Bedroom Detached House | £450,000

Superbly situated older-style detached house in an incredible position with a lovely garden to the rear & far-reaching v...

Julian Marks Estate Agents (Plymstock)

2 The Broadway, Plymstock, Plymstock, Devon, PL9 7AW

01752 401128

How much is your home worth?

Use our short form to request a valuation of your property.

Request a Valuation

Mortgage Calculator

Amount Borrowed: £
Total Amount Repayable: £
Total Monthly Payment: £
©2026 The Guild of Property Professionals. All rights reserved. Terms and Conditions | Privacy Policy | Cookie Policy | Complaints Policy | Members Login
The Guild of Property Professionals Trading Address: 121 Park Lane, London W1K 7AG. GPEA Limited. Registered in England & Wales.  Company No: 02819824.  Registered Office Address: 2 St. Stephen's Court, St. Stephen's Road, Bournemouth, Dorset, England, BH2 6LA.  VAT Registration No: 576 8795 61
Book a Property Valuation Update Cookies Preferences