Shaugh Prior, Plymouth

£590,000

3 Bedroom End of Terrace House for sale in Plymouth

1 3 1
  • Original farmhouse
  • Fabulous country views
  • Full of charm & character
  • Ideal equestrian or small-holding property
  • Gardens & paddocks
  • Stable block
  • Courtyard
  • Plenty of parking
  • Space for garaging

Original farmhouse in a splendid location with fabulous views, surrounded by beautiful, formal gardens, paddocks, a stable block & ample parking. Parking for plenty of vehicles to the front, with a driveway leading to a stable block & a hard-standing courtyard with additional parking space & space for garaging if required. There are paddocks beyond the stable block making this an ideal starter equestrian property.

Full Summary - Faunstone Farm enjoys a fabulous rural location with far-reaching countryside views and offers well-presented accommodation with beautifully-maintained lawns and a well-stocked shrubbery. A courtyard and driveway provide parking for plenty of vehicles to the front with the driveway leading to a stable block and a hard-standing courtyard, with additional parking space and space for garaging if required. There are paddocks beyond the stable block making this an ideal starter equestrian property. As an overview, the accommodation comprises an entrance hall, spacious lounge/diner, good-sized family kitchen, 3 bedrooms and bathroom. The neighbouring barns, which formed part of the original farm with outbuildings, were converted several years ago but now form part of this very pleasant small community of properties.

Directions - Directions from Marsh Mills roundabout: take the B3146 Plympton Road, after about a 1/4 mile past the Harvester & the Texaco petrol station on the left hand side, turn immediately left at the junction into Larkham Lane. Continue to the mini roundabout with Plymbridge Road and turn right then immediately left into Crossways. At the end of Crossways Road, turn left at the T-junction into Boringdon Hill. You'll then pass Boringdon Hall Hotel on the left and a little further you'll pass Elfordleigh Golf Course and Country club on your right. Continue on passing Cann Woods car park on the left hand side and the Farmyard Cafe on your right. Shortly after this take the next left, just before the cattle grid. Follow the road downhill to the 90 degree bend, follow this around to the right and Faunstone Barn and Faunstone Farm entrance can be found on the left hand side. Faunstone Farm is the second access to the left.

Faunstone Farmhouse -

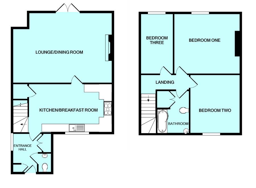
Accommodation - Half-glazed uPVC door opening into the entrance hall.

Entrance Hall - 2.49m x 2.08m (8'2 x 6'10) - Original flagstone floor. Coat hooks. Loft hatch to the porch area. Built-in spacious utility cupboard with plumbing for washing machine and tumble dryer and free-standing oil-fired boiler. Window to the side elevation.

Downstairs Cloakroom/Wc - Low-level wc. Flagstone flooring.

Kitchen/Breakfast Room - 4.50m x 3.63m (14'9 x 11'11) - Fitted with a comprehensive range of matching base and wall-mounted cupboards incorporating roll-edged work surfaces with an inset one-&-a-half bowl ceramic sink unit and tiled splash-backs. Cooker with extractor canopy above. Indoor barbecue grill with brushed-steel surround. Built-in dishwasher. Space for a dining table and chairs. Ceramic tiled flooring. Window above the sink overlooking the front elevation. Staircase ascending to the first floor. Large built-in under-stairs cupboard/larder.

Lounge/Dining Room - 6.27m x 4.47m (20'7 x 14'8) - A spacious, attractive room with an original stone fireplace featuring a multi-fuel wood burning stove. French doors opening onto the formal gardens.

First Floor Landing - Doors providing access to the first floor accommodation. Window to the front elevation.

Bedroom One - 4.78m x 4.04m (15'8 x 13'3) - Deep-sill window with far-reaching countryside views.

Bedroom Two - 3.73m x 2.49m (12'3 x 8'2) - Window to the front elevation.

Bedroom Three - 4.72m x 1.85m (15'6 x 6'1) - Window to the rear elevation with countryside views. Drop-down access hatch with pull-down ladder to half-boarded loft with power and lighting.

Bathroom - 2.64m x 1.98m (8'8 x 6'6) - Fitted with a 3-piece suite comprising bath with a shower over, shower screen and mixer tap, low-level wc and wash handbasin with mixer tap and a built-in storage cupboard below. Built-in airing cupboard. Fully-tiled walls.

Outside - A driveway leads to the front of the property providing ample parking for several vehicles, with beautifully-planted borders and beds well-stocked with shrubs and flowers. The driveway continues around to the rear of the property and up to the stable block and courtyard, providing access to the paddocks. The gardens are beautifully landscaped with large expanses of lawn, well-stocked planted borders, mature trees, seating areas and pathways which meander and wind through the gardens. To the far end of the large expanse of formal gardens there is a gate giving access to one of the adjoining paddocks. Also within the garden there are sheds and a greenhouse. The total land is just over 2 acres.

Stables And Paddocks - 10.82m x 3.40m (35'6 x 11'2) - Stable block with power, lighting and water. The stable is sectioned into 2 stable areas and a separate tack room. The paddocks themselves are separated into 2 separate fields (see attached plan) totalling 1.7 acres.

Services - Services include mains electric, oil-fired boiler & central heating, private drainage (shared by The Granite & Annexe) & private water (connected via the Maristow Estate).

Council Tax Pcc - South Hams District Council
Council Tax Band: E

What3words - ///panels.income.scary

Property Ref: 34304734

Share:

Similar Properties

Plympton, Plymouth

4 Bedroom Detached House | £550,000

This charming, detached period cottage, located in the historic, highly sought-after area of Plympton St Maurice, is bur...

Plympton, Plymouth

4 Bedroom Detached House | Offers Over £475,000

This exceptional, detached property is situated in a quiet cul-de-sac in the Chaddlewood area of Plympton, benefiting fr...

Plympton, Plymouth

4 Bedroom Detached House | £470,000

Wonderfully-situated detached family home, located on a prestigious street within Plympton, briefly comprising an entran...

Plympton, Plymouth

4 Bedroom Detached House | £595,000

Built to an extremely high specification by a respected builder, Julian Marks is delighted to present this substantial n...

Plympton, Plymouth

4 Bedroom Detached House | £750,000

A rare opportunity to acquire this wonderfully-presented 1920s family home, situated in the popular Woodford area of Ply...

Plympton, Plymouth

10 Bedroom Detached House | £895,000

Julian Marks Estate Agents is proud to present a remarkable opportunity to acquire this historical site, close to Plympt...

Julian Marks Estate Agents (Plympton)

Plympton, Plymouth, PL7 2AA

01752 301002

How much is your home worth?

Use our short form to request a valuation of your property.

Request a Valuation

Mortgage Calculator

Amount Borrowed: £
Total Amount Repayable: £
Total Monthly Payment: £
©2026 The Guild of Property Professionals. All rights reserved. Terms and Conditions | Privacy Policy | Cookie Policy | Complaints Policy | Members Login
The Guild of Property Professionals Trading Address: 121 Park Lane, London W1K 7AG. GPEA Limited. Registered in England & Wales.  Company No: 02819824.  Registered Office Address: 2 St. Stephen's Court, St. Stephen's Road, Bournemouth, Dorset, England, BH2 6LA.  VAT Registration No: 576 8795 61
Book a Property Valuation Update Cookies Preferences