Tamerton Foliot, Plymouth - Devon

£775,000
Under Offer
This property listing is now Under Offer

4 Bedroom Detached House for sale in Plymouth

4 1
  • 4 Bedroom Period House
  • Character Grade II Listed
  • 3 Reception Rooms
  • Barns with Potential
  • General Purpose Buildings
  • Paddock
  • Wildlife Lake
  • 3 Acres

Period 4 bedroom house in 3 acres. Rural, easily accessible location within close proximity of the moors and Plymouth. Traditional barns, general purpose buildings, gardens, paddocks, wildlife lake. No onward chain.

Great Trehills is in a quiet rural location 1 mile southeast of the popular village of Tamerton Foliot, which has a general store and post office, two public houses, take away, restaurant, Primary and Nursery School. Roborough is 2 miles east and offers village shop, post office, supermarkets, veterinary surgery and pre-school. Plymouth is 6 miles south, with train and coach stations providing regular national services and access to the A38 dual carriageway.

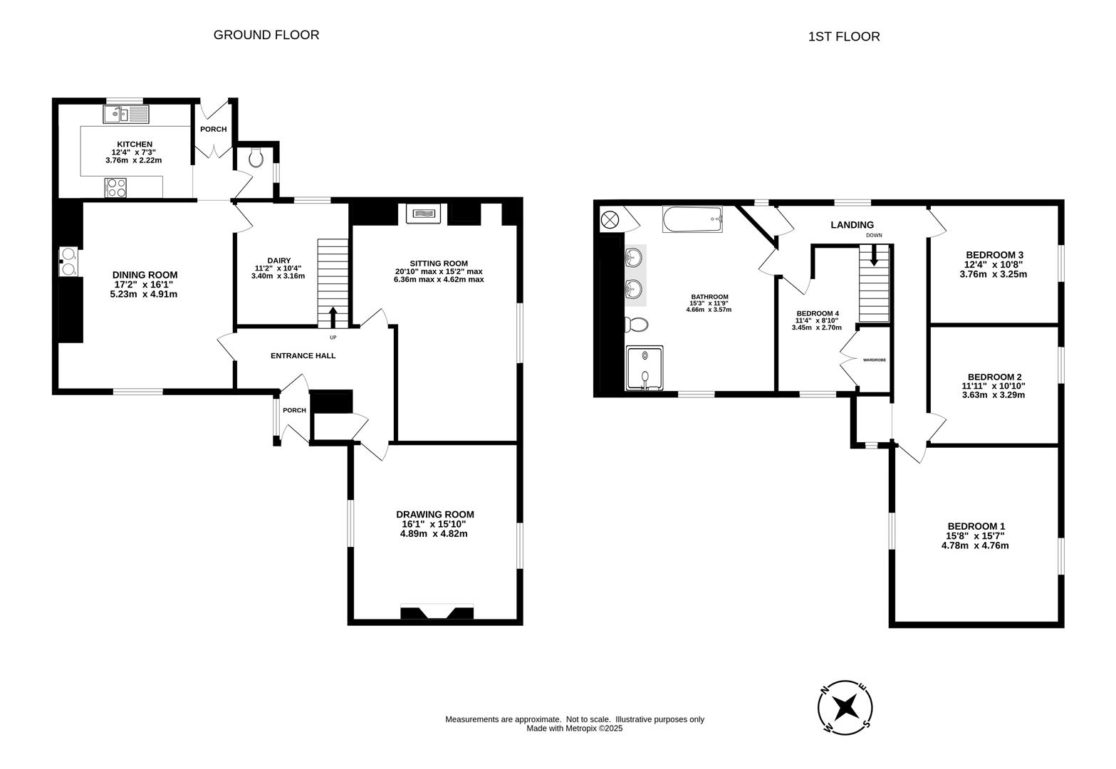
Great Trehills has a most appealing and characterful period 4 bedroom, 3 reception room, Grade II listed country house which is believed to date back to the early 18th Century and is the first time on the market for 100 years. The delightful and welcoming accommodation provides comfortable and flexible family living with an array of period and character features and briefly comprises: Entrance Hall; decorative Victorian tiled floor, staircase to first floor, built in storage cupboard. Sitting room; Inglenook fireplace, clome oven, woodburning stove, window to side with deep sill window seat. Drawing Room; a dual aspect room overlooking the front courtyard garden and grounds to the side. Dining Room; slate tiled floor, beamed ceiling, Inglenook style fireplace, oil fired Rayburn with a back boiler, window overlooking the front garden with deep sill window seat. Dairy; slate flagstone floor, beamed ceiling, window overlooking the rear courtyard. Rear entrance hall; slate flagstone floor and door to rear courtyard. Kitchen; fitted wall and base units, space and plumbing for a washing machine and dishwasher, built in electric oven and hob, extractor above, window overlooking the rear courtyard. Cloakroom; W/C. On the first floor: Landing; window to the rear overlooking the courtyard. Bedroom 3; a double room, window to the side. Bedroom 2; double room window to the side. Bedroom 1; a double dual aspect room with windows overlooking the front courtyard garden and grounds to the side. Bedroom 4; window to the front courtyard garden, built in wardrobe. Family Bathroom; Recently installed new bathroom suite: bath, double wash hand basins in a vanity unit, w/c, large shower cubicle with electric shower and built in airing cupboard, window to the front.

Gardens - From the road a gated entrance opens onto a tarmacadam driveway opening onto a large parking and storage area. Flanked on either side by a large shrub and flowerbed border and a grass terrace interspersed with a variety of Rhododendrons, flowering shrubs and trees. At the front of the house is an enclosed courtyard garden which is mainly lawn with well stocked flowerbed borders. At the rear of the house is a granite cobbled courtyard which is ideal for alfresco dining and entertaining. Across the entrance drive is a lawned terrace with ample recreation space with potential to create a tennis court / football pitch or paddock.

Garden Room / Store - 7.00m x 2.96m (22'11" x 9'8") - Slate flagstone floor and two windows to the front.

Workshop Store - 5.55m 5.21m (18'2" 17'1" ) - Potential to create an annexe

Traditional Barn - 18m x 5m - 17.3m x 6.25m (59'0" x 16'4" - 56'9" x - A substantial and impressive 'L' shaped traditional barn with potential to conversion, extending to approximately 370 m/sq (4000 sq/ft) over two floors.

Carport / Machinery Store - 8.41m x 4.92m (27'7" x 16'1" ) -

Adjoining General Purpose/ Storage Building - 8.84m x 8..46m (29'0" x 26'2".150'11" ) -

Garage / Workshop: - 8.25m x 4.75m (27'0" x 15'7") -

The Land - The paddock extends to approximately 1.5 acres with a wildlife lake in the centre, enclosed within traditional Devon bank hedging and post and wire fencing.

Services & Information - Water - Mains (free of charge)
Drainage - Septic tank
Electricity - Mains
Heating - Night Storage Heaters, Hot water - Oil Fired Rayburn & Electric Immersion
Telephone & Broadband - Open Reach Connection (Airband available subject to survey)
Mobile Availability - checker.ofcom.org.uk
Council Tax Currently Band - D
EPC - Listed

Local Authority - South Hams District Council, Follaton House, Plymouth Road, Totnes, Devon, TQ9 5NE

Tenure - The property is offered for sale freehold with vacant possession on completion, subject to a positive covenant uplift clause (expires December 2029)

Viewing Arrangements - Strictly by appointment with D. R. Kivell Country Property 01822 810810.

Property Ref: 34195627

Share:

Similar Properties

Lewdown, Okehampton - Devon

5 Bedroom Detached House | £695,000

Character, well presented 5 bedroom, 3 reception room house in lawned and landscaped gardens. Buildings with potential....

Dippertown, Lewdown - Okehampton

5 Bedroom Detached House | £695,000

Superbly presented 5 bedroom, 3 reception room listed house full of character and charm in a quiet, easily accessible lo...

Tetcott, Holsworthy - Devon

3 Bedroom Detached Bungalow | £695,000

Extremely well located, spacious and most impressive 3 bedroom, 2 reception room residence finished to a high standard i...

Morwenstow, Bude - Cornwall

Land | £795,000

86 acres of level quality pasture / arable land in easily manageable enclosures and 12 acres of amenity land on the popu...

Lewdown, Okehampton - Devon

4 Bedroom Detached House | £795,000

Outstanding, well presented, individually designed 4 bedroom house, stables, building,13 acres of level paddocks, in an...

Trebullett, Launceston - Cornwall

3 Bedroom Smallholding | £795,000

The Owners said "From David Kivell's first visit to our smallholding to the completion of its sale the service provided...

D. R. Kivell Country Property (Tavistock)

Tavistock, Devon, PL19 0NW

01822 810810

How much is your home worth?

Use our short form to request a valuation of your property.

Request a Valuation

Mortgage Calculator

Amount Borrowed: £
Total Amount Repayable: £
Total Monthly Payment: £
©2026 The Guild of Property Professionals. All rights reserved. Terms and Conditions | Privacy Policy | Cookie Policy | Complaints Policy | Members Login
The Guild of Property Professionals Trading Address: 121 Park Lane, London W1K 7AG. GPEA Limited. Registered in England & Wales.  Company No: 02819824.  Registered Office Address: 2 St. Stephen's Court, St. Stephen's Road, Bournemouth, Dorset, England, BH2 6LA.  VAT Registration No: 576 8795 61
Book a Property Valuation Update Cookies Preferences