Stone Lee, 9 Fore Street, Yealmpton, Plymouth, Devon

Guide Price
£440,000
SSTC
This property listing is now SSTC

4 Bedroom Not Specified for sale in Plymouth

2 4 2
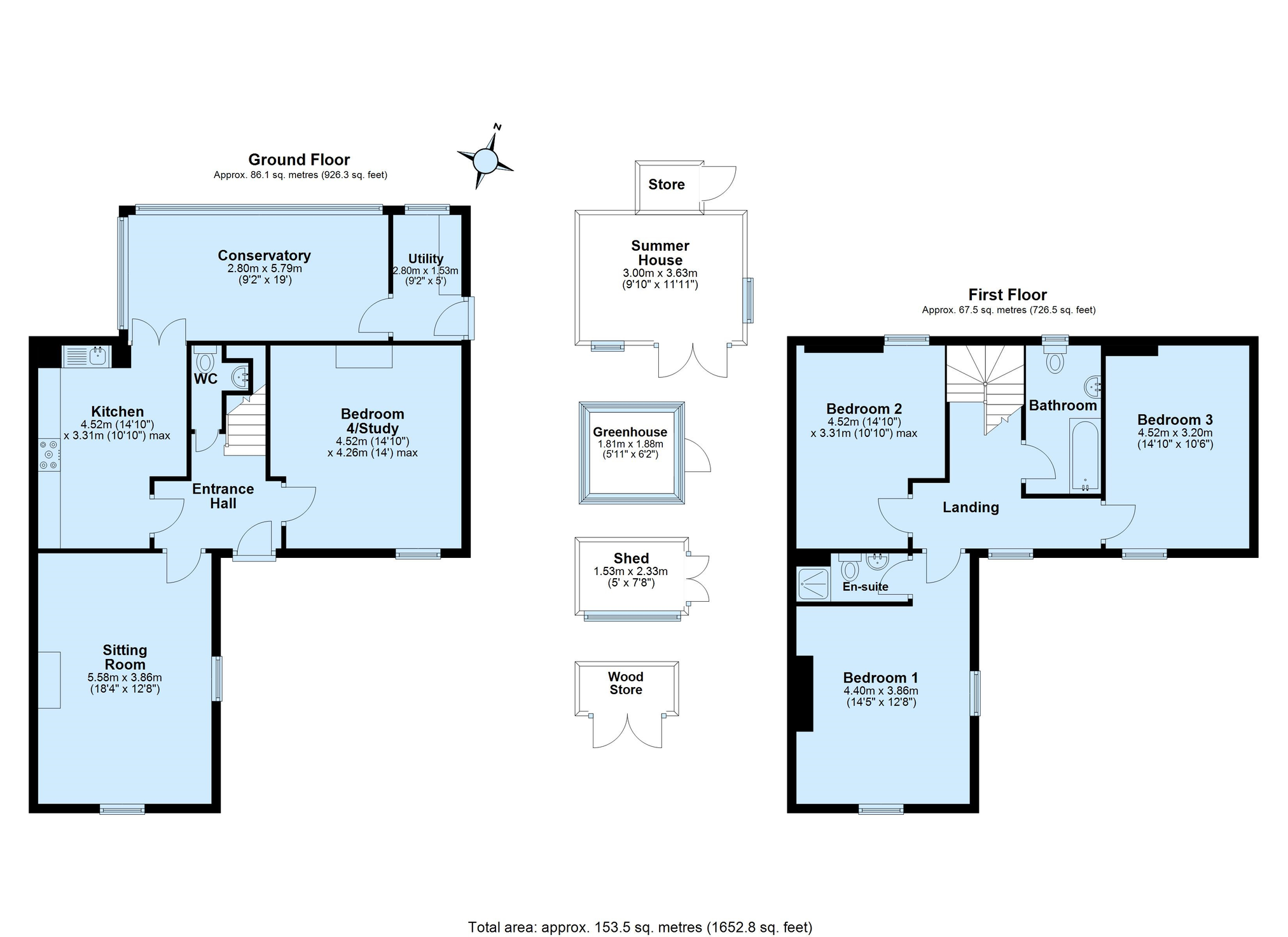
  • Beautiful four-bedroom Victorian home built in 1885, 1652 sq ft
  • Far-reaching views over Yealm Valley and village Church
  • Period features throughout, including sash windows and period fireplaces
  • Light-filled conservatory
  • Generous gardens with terraces, kitchen garden, and seating areas
  • Detached garden studio/home office with stunning views
  • Walking distance to village amenities including shops, pubs, and school
  • Close to South Hams beaches and the Yealm Estuary

A Pretty Period Home
This 1885 late Victorian home exudes charm and character synonymous with this period, with stone elevations, contrasting brick cornerstones, and traditional sash windows. A lead-roofed porch, decorative metal railings, and a neatly tended topiary garden frame the approach, offering a warm welcome that hints at the period elegance within. The property’s careful detailing, from the arched side door to the garden, to the pretty porch with glazed panels, combines character with a sense of relaxed country living.

Light-Filled Living Spaces
The sitting room is enchanting, where sunlight streams through tall sash windows and frames views of the village church and surrounding countryside. At its heart, a beautiful marble fireplace with ornate carvings and a wrought iron inset and grate create a focal point for cosy evenings, while picture rails, delicate ceiling coving, circular ceiling rose and stripped back floorboards lend refined period detail. It is
a room made for living, welcoming and full of character, where quiet moments feel effortlessly special. The spacious kitchen with granite work tops forms the heart of daily life, flowing seamlessly into a light filled dining and family room created by a conservatory extension. The utility room opens onto the garden where wide paved and lawned terraces create inviting spaces to enjoy dining and play, effortlessly connecting inside and outside living. A ground floor fourth bedroom or study offers a flexible space for work, hobbies, snug or future proofed ground floor bedroom, this floor is completed by a downstairs WC. Upstairs, The first-floor landing is bright, spacious and welcoming, with a large window drawing natural light across the space and offering views of the garden. Period details, including the turned balustrade and panelled doors, add charm and character, while the wide landing provides a natural flow between the bedrooms and bathroom. The principal bedroom is a bright and generous dual aspect room, with a sash window framing far-reaching views across the village and the church. A cast-iron fireplace with decorative surround adds period charm, while the room’s generous proportions create a private and restful retreat, the bedroom is served by its own en suite, Two further spacious double bedrooms also with period fireplaces complete the accommodation on this floor, all served by a well appointed family bathroom.

Gardens and Garden Room
The gardens are a true extension of the home, offering a sense of privacy and space rarely found in a village setting. Terraces nearest the house provide areas for dining and relaxation, while lawns stretch upwards to a kitchen garden and beyond. At the top of the garden, a beautifully designed garden room / home office / studio, with power and light, offers elevated views over the Yealm Valley and the village
church. Bathed in light, it is a space for creativity, work, or quiet contemplation. Close to the house a useful outbuilding provides storage for wood, garden equipment, bikes etc keeping the outdoor areas tidy and uncluttered.

Life in the Village
Set in the heart of Yealmpton, this home is within a level walk of the village’s amenities, including a health centre with dispensary, Post Office, general stores, cafés, hairdressers, an optician, two pubs, a primary school, and the much-loved Ben’s Farm Shop. Riverside walks and a myriad of footpaths connect the village to the surrounding countryside, all within the South Devon Area of Outstanding Natural Beauty. Quick access to the A38 Devon Expressway makes commuting straightforward, with Plymouth just 7 miles away and the estuary villages of Newton Ferrers and Noss Mayo only 3.5 miles distant. Mothecombe, Wembury beaches are within a 10-20 minute drive.

Services
Mains water, electricity, gas (combi boiler) and drainage.

EPC Rating
Current: D - 55, Potential: C - 70, Rating: D

Council Tax
Band E

Tenure
Freehold

Authority
South Hams District Council, Follaton House, Plymouth Road, Totnes, Devon, TQ9 5HE, Tel: 01803 861234

Fixtures and Fittings
All items in the written text of these particulars are included in the sale. All others are expressly excluded regardless of inclusion in any photographs. Purchasers must satisfy themselves that any equipment included in the sale of the property is in satisfactory order

Viewing
Strictly by appointment with the sole agents, Marchand Petit, Newton Ferrers Office. Tel: 01752 873311.

Important Information

  • This is a Freehold property.

Property Ref: 2569_QZT840541

Share:

Similar Properties

Plot 10 The Elm, Collaton Park, Newton Ferrers, Devon

3 Bedroom Not Specified | Guide Price £400,000

SHOW HOME NOW OPEN This Christmas, unwrap a home that gives you more - Plot 10 The Elm is an exceptional two DOUBLE bedr...

Plot 5 The Elm, Collaton Park, Newton Ferrers, Devon

3 Bedroom Not Specified | Guide Price £395,000

This Christmas, unwrap a home that gives you more - Plot 5 The Elm is an exceptional two DOUBLE bedroom and one single b...

Plot 3 The Elm, Collaton Park, Newton Ferrers, Devon

3 Bedroom Not Specified | Guide Price £385,000

SHOW HOME NOW OPEN This Christmas, unwrap a home that gives you more - Plot 3 The Elm is an exceptional two DOUBLE bedro...

Yonder Street, Hooe Lake

2 Bedroom Cottage | Offers in excess of £450,000

A absolutely charming and beautifully restored 2 bedroom Grade II-listed waterside retreat nestled on the shore of Hooe...

Fairway Gardens, Sparkwell

2 Bedroom Detached House | Guide Price £465,000

A recently built detached house with attractive garden, garage , parking, within a small village development exclusively...

Plot 7 The Ash, Collaton Park, Newton Ferrers, Devon

3 Bedroom Not Specified | Guide Price £475,000

SHOW HOME NOW OPEN The Ash is an exceptional THREE DOUBLE bedroom detached home with a GARAGE, parking for a minimum of...

Marchand Petit (Plymouth)

Parsonage Road, Newton Ferrers, Plymouth, Devon, PL8 1AT

01752 873 311

How much is your home worth?

Use our short form to request a valuation of your property.

Request a Valuation

Mortgage Calculator

Amount Borrowed: £
Total Amount Repayable: £
Total Monthly Payment: £
©2025 The Guild of Property Professionals. All rights reserved. Terms and Conditions | Privacy Policy | Cookie Policy | Complaints Policy | Members Login
The Guild of Property Professionals Trading Address: 121 Park Lane, London W1K 7AG. GPEA Limited. Registered in England & Wales.  Company No: 02819824.  Registered Office Address: 2 St. Stephen's Court, St. Stephen's Road, Bournemouth, Dorset, England, BH2 6LA.  VAT Registration No: 576 8795 61
Book a Property Valuation Update Cookies Preferences