Forest Lodge Lane, Cwmavon, Port Talbot, Neath Port Talbot, SA13 2RX

£150,000

Land for sale in Port Talbot

  • Development Opportunity
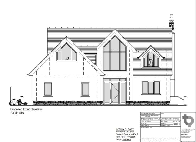
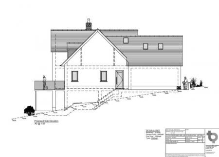
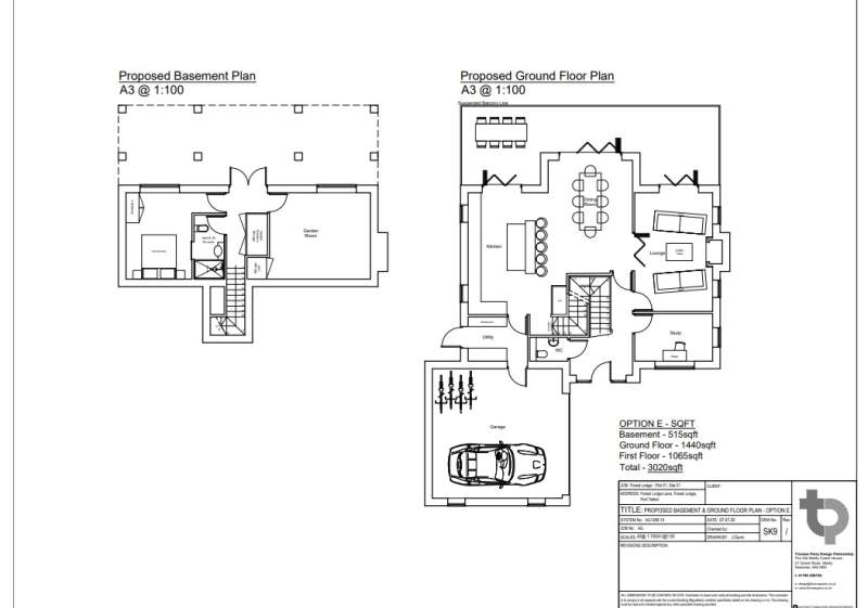
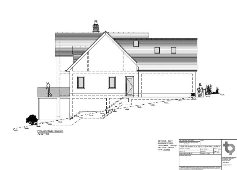
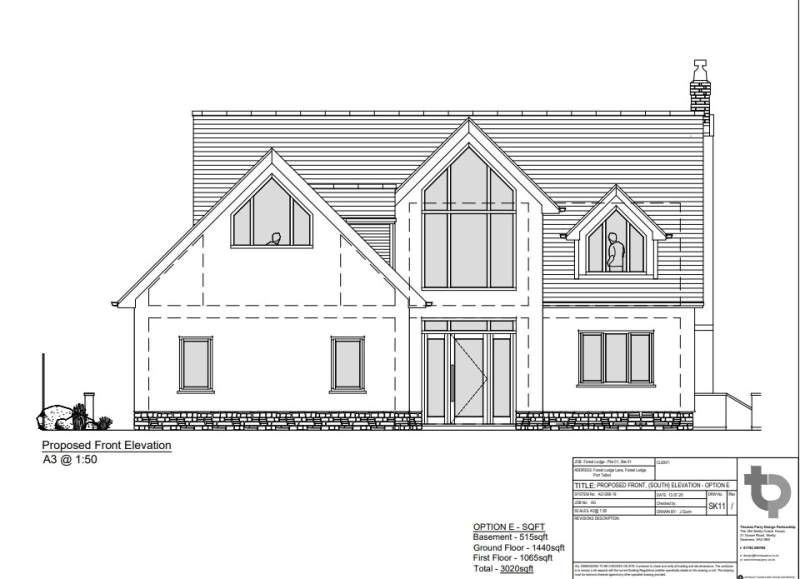
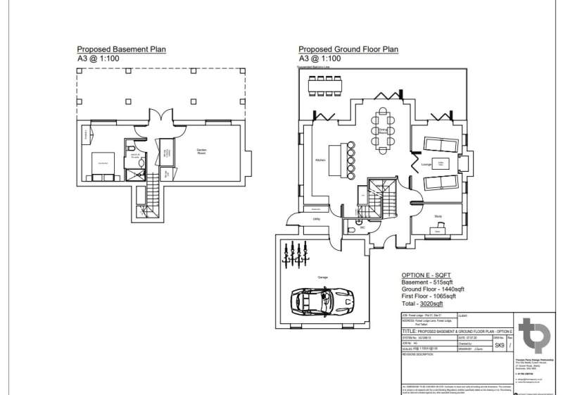
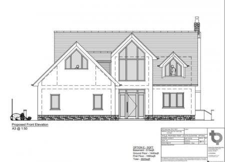
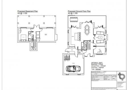
  • Planning Approved For Four Bed Detached Exectuive Home
  • Popular And Desirable Location
  • Ample Off Road Parking
  • Executive Private Estate
  • Easy Access To The M4 Corridor For Commuting
  • Rare To Market In This Location
  • Approved Planning Available
  • Three Storey Property

Located in a desirable location with planning approved for the construction of a four-bedroom detached executive home. The site offers a substantial plot that would allow for a spacious private estate, required to accommodate an executive-style residence.

The approved planning provides a unique opportunity for developers or buyers looking to create a new home tailored to modern specifications. The property is a three-storey plot, enhancing the possibilities for expansive living spaces, and comes with ample off-road parking to support family requirements and guest accommodations.

� The subject land lies to the southern periphery of Cwmavon and is nestled on the hillside above the A4107. Currently vacant pasture, the land benefits from unobstructed mountain views to the north towards and over the settlement of Cwmavon.

� The proposed development is served by and as a continuation of Forest Lodge Lane, currently serving some 26 dwellings and taking its access from a highway's compliant junction to the east off the B4282. The existing junction is more than adequate in capacity terms to account for the number of dwellings anticipated. The existing carriageway which is currently a private maintained roadway includes largely soft verges with intermittent footways and no street lighting.

� The Forest Lodge Development has matured over may years, provides a range and mix of high-quality individual executive homes of character. The maturity and unit design provide a much-desired destination.

� The site presents a natural extension to the settlement of Cwmavon and the ability to deliver, albeit by small numbers.

PLANNING REFERENCE - P2022/0543

Important Information

  • This is a Freehold property.

Property Ref: 261018_PRA11496

Share:

Similar Properties

Lewis Road, Crynant, Neath, Neath Port Talbot. SA10 8SD

3 Bedroom Semi-Detached House | Offers Over £150,000

Semi-Detached Property With No Onwards Chain | Three Bedrooms | Freehold | Semi-Rural Village Location | EPC - C / Counc...

Heol Llangeinor, Llangeinor, Bridgend, Bridgend County. CF32 8PW

3 Bedroom Semi-Detached House | £150,000

3 bedroom semi detached home | Situated in an elevated position with open aspect over woodland, hills & road | Fitted ki...

Heol Nedd, Cwmgwrach, Neath, Neath Port Talbot. SA11 5PL

3 Bedroom Semi-Detached House | £150,000

NO ONWARDS CHAIN | Freehold | Village Location | EPC - C | Semi-Detached Property | Enclosed Rear Garden | Gas Central H...

Burrows Road, Baglan, Port Talbot, West Glamorgan, SA12 8BG

3 Bedroom Semi-Detached House | £155,000

Semi-Detached Property | Freehold | Three Bedrooms | Driveway Providing Off Road Parking & Driveway | Two Reception Room...

South Street, Bridgend, Bridgend County. CF31 3ED

2 Bedroom Terraced House | Offers in excess of £155,000

Two double bedroom mid terraced cottage | Driveway parking to front | Enclosed rear garden | First floor bathroom | Bryn...

Lon Y Grug, Llandarcy, Neath, Neath Port Talbot. SA10 6FW

2 Bedroom Terraced House | Offers Over £160,000

NO ONWARDS CHAIN! | Sought After Location | Well Presented Throughout | Freehold | EPC - C | Two Bedrooms | Off Road Par...

Peter Morgan (Neath)

Windsor Road, Neath, West Glamorgan, SA11 1NB

03300 563 555

How much is your home worth?

Use our short form to request a valuation of your property.

Request a Valuation

Mortgage Calculator

Amount Borrowed: £
Total Amount Repayable: £
Total Monthly Payment: £
©2025 The Guild of Property Professionals. All rights reserved. Terms and Conditions | Privacy Policy | Cookie Policy | Complaints Policy | Members Login
The Guild of Property Professionals Trading Address: 121 Park Lane, London W1K 7AG. GPEA Limited. Registered in England & Wales.  Company No: 02819824.  Registered Office Address: 2 St. Stephen's Court, St. Stephen's Road, Bournemouth, Dorset, England, BH2 6LA.  VAT Registration No: 576 8795 61
Book a Property Valuation Update Cookies Preferences