Southfields, Portchester

Guide Price
£320,000
SSTC
This property listing is now SSTC

3 Bedroom Semi-Detached House for sale in Portchester

3 2
  • Quiet development close to green open spaces.
  • 1.4 miles from Portchester train station.
  • 4 years remaining of NHBC warranty.
  • Good sized Sitting Room.
  • West facing garden.
  • EPC Rating B (83)

Conveniently located in a quiet development built by Persimmon Homes in 2019 with green open spaces nearby and Portchester train station just over a mile away, a lovely family home offering generous reception space and three bedrooms, in addition to driveway parking for two cars.

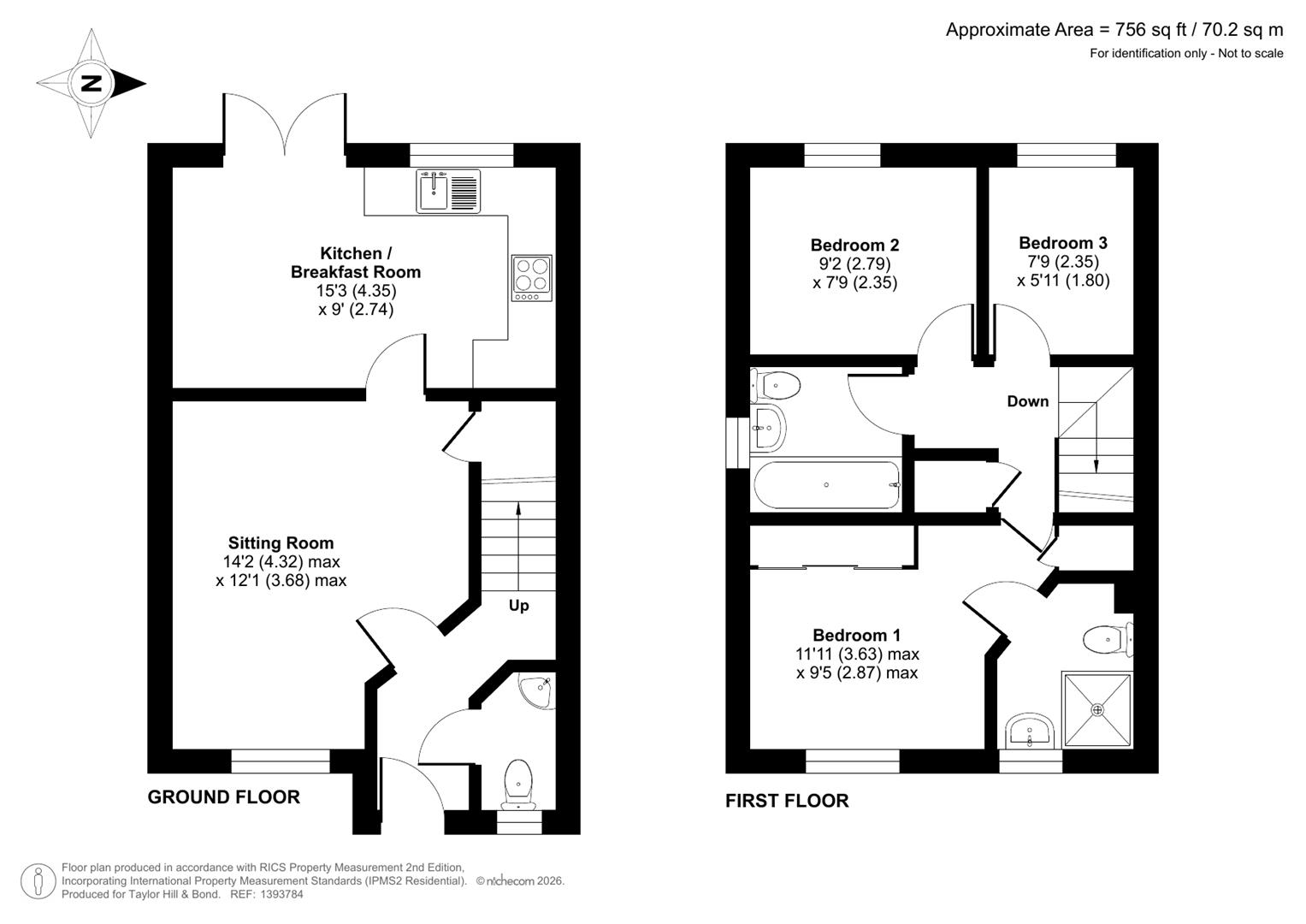
On entering, the adjacent Sitting Room is a generous space for the family and for entertaining with friends. The Kitchen/Breakfast Room is situated to the rear of the house and has been fitted with ample white cupboards and a range of appliances are included; there is also plenty of space for a dining table and double doors lead to the garden. A Cloakroom completes the ground floor. Upstairs are three bedrooms, two of which are doubles, Bedroom 1 benefits from an ensuite Shower Room and the contemporary Family Bathroom compliments the other bedrooms. A particular selling feature of the property is the larger than average west facing garden with a terrace for al fresco dining and an area of lawn with a sleeper shrub border. There is also a wooden gardeners shed and gated side access.

The property is ideally located for easy road and rail links with Portchester railway station a short drive away and access to the M27 two miles away. Portchester Precinct is just over a mile from Southfields and there is local schooling just round the corner. For those with a love of the sea Portchester is surrounded by beautiful lakes with lovely coastal walks and Portchester Sailing Club has easy access into Portsmouth Harbour. Port Solent Broadwalk Shopping Centre and Marina are just three miles down the road.

Nearby Fareham town offers plenty of restaurants and brasseries and there is also a large Tesco superstore. Fareham Creek is a local beauty spot providing lovely trail walks and is popular with kayakers and SUP enthusiasts. Additionally, Cams Hall Estate Golf Course has both 9 and 18 hole courses.

SUMMARY OF FEATURES:
4 years remaining of NHBC warranty; Ideal Logic combi boiler, serviced in 2025; Understairs storage cupboard; Kitchen appliances to include an Electrolux electric hob, oven and grill, Beko dishwasher, freestanding Logik fridge/freezer; Space for washing machine; Airing/storage cupboard on Landing; Fitted wardrobe cupboards and storage cupboard to Bedroom 1; Tarmac driveway for two cars; Loft space; Outside tap and lights.

GENERAL INFORMATION:
TENURE: Freehold; SERVICES: Mains gas, electricity, water and drainage; LOCAL AUTHORITY: Fareham Borough Council; TAX BAND: C

DISTANCES:
Wicor Primary School - 0.4 miles; Wicor Woodland - 0.3 miles; Portchester Community School - 1 mile; Portchester Precinct - 1.3 miles; Portchester Train Station - 1.4 miles; Portchester Castle - 1.6 miles; Port Solent - 2.9 miles

AGENTS NOTE:
Estate Charges ?291.00 annually, paid six monthly to Remus Management Company. Estate charges include for gardening/landscaping, public liability insurance, estate cleaning, general repairs and maintenance, children's play equipment, management company expenses, accountancy fees, treeworks and resurfacing of access roads.

Property Ref: 34390436

Share:

Similar Properties

Kingston Gardens, Fareham

3 Bedroom Terraced House | Guide Price £320,000

Situated in a popular residential location close to schools and amenities, a beautifully presented and upgraded family h...

West Street, Titchfield Village

2 Bedroom End of Terrace House | Guide Price £312,500

*** NO ONWARD CHAIN***Situated in the heart of Titchfield village and within easy walking distance to amenities, a beaut...

Dore Avenue, Portchester

3 Bedroom Terraced House | Guide Price £310,000

Situated in an elevated position with far reaching views over Portsmouth Harbour and a short walk to High View Park a 19...

The Greendale, Fareham

3 Bedroom Semi-Detached House | Guide Price £325,000

Situated in a popular residential location close to schools and amenities, a semi detached property in need of modernisi...

Sycamore Close, Titchfield Common

3 Bedroom Semi-Detached House | Guide Price £342,500

Situated in a much sought-after residential location, close to countryside and coastal walks, bus routes and amenities,...

Leep Lane, Alverstoke

3 Bedroom Bungalow | Guide Price £350,000

A deceptively spacious three bedroom bungalow situated in a peaceful tucked away lane close to Alverstoke Village. Leep...

Taylor Hill & Bond (Titchfield)

Titchfield, Fareham, Titchfield, Hampshire, PO14 4RT

01329 844812

How much is your home worth?

Use our short form to request a valuation of your property.

Request a Valuation

Mortgage Calculator

Amount Borrowed: £
Total Amount Repayable: £
Total Monthly Payment: £
©2026 The Guild of Property Professionals. All rights reserved. Terms and Conditions | Privacy Policy | Cookie Policy | Complaints Policy | Members Login
The Guild of Property Professionals Trading Address: 121 Park Lane, London W1K 7AG. GPEA Limited. Registered in England & Wales.  Company No: 02819824.  Registered Office Address: 2 St. Stephen's Court, St. Stephen's Road, Bournemouth, Dorset, England, BH2 6LA.  VAT Registration No: 576 8795 61
Book a Property Valuation Update Cookies Preferences