Drayton, Hampshire

Offers in excess of
£350,000
SSTC
This property listing is now SSTC

3 Bedroom End of Terrace House for sale in Portsmouth

3 1
  • An End of Terrace Family Home
  • Three Bedrooms, Family Bathroom
  • 16' Kitchen/Breakfast Room
  • 20' Living Room
  • Low Maintenance Rear Garden
  • Off Road Parking
  • Close to Amenities, Shops & Catchment for Local Schools (subject to confirmation)
  • Viewing Highly Recommended
  • Council Tax Band C - Portsmouth City Council

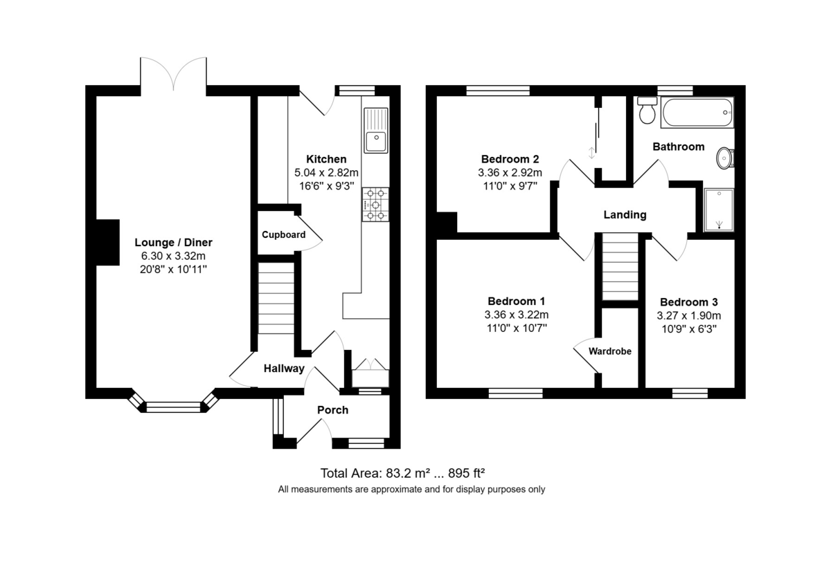
PROPERTY SUMMARY An end of terrace family home which is situated in a desirable location close to local amenities, shops, bus routes and within catchment of both Solent and Springfield Schools (subject to confirmation). The accommodation offers 895 sq ft of living space arranged over two floors and comprises: hallway, 16' fitted kitchen / breakfast room and 20' living room on the ground floor with three bedrooms and an L shaped family bathroom with shower on the first floor. To the front is off road parking for approximately two cars, side pedestrian access and a low maintenance north-westerly facing rear garden with false grass, sleeper borders and a 12' wooden shed. To appreciate both the accommodation and location early viewing is strongly recommended. 

ENTRANCE Lowered kerb leading to brick paviour parking for approximately two cars, side pedestrian gate to right hand side of the property, steps up to main front door with frosted leadlight panels leading to:

 

PORCH Wood laminate flooring, double glazed window to front aspect with blind, ceiling spotlights, internal glazed door leading to: 

HALLWAY Staircase rising to first floor, doors to primary rooms, wood laminate flooring, control for central heating. 

KITCHEN 16' 6" x 9' 3" maximum (5.03m x 2.82m) Breakfast area, recess with built-in cupboards to upper section housing gas and electric meters with space for tumble dryer under, tall contemporary style radiator, tiled flooring, breakfast bar divide leading to kitchen with comprehensive range of floor to ceiling cupboards with eye-level double oven and grill with storage cupboard over and drawers under and tall larder cupboards to either side, integrated fridge and freezer, ceiling spotlights, tiled flooring, inset Neff five ring gas hob with pan drawers under, extractor hood, fan and light over, two wall mounted units with glass shelves and doors, integrated dishwasher and washing machine with matching doors, single drainer sink unit with mixer tap, double glazed door with window to one side leading to rear garden, ceiling spotlights, understairs storage cupboard.

 

LIVING ROOM 20' 7" x 10' 10" (6.27m x 3.3m) Double glazed bow bay window to front aspect with blinds, tall contemporary style radiator to one, wood laminate flooring, central chimney breast with wooden mantle and bracket and wiring for T.V. over, wall lights, ceiling coving, twin bi-folding doors leading to garden, second matching radiator. 

FIRST FLOOR Landing with access to loft space, doors to primary rooms. 

BEDROOM 1 11' 0" x 10' 7" (3.35m x 3.23m) Double glazed window to front aspect with radiator under, wood laminate flooring, built-in wardrobe over stairwell, bracket and wiring for wall mounted T.V. 

BEDROOM 2 9' 7" x 11' 0" decreasing to 7'10" at narrowest point (2.92m x 3.35m) Triple glazed window to rear aspect overlooking garden with radiator under, sliding floor to ceiling built-in wardrobes to one wall with hanging space and shelving. 

BATHROOM L shaped, white suite comprising: panelled bath with mixer tap, wash hand basin with mixer tap and cupboards under, mirror fronted medicine cabinet over, close coupled w.c. with shelf over, recessed shower cubicle with panelled door, extractor fan, ceiling spotlights, fully ceramic tiled to floor and walls, double glazed frosted window to rear aspect, chrome heated towel rail. 

BEDROOM 3 10' 9" x 6' 3" (3.28m x 1.91m) Double glazed window to front aspect, radiator. 

LOFT SPACE Mainly boarded, boiler supplying domestic hot water and central heating (not tested). 

OUTSIDE To the rear is a full width large patio area leading to artificial grass lawn with raised sleeper borders, the garden is enclosed by fence panelling on all sides, lighting, 12' wooden built shed, side pedestrian access, cold water tap.  

AGENTS NOTES Council Tax Band C - Portsmouth City Council
Broadband – ADSL/FTTC Fibre Checker (openreach.com)
Flood Risk – Refer to - (GOV.UK (check-long-term-flood-risk.service.gov.uk)
AML Checks - By Law and in compliance with HMRC regulations, all agents are required to carry out Anti-Money Laundering (AML) checks on any buyer(s) who submit a successful offer. A non-refundable administration fee of £60 inc. VAT to cover these costs is payable by the buyer(s) before the sales transaction can be progressed.

 

Property Ref: 100157007877

Share:

Similar Properties

Drayton, Hampshire

3 Bedroom Semi-Detached House | Guide Price £350,000

A three-bedroom semi-detached family home which is situated in a residential area within easy access of local shopping a...

Drayton, Hampshire

1 Bedroom Apartment | Guide Price £348,950

Dreton Lodge is a beautiful Churchill development of 54 one and two bedroom apartments exclusively for the over 60s, ide...

Drayton, Hampshire

1 Bedroom Apartment | Guide Price £334,950

Dreton Lodge is a beautiful Churchill development of 54 one and two bedroom apartments exclusively for the over 60s, ide...

Bedhampton, Hampshire

3 Bedroom Semi-Detached House | Guide Price £362,000

An immaculate three bedroom semi-detached family home, built in 2024, never previously occupied and ideally located for...

Drayton, Hampshire

3 Bedroom End of Terrace House | Guide Price £367,000

An end of terrace family home located in a popular residential area of Cosham Drayton within easy access to local shoppi...

Drayton, Hampshire

1 Bedroom Apartment | Guide Price £369,950

Dreton Lodge is a beautiful Churchill development of 54 one and two bedroom apartments exclusively for the over 60s, ide...

Town & Country Southern (Drayton, Portsmouth)

Drayton, Portsmouth, Hampshire, PO6 2AA

02393 277 288

How much is your home worth?

Use our short form to request a valuation of your property.

Request a Valuation

Mortgage Calculator

Amount Borrowed: £
Total Amount Repayable: £
Total Monthly Payment: £
©2026 The Guild of Property Professionals. All rights reserved. Terms and Conditions | Privacy Policy | Cookie Policy | Complaints Policy | Members Login
The Guild of Property Professionals Trading Address: 121 Park Lane, London W1K 7AG. GPEA Limited. Registered in England & Wales.  Company No: 02819824.  Registered Office Address: 2 St. Stephen's Court, St. Stephen's Road, Bournemouth, Dorset, England, BH2 6LA.  VAT Registration No: 576 8795 61
Book a Property Valuation Update Cookies Preferences