Van Road, Llanidloes, Powys, SY18

£150,000

Plot for sale in Powys

  • Desirable location on the outskirts of the town
  • The property has an elevated position with views over open countryside
  • Plans for 4 bedroomed detached house
  • Mains services available nearby

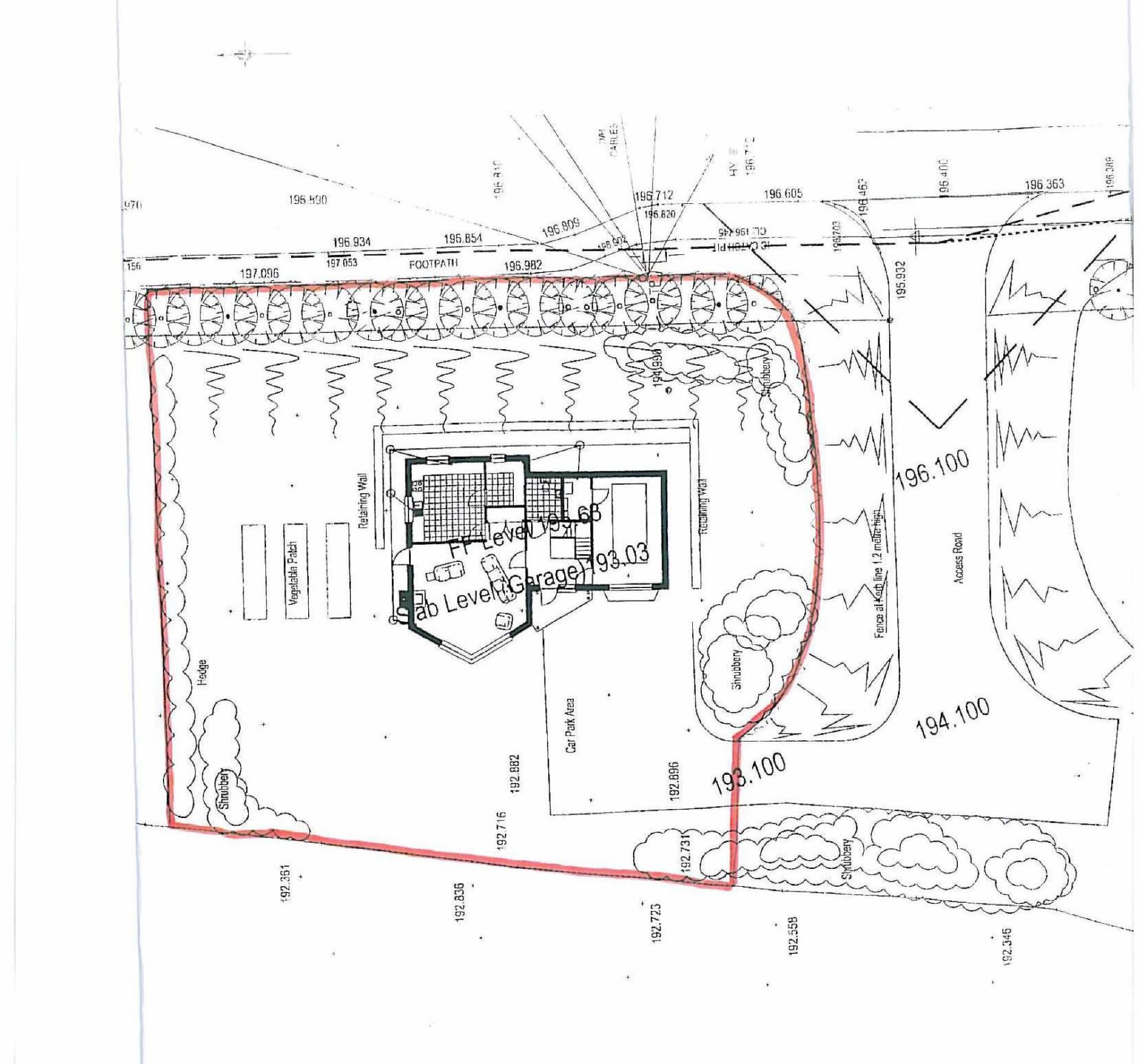
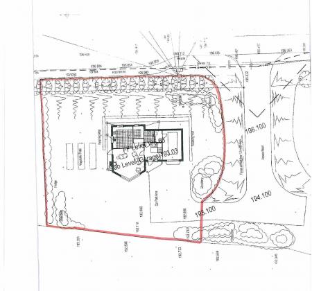
Building plot in a desirable location on the outskirts of the town. The site is in a slightly elevated position with views over open countryside. Llanidloes is a popular market town, close to the Clywedog Reservoir with its sailing, fishing and paddle boarding facilities. The coastal university town of Aberystwyth is approximately 32 miles distant. Larger market town of Newtown 14 miles away. Full extant planning permission granted for a detached dwelling and formation of vehicular access on the 8th April 2011.

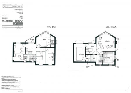
The proposed dwelling to comprise:

On the ground floor

Entrance Hall
Cloakroom
Lounge
Kitchen
Utility Room
Integral Garage
Boiler Room

On the first floor
Landing with balcony
4 Bedrooms
2 Ensuites
Family Bathroom

Spacious grounds suitable for construction of landscaped gardens and car parking. The site have 27m frontage and a depth of 28.4m - 32m.

Please note a charge of £36 per person will be applied to cover mandatory Anti-Money Laundering checks for Buyers

Important Information

  • This is a Freehold property.

Property Ref: LLA180040

Share:

Similar Properties

Jubilee Terrace, Cwmbelan, Llanidloes, Powys, SY18

2 Bedroom Terraced House | Guide Price £150,000

Attractive stone cottage in a semi rural hamlet. Retaining original character features, inglenook and bread oven, expose...

Jubilee Terrace, Cwmbelan, Llanidloes, Powys, SY18

2 Bedroom End of Terrace House | Guide Price £145,000

End terrace cottage being one of three. Situated in small semi rural settlement just 2 miles from Llanidloes which offer...

Picton Street, Llanidloes, Powys, SY18

2 Bedroom Terraced House | Guide Price £139,950

Mid Terrace 2 Bedroom dwelling in the towns' conservation area. Situated just off the town centre and its amenities. Con...

Church Street, Rhayader, Powys, LD6

3 Bedroom End of Terrace House | Offers Over £155,000

End terrace dwelling on 3 levels just off the town centre. Rhayader being a popular tourist market town and 3 miles from...

Dolgwenith, Llanidloes, Powys, SY18

2 Bedroom Terraced House | Guide Price £155,000

**VIDEO TOUR**Link semi detached dwelling situated in established residential area. Convenient to the towns amenities. L...

Broad Street, Knighton, Powys, LD7

Commercial Property | £159,950

3-Storey Mid Terrace Commercial Property. Situated in market town of Knighton. Popular tourist area on Offa's Dyke route...

Morris Marshall & Poole (Llanidloes)

Great Oak Street, Llanidloes, Powys, SY18 6BW

01686 412567

How much is your home worth?

Use our short form to request a valuation of your property.

Request a Valuation

Mortgage Calculator

Amount Borrowed: £
Total Amount Repayable: £
Total Monthly Payment: £
©2026 The Guild of Property Professionals. All rights reserved. Terms and Conditions | Privacy Policy | Cookie Policy | Complaints Policy | Members Login
The Guild of Property Professionals Trading Address: 121 Park Lane, London W1K 7AG. GPEA Limited. Registered in England & Wales.  Company No: 02819824.  Registered Office Address: 2 St. Stephen's Court, St. Stephen's Road, Bournemouth, Dorset, England, BH2 6LA.  VAT Registration No: 576 8795 61
Book a Property Valuation Update Cookies Preferences