Nidderdale Avenue, Rainhill, Prescot

Offers Over
£310,000
Sold
This property listing is now Sold

3 Bedroom Semi-Detached House for sale in Prescot

3 3
  • Extended Semi Detached
  • Three/Four Bedrooms
  • Three Bathrooms
  • Cloaks/wc & Utility
  • Rear Garden With Bar
  • Walk-In-Wardrobes To Master Bedroom
  • Desirable Location
  • Family Homes
  • Sought After Rainhill

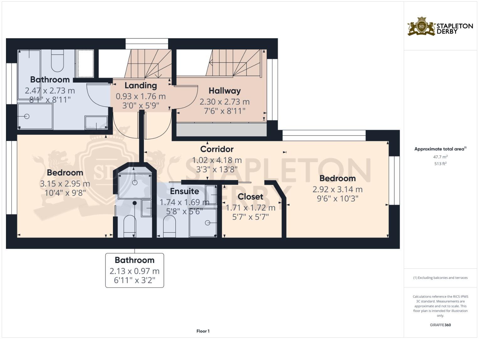
Stapleton Derby are pleased to offer this beautifully extended, 3/4 bedroom, semi-detached home that offers an abundance of family accommodation. Located in a highly sought-after area, it benefits from close proximity to excellent schools, convenient public transport links, and nearby motorway access. This spacious property must be viewed to appreciate its generous and flexible living spaces.

Set over three floors, the home features an inviting entrance porch, hallway, downstairs WC, a bright and airy front lounge, a versatile second reception room which is currently being used as a fourth bedroom, a well-appointed and expansive fitted kitchen, utility room, snug and dining room. Upstairs, the first floor boasts two well-sized bedrooms, two of which include en-suite facilities, while the master bedroom further benefits from a walk-in wardrobe and duel outlook, a fantastic family bathroom with both a bath and shower completes this level. A staircase, from the existing third bedroom, has been converted to a walk-through wardrobe with staircase that leads to the loft room, offering additional versatility bedroom space. Externally, the rear, private garden, is designed for entertaining, featuring an impressive bar, hot tub, patio, and a lawned area—ideal for social gatherings. To the front, there is a driveway and a further lawned space.

Early viewing is strongly recommended to fully appreciate everything this exceptional home has to offer
Lease currently being renewed - length TBC

Important Information

  • This is a Leasehold property.
  • EPC Rating is D

Property Ref: 33951249

Share:

Similar Properties

Pinnington Road, Whiston, Prescot

3 Bedroom Detached House | £310,000

Stapleton Derby is delighted to present this exquisite three-bedroom, detached residence, meticulously renovated to the...

Warrington Road, Rainhill, Prescot

3 Bedroom Semi-Detached House | Offers Over £310,000

Located in the heart of Rainhill, this stunning three-bedroom semi-detached property offers the perfect blend of comfort...

Manor Avenue, Rainhill, Prescot

4 Bedroom Detached House | Offers Over £300,000

***NO CHAIN****Stapleton Derby is delighted to present this expansive four-bedroom detached residence, conveniently situ...

Lowther Drive, Rainhill, Prescot

2 Bedroom Detached Bungalow | £315,000

Nestled within one of Rainhill’s most desirable and highly sought-after residential locations, this charming two-bedroom...

Swale Avenue, Rainhill

2 Bedroom Detached Bungalow | Offers Over £315,000

Swale Avenue, Rainhill presents a rare opportunity to acquire a detached two/three-bedroom extended bungalow, occupying...

Lincoln Way, Rainhill, Prescot

3 Bedroom Link Detached House | £325,000

Lincoln Way, Rainhill is a well-presented three-bedroom linked-detached family home, situated in one of Rainhill’s most...

Stapleton Derby (Rainhill)

Rainhill, Prescot, L35 0LR

0151 430 0717

How much is your home worth?

Use our short form to request a valuation of your property.

Request a Valuation

Mortgage Calculator

Amount Borrowed: £
Total Amount Repayable: £
Total Monthly Payment: £
©2026 The Guild of Property Professionals. All rights reserved. Terms and Conditions | Privacy Policy | Cookie Policy | Complaints Policy | Members Login
The Guild of Property Professionals Trading Address: 121 Park Lane, London W1K 7AG. GPEA Limited. Registered in England & Wales.  Company No: 02819824.  Registered Office Address: 2 St. Stephen's Court, St. Stephen's Road, Bournemouth, Dorset, England, BH2 6LA.  VAT Registration No: 576 8795 61
Book a Property Valuation Update Cookies Preferences