Chain House Lane, Whitestake, PR4 4LD

Offers in excess of
£895,000

5 Bedroom Detached House for sale in Preston

3 5 4
  • Individual detached property
  • Versatile accommodation and business opportunity
  • Five bedrooms plus annex
  • c 4 acres of land
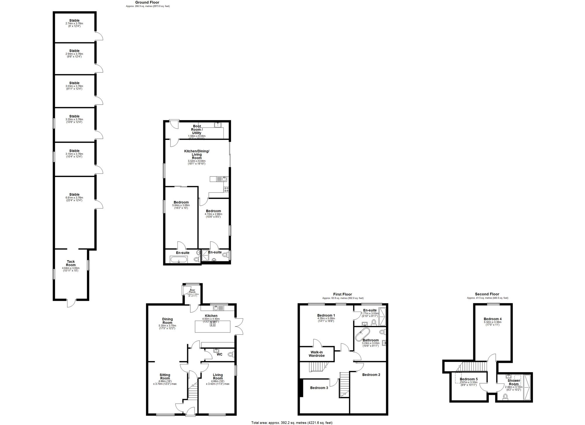
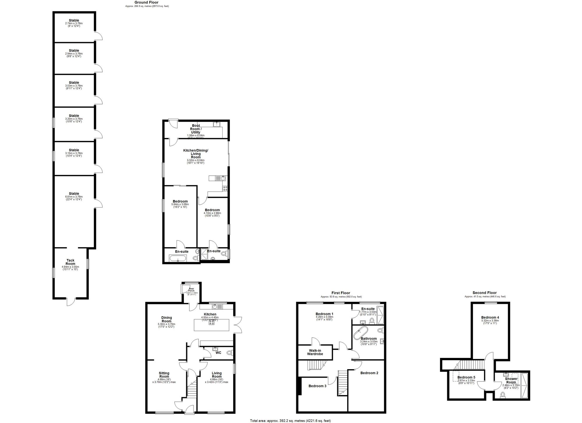
  • Over 3,000 square feet
  • Video & virtual tour

Tavistock is an individual detached property set in c four acres of grounds with fantastic versatility not just as a family home with over 3,000 square feet but also presenting opportunities for equestrian use, multi generational living and business accommodation.

To the front, the driveway offers ample parking, including for a caravan or motorhome, and leads to the yard to the rear and to the main entrance.  Step into the hallway and from there to the living room with Karndean flooring. which flows through much of the ground floor, and benefits from wood burning stove.  The open plan space continues to the dining area, also with wood burning stove and patio doors to the rear, and into the kitchen comprising a range of wall and base units with central island and quartz work surfaces, range cooker, refrigerator & freezer, dishwasher and microwave.

Completing the ground floor are the sitting room with media wall and feature electric fire, cloakroom comprising wc and wash hand basin on vanity, and rear porch with stable door, the perfect place to decant muddy children and pets.

Stairs lead up to the first floor landing with the master bedroom overlooking the land to the rear and having walk in wardrobe and en suite comprising rainfall mixer shower in cubicle, ladder heated towel rail, wc and wash hand basin on floating vanity.  There are two further double bedrooms, one of which is enjoying life as a gym, supported by the sumptuous family bathroom comprising free standing double ended bath, wc, teardrop wash hand basin on vanity and two ladder heated towel rails.

Stairs lead up to the second floor landing which could make a fabulous suite in its own right with bedrooms four and five enjoying lovely views out and the bathroom comprising tiled flooring and elevations, bench seat, wc, shower, floating wash hand basin and towel rail.

Step outside into the rear livery yard with EV charging point, large tack room and six stables all waiting for their next occupants.  A self contained annex has, in the past, been used as a holiday let, but would be a perfect guest suite or suitable for additional family members and comprises two double bedrooms both with en suite, gorgeous living room, kitchen area and entrance hallway/boot room.  A separate garden is adjacent to the annex.

Stroll through the training ring and from there to two further fields culminating in the lower field with lodge and small copse with a variety of waterfowl and wildlife making this the perfect evening stroll.

Whether you are seeking a place to work from home, equestrian facilities or just your own slice of the beautiful Lancashire countryside then Tavistock has plenty to offer both inside and out so do give us a call to arrange a viewing and make it yours.  Council tax D, EPC C, Freehold.

Energy Efficiency Current: 71.0
Energy Efficiency Potential: 79.0

Important Information

  • This is a Freehold property.
  • This Council Tax band for this property is: D

Property Ref: 47a99975-baa8-4806-87a6-a3c95d726aa7

Share:

Similar Properties

Parr Lane, Eccleston, PR7 5SL

4 Bedroom Detached House | £895,000

Armetriding Reaches, Euxton, PR7 6EB

5 Bedroom Detached House | £875,000

Located on a corner plot in an exclusive private development of only eight executive homes this striking family home off...

Armetriding Reaches, Euxton, PR7 6EB

5 Bedroom Detached House | £875,000

Stunning new build executive property on a small and exclusive development offering over 2,800 square feet of accommodat...

Bluestone Lane, Mawdesley, L40 2RG

4 Bedroom Detached House | £925,000

The iconic Robin Hood is now a luxurious four bedroom detached property on a large corner plot, with ample parking and v...

Smithy Lane, Mawdesley, L40 2QG

5 Bedroom Detached House | Offers in excess of £950,000

A distinctive property of provenance and elegance offering over 3,600 square feet of sumptuous accommodation overlooking...

Rufford Road, Mawdesley, L40 3SA

5 Bedroom Detached House | £985,000

Striking five bedroom Edwardian detached residence with substantial grounds and gorgeous views over open countryside. Ov...

Home Truths Sales and Lettings Agency (Eccleston)

Eccleston, Lancashire, PR7 5TF

01257 451673

How much is your home worth?

Use our short form to request a valuation of your property.

Request a Valuation

Mortgage Calculator

Amount Borrowed: £
Total Amount Repayable: £
Total Monthly Payment: £
©2025 The Guild of Property Professionals. All rights reserved. Terms and Conditions | Privacy Policy | Cookie Policy | Complaints Policy | Members Login
The Guild of Property Professionals Trading Address: 121 Park Lane, London W1K 7AG. GPEA Limited. Registered in England & Wales.  Company No: 02819824.  Registered Office Address: 2 St. Stephen's Court, St. Stephen's Road, Bournemouth, Dorset, England, BH2 6LA.  VAT Registration No: 576 8795 61
Book a Property Valuation Update Cookies Preferences